EasyManua.ls Logo

Midea LSBLG365/MCFN

Midea LSBLG365/MCFN
97 pages
To Next Page IconTo Next Page
To Next Page IconTo Next Page
To Previous Page IconTo Previous Page
To Previous Page IconTo Previous Page
Loading...
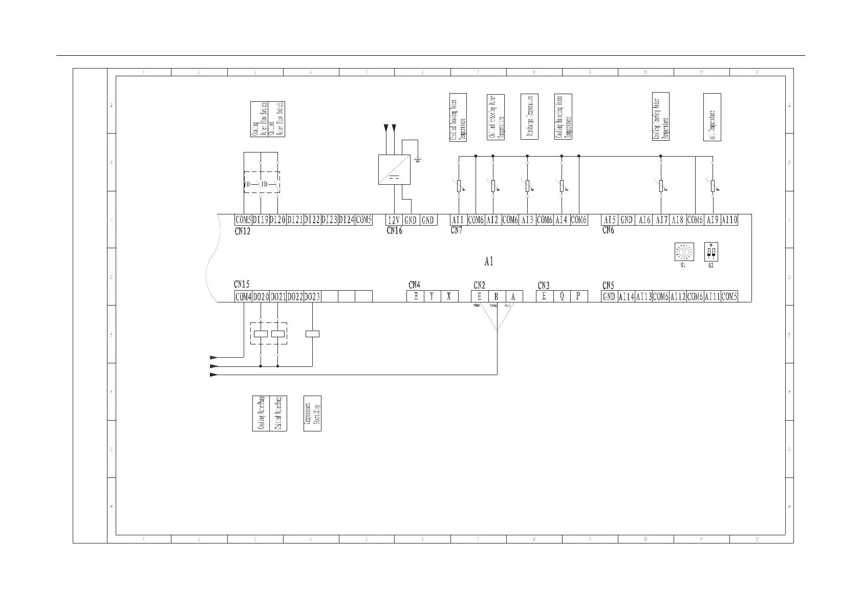
Flooded type water cooled screw chiller (PCB Control) MCAC-CTSM-2012-11
88
X:8 X:9
X:7
317 319 321
KA
SQ1 SQ2
X:17
X:16 X:19
230 232
RT2
RT1
RT3
RT4
228
L15
N
402 404 406 410 404 412 404
12V
220V
L
N
+V
-V
UR2
12V 0V
L15N
1/F11
2/F11
2/F11
2/B12
2/E12
X:49
X:50
X:51
X:52
X:55
X:56
X:58
X:57
X:10
X:18
RT5
408
X:54
X:53
RT5
414
X:67
X:68
RS485 Communication
Note: The dotted area showns the field wiring

Related product manuals