EasyManua.ls Logo

Midea LSBLG365/MCFN

Midea LSBLG365/MCFN
97 pages
To Next Page IconTo Next Page
To Next Page IconTo Next Page
To Previous Page IconTo Previous Page
To Previous Page IconTo Previous Page
Loading...
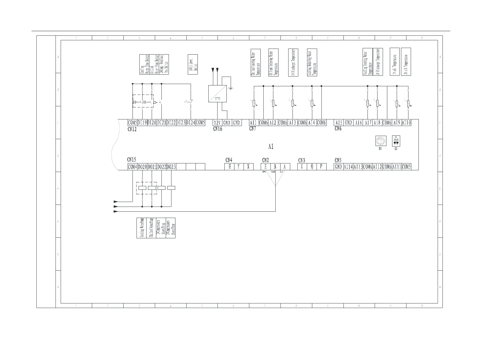
Flooded type water cooled screw chiller (PCB Control) MCAC-CTSM-2012-11
93
X:12 X:13
X:11
331 333 338
1KA
SQ1 SQ2
X:22
X:21 X:24
240 242 244
2FR 2SL
X:68
246
RT2
RT1
RT3
335
2KA
RT4
202
L15
N
402 404 406 410 404 412 404
12V
220V
LN
+V -V
UR2
12V 0V
L15
N
1/E11
3/F11
3/F11
2/B12
2/E12
X:69
X:70
X:72
X:76 X:77
X:71 X:75
X:78
X:67
X:14
X:23
RT5
408
X:73
X:74
RT6
414
X:80
X:79
RS485 Communication
RT7
416
X:81
X:82
RT8
418
X:84
X:83

Related product manuals