EasyManua.ls Logo

Midland SPD-8 - Page 26

Midland SPD-8
145 pages
Print Icon
To Next Page IconTo Next Page
To Next Page IconTo Next Page
To Previous Page IconTo Previous Page
To Previous Page IconTo Previous Page
Loading...
www.roadwidener.com
20
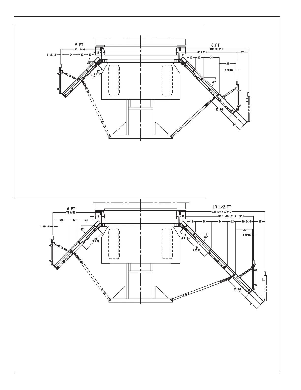
Model SP-8 &10
SPD Left Side Discharge
SP-593 Rev-A blade & column assembly
(5 ft. fixed blade)
Consists of:
(1) SP-435 blade pivot
(2) SP-441 1 ft. blade section
(1) SP-444 2 ft. blade section
(1) SP-590 edger assembly
No push tube / turnbuckle
Paves 5 ft. at 45°
Right Side Discharge
SP-579 Rev-A, blade & column assembly
(5 ft. fixed blade)
Consists of:
(1) SP-435 blade pivot
(2) SP-441 1 ft. blade section
(1) SP-444 2 ft. blade section
(1) SP-590 edger assembly
With optional SP-751,
2 ft. hydraulic extension assembly
Paves 8’6” at 45°
SPD Left Side Discharge
SP-588 Rev-A blade & column assembly
(6 ft. fixed blade)
Consists of:
(1) SP-435 blade pivot
(1) SP-441 1 ft. blade section
(2) SP-444 2 ft. blade section
(1) SP-590 edger assembly
No push tube / turnbuckle
Paves 6 ft. at 45°
Right Side Discharge
SP-420 Rev-B, blade & column assembly
(6 ft. fixed blade)
Consists of
(1) SP-435 blade pivot
(1) SP-441 1 ft. blade section
(2) SP-444 2 ft. blade section
(1) SP-590 edger assembly
With optional SP-752
(1) 2 ft. hydraulic extension assembly +
(1) SP-441 1 ft. blade section
Paves 10’6” at 45°
sp-8 BlAde ConfIGurAtIon WItH 2 ft HydrAulIC extensIon
sp-10 BlAde ConfIGurAtIon WItH 2 ft HydrAulIC extensIon

Table of Contents

Related product manuals