EasyManua.ls Logo

Milnor 48040F7D - Door Latch

Milnor 48040F7D
135 pages
Print Icon
To Next Page IconTo Next Page
To Next Page IconTo Next Page
To Previous Page IconTo Previous Page
To Previous Page IconTo Previous Page
Loading...
Door Latch
PELLERIN MILNOR CORPORATION
BIIFGM19 (Published) Book specs- Dates: 20100708 / 20100708 / 20120629 Lang: ENG01 Applic: EUU
Door Latch
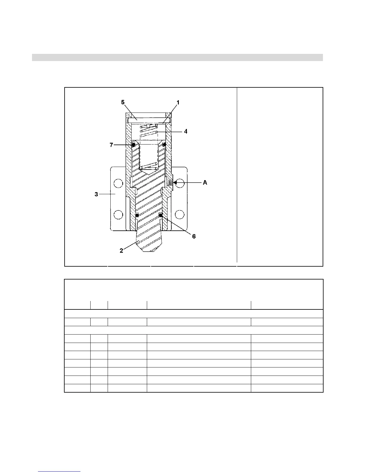
Figure 1: Door Latch
Cross Section Legend
.
A. Compressed air
Table 1: Parts List—Door Latch
Find the assembly for your machine and the letter shown in the "Item" column. The components for your
machine will show this letter or the word "all" in the "Used In" column. The numbers shown in the "Item"
column are those shown in the illustrations.
Used In
Item
Part Number
Description/Nomenclature
Comments
Assemblies
A
SA 15 028
Assembly, Door latch
Components
all
1
02 15105
Retainer ring
all
2
02 15297
Striker
all
3
02 15298
Cylinder
all
4
02 15836
Spring
all
5
15H090
Pin
all
6
60C122
O-ring, 1"X1/8
all
7
60C128
O-ring, 1+3/8X1/8
— End of BIIFGM19 —
97

Table of Contents

Related product manuals