EasyManua.ls Logo

Mitsubishi QJ71LP21 - Page 414

Mitsubishi QJ71LP21
422 pages
To Next Page IconTo Next Page
To Next Page IconTo Next Page
To Previous Page IconTo Previous Page
To Previous Page IconTo Previous Page
Loading...
App - 46 App - 46
MELSEC-Q
APPENDIX
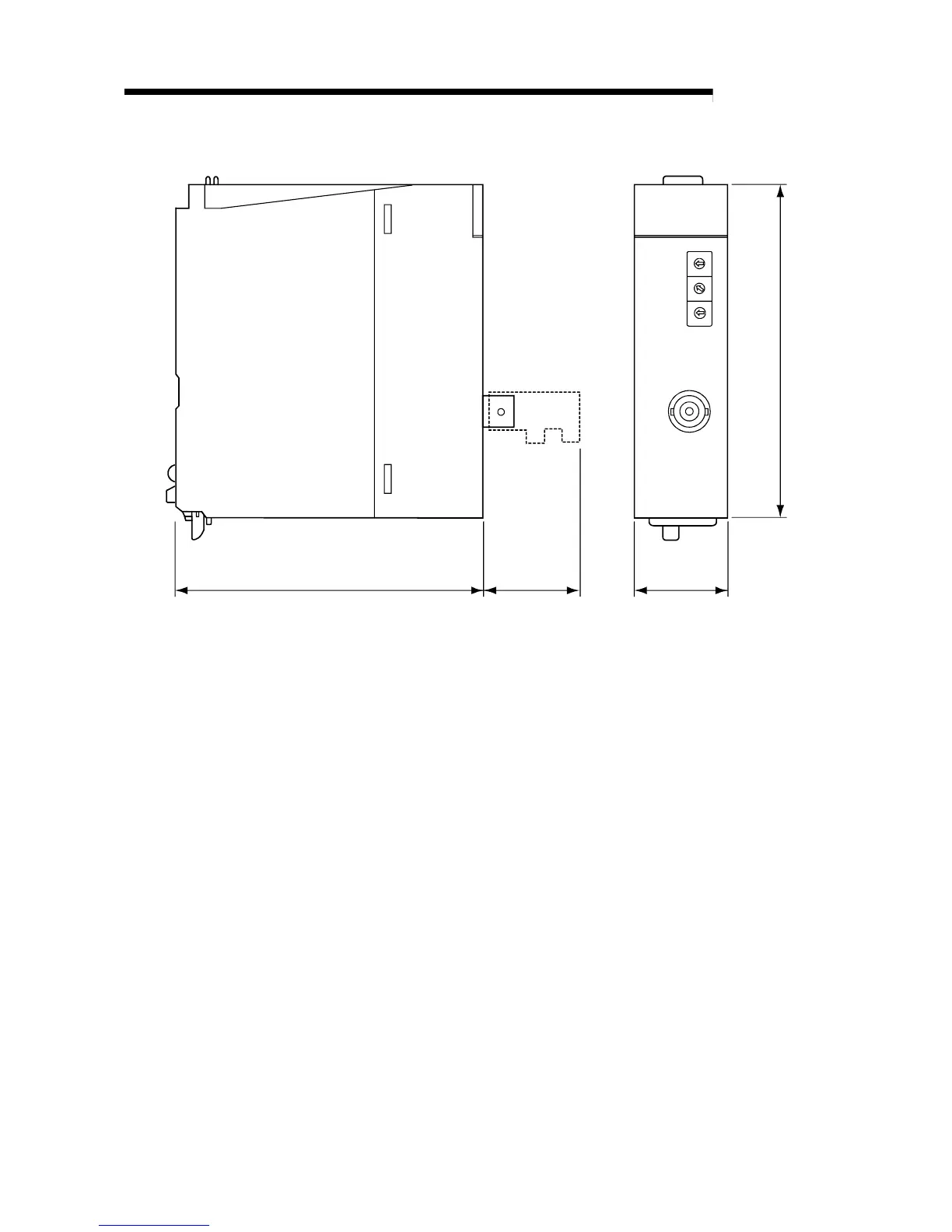
(3) QJ71BR11
90(3.54)
55(2.17)
27.4(1.08)
98(3.86)
MNG
D.LINK
RD
L ERR.
RUN
T.PASS
SD
ERR.
0
5
9
4
8
3
7
2
6
1
0
5
9
4
8
3
7
2
6
1
STATION NO.
X10
X1
MODE
0
8
F
7
E
6
D
5
C
4
B
A
3
2
9
1
QJ71BR11
QJ71BR11
Unit: mm (in.)

Table of Contents

Related product manuals