EasyManua.ls Logo

Mooney M20R - Page 143

Default Icon
360 pages
Print Icon
To Next Page IconTo Next Page
To Next Page IconTo Next Page
To Previous Page IconTo Previous Page
To Previous Page IconTo Previous Page
Loading...
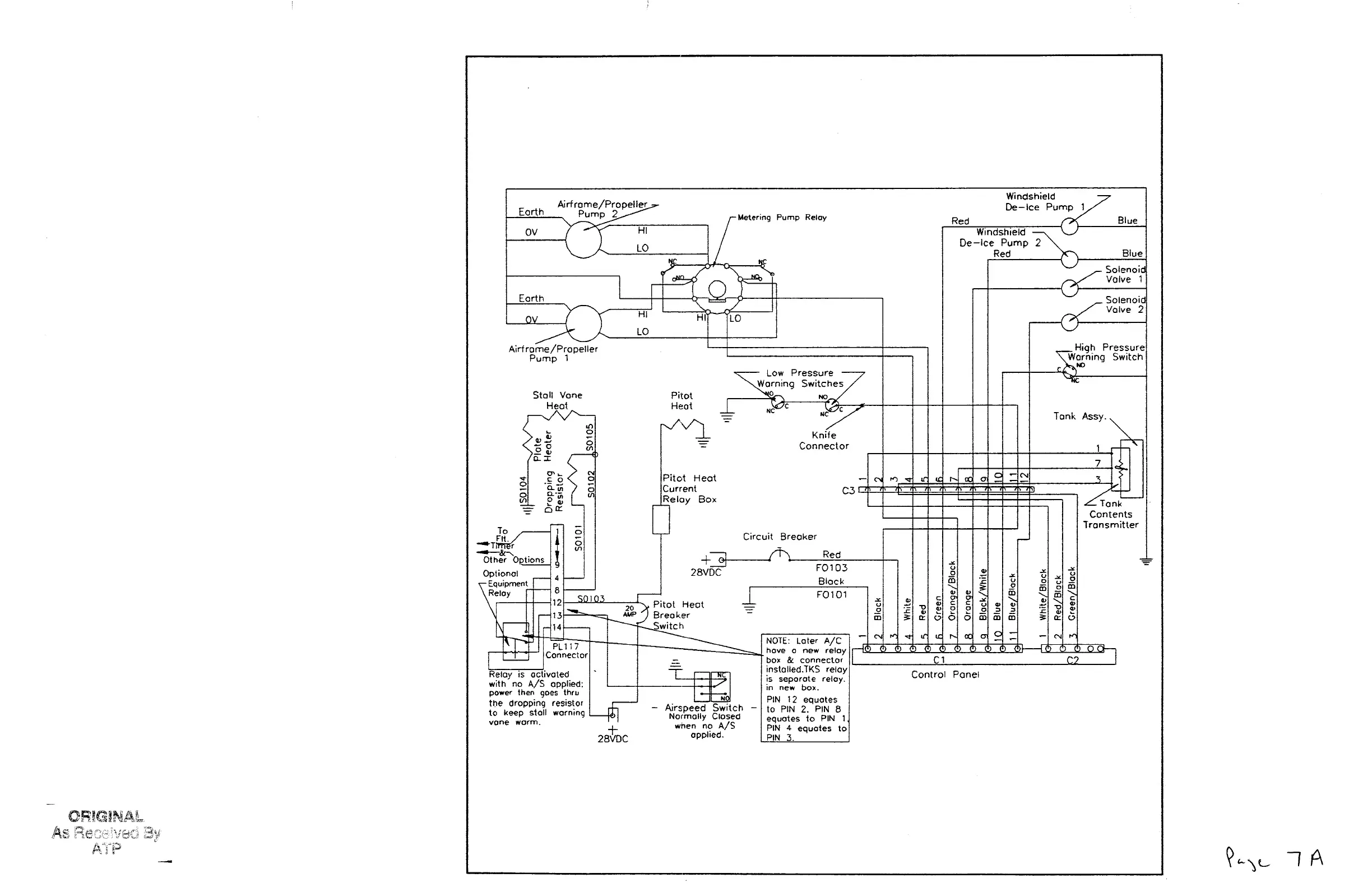
Windshield
Airfrome/PropelieJ:
De-ice
Pump
t
forth
Pump
Metering
Pump
Reloy
Red
Blue
ov
ly
HI
I
I
Windshield
tO
De-ice
Pump
2
Red
Blue
Valve
1
Earth
I I
C~
r
1
i
1
I
I I
v
So
Valve
2
HI
LO
Airfrome/Propeller
High
Pressur
Pump
1
Warning
Switch
No
Low
Pressure
Warning
Switches
Stall
Vane
Pilot
Heat
Heat
NC
"C~
I I
f
i
I
1
i
I
t
Tonk
Assy.
o
Knife
~P
9
1
Connector
I
I
I
/I/
1
aI
P~I
.e
a
Pitot
Heat
~E
ol
ICurrent
C3
Relay
Bo*
Tank
I3n
Contents
Transmitter
To
FI1.
Circuit
Breaker
Red
other
‘Option~lX
I I I
F0103
o
t
Optional
28VDC
4
Block
o
Equipment
o
Reloy
8
F0101
I I I I
m
12
Pitot
Heat
c
13
a:Op
r
e
e
e
Breaker
O
O
m
m
I
o
141
1
’-i;Switch
NOTE:
ioter
A/C
PL117
Connector
hove
o
new
reloy
bor
connector
C1
instolled.TKS
reloy
Control
Panel
Relay
is
octivated
rith
no
4/5
applied:
ISn
power
then
goes
thru
the
dropping
resistor
PIN
12
equoter
to
keep
stall
warning
Airspeed
Switch
to
PlN
2.
PIN
8
Normolly
Closed
equotes
to
PIN
1
vane
worm.
when
no
A/S
PIN
4
equotes
to
28~bC
applied.
PIN
3.
As
P.~
I I
Island Enterprises

Table of Contents