EasyManua.ls Logo

Napoleon BL46NTE - Dimensions Minimaux de Lencadrement

Napoleon BL46NTE
124 pages
Print Icon
To Next Page IconTo Next Page
To Next Page IconTo Next Page
To Previous Page IconTo Previous Page
To Previous Page IconTo Previous Page
Loading...
W415-1705 / A / 07.13.17
85
ossature approximatif
FR
Les dégagements minimaux entre le haut de l’évent et les matériaux combustibles peut être réduite de
3” (76mm) à 1” (25mm) dans ces installations avec un évent verticale de minimum 38” (96,5cm) faire
immédiatement au colet de l’appareil.
note:
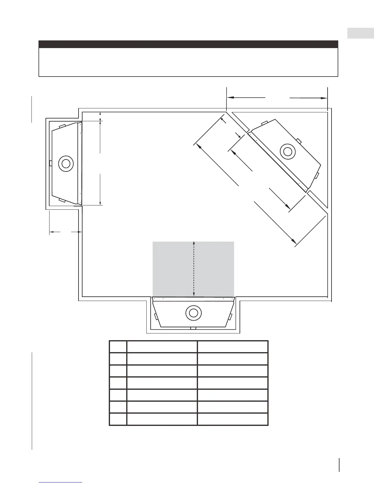
4.1 dimensions minimaux de l’encadrement
Do not put objects in front of the appliance
(minimum distance of 4 feet)*
BL36-1 BL46
A
16” (40,6cm) 18 9/16” (47,1cm)
B
36 1/2” (92,7cm) 47 3/8” (120,3cm)
C
31 7/8” (81cm) 42 1/2” (107,9cm)
D
6 5/16” (16cm) 6 5/16” (16cm)
E
49 1/8” (124,8cm) 60 3/16” (152,9cm)
F
6” (15,2cm) 6” (15,2cm)
B
C
B
D
E
A
Ne placez pas d’objets devant
l’appareil (distance minimale de 48 po
[121,9cm])*.
F
* Cela appuie à chaque type d’installation.
MUR DU CÔTÉ

Table of Contents

Other manuals for Napoleon BL46NTE

Related product manuals