EasyManua.ls Logo

Nibe FLM - Electrical Circuit Diagram

Nibe FLM
40 pages
To Next Page IconTo Next Page
To Next Page IconTo Next Page
To Previous Page IconTo Previous Page
To Previous Page IconTo Previous Page
Loading...
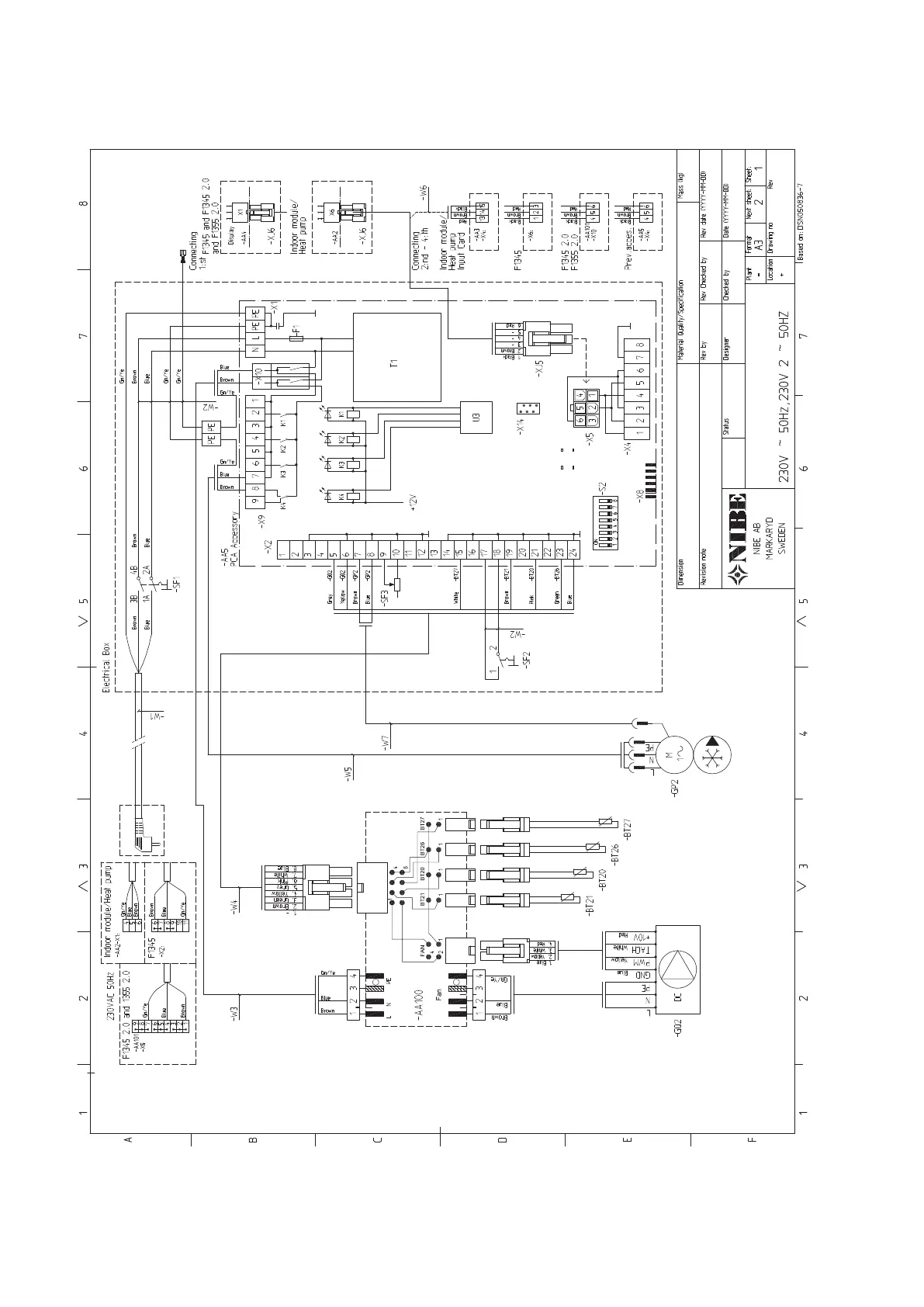
Electrical circuit diagram
WIRING DIAGRAM, NIBE FLM
ELSCHEMA, NIBE FLM
050836 7
NIBE FLMChapter 11 | Technical data34

Other manuals for Nibe FLM

Related product manuals