EasyManua.ls Logo

Norco MITX-6922 - Serial Port(Com1,Com2,Com3456

Norco MITX-6922
55 pages
Print Icon
To Next Page IconTo Next Page
To Next Page IconTo Next Page
To Previous Page IconTo Previous Page
To Previous Page IconTo Previous Page
Loading...
MITX-6922 Mini-ITX Motherboard Based on Intel QM67/QM77 Chipset
10
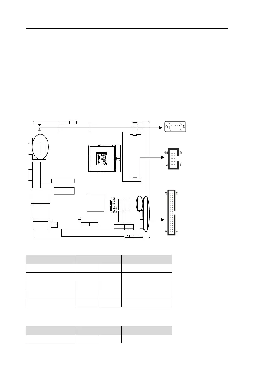
2.5.2 Serial PortCOM1COM2COM3456
Board with 6xserial portCOM1 is standard DB9 pin connectorCOM2 is standard 2×5
Pin pinthe DB9 interface needs to be led out through the conversion cableCOM3-6 are 2×
20Pin pinthe equipment needs to be connected by conversion cable. Users can turn on or off
the serial port in the BIOS setting option, and can select its interrupt IRQ and I / O address.
COM1-COM6 all support RS232 transmission mode COM2 also support RS422/485
transmission mode. Users can select COM2 transmission mode by setting jumpers. Refer to
2.4.4 "COM2 jumper settings" in Chapter Two for detailed settings.
COM1
Signal Name
Pin
Signal Name
DCD
1
2
DSR
SIN
3
4
RTS
SOUT
5
6
CTS
DTR
7
8
RI
GND
9
10
GND
COM2
Signal Name
Pin
Signal Name
DCD
1
2
DSR
COM1
COM2
COM3456