EasyManua.ls Logo

Norco MITX-6922 - Audio Port(Audio,Jau,Jamp

Norco MITX-6922
55 pages
Print Icon
To Next Page IconTo Next Page
To Next Page IconTo Next Page
To Previous Page IconTo Previous Page
To Previous Page IconTo Previous Page
Loading...
MITX-6922 Mini-ITX Motherboard Based on Intel QM67/QM77 Chipset
20
1FAN current 350 mA4.2W12V.
2Make sure that the fan wiring is in line with the socket wiring.
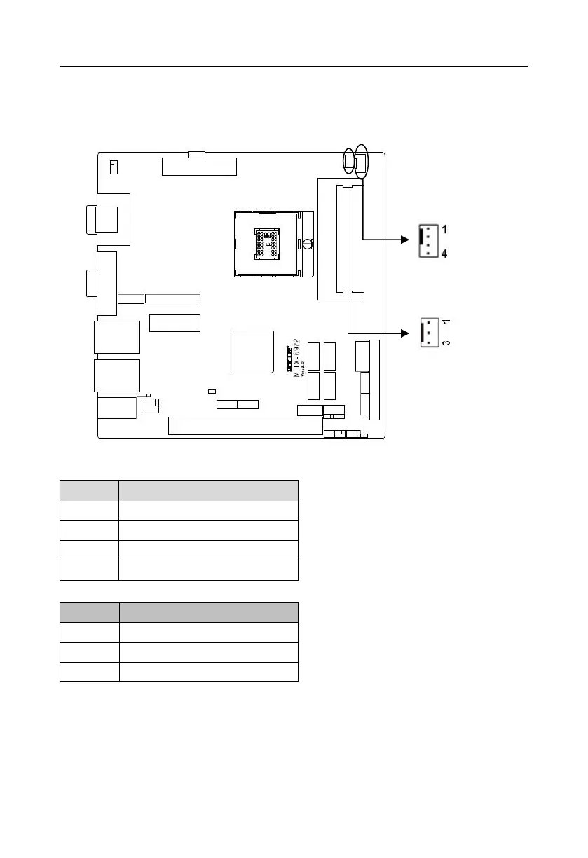
CUFAN:
Pin
Signal Name
1
GND
2
+12V
3
Speed detect
4
Speed control
SYSFAN
Pin
Signal Name
1
GND
2
+12V
3
Speed detect
2.5.10 Audio PortAudioJAUJAMP
Provide 1xAudio port blue is Line-ingreen is Line-outred is Mic-in built-in Audio
expansion pinone 2×5Pin pinprovide 1xLine-in1xLine-out1xMic-in. Provide one 1×4Pin
audio power amplifier interface. Support 2x 6W loudspeakers.
CPUFAN
SYSFAN