EasyManua.ls Logo

Notifier APS-6R - Appendix G: APS-6 R Mounting and Wiring for NFS-3030; Mounting APS-6 R in Chassis for NFS-3030; Wiring APS-6 R to AMPS-24 and CPU-3030

Notifier APS-6R
32 pages
Print Icon
To Next Page IconTo Next Page
To Next Page IconTo Next Page
To Previous Page IconTo Previous Page
To Previous Page IconTo Previous Page
Loading...
APPENDIX G - NFS-3030
28 PN 50702:B2 4/14/03
APPENDIX G - NFS-3030
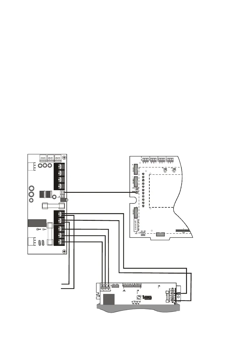
Mounting an APS-6R in a Chassis
An Auxiliary Power Supply is mounted on a CHS-4 Series chassis.
See “Mounting in CAB-3/CAB-4 Series Cabinets” on page 12..
Connecting to the AMPS-24 and CPU-3030
Make the following connections as shown in the figure below.
Connect primary power from TB1 on the APS-6R to TB3 HOT,
NEUT and EARTH on the AMPS-24.
Connect secondary power from TB3 BATT(+) and BATT(-)on
the APS-6R to TB5 (BAT IN +) and TB4 (BAT OUT-)
respectively on the AMPS-24.
Connect trouble input from J3 on the APS-6R to the J5 Trouble
bus connection on the CPU-3030.
Figure 19 Wiring to AMPS-24 and CPU-3030
J2
J9
J3
J1
TB2
TB3
TB1
JP3JP2
To battery
backup
+
-
AMPS-24
CPU-3030
APS-6R to NFS-3030.cdr
www.PDF-Zoo.com
firealarmresources.com

Other manuals for Notifier APS-6R

Related product manuals