EasyManua.ls Logo

Oakton pH 110 - Display and Keypad Functions; LCD Display Overview

Oakton pH 110
76 pages
Print Icon
To Next Page IconTo Next Page
To Next Page IconTo Next Page
To Previous Page IconTo Previous Page
To Previous Page IconTo Previous Page
Loading...
Instruction Manual CyberScan pH 11 / 110
2
2 DISPLAY & KEYPAD FUNCTIONS
2.1 Display
The LCD has a primary and secondary display.
The primary display shows the measured pH or mV values.
The secondary display shows the measured temperature.
The display also shows error messages, keypad functions and program functions.
MEM
pH
%
pH
R.mV
SETUP MEAS
CAL MEM
Primary Display
Secondary Display
ERR
ATC
°C °F
READY
HOLD
ON
OFF
1.8.8.8
1.8.8.8
1
2
3
4
5
6
7
8
9
10
12
11
14
13
15
16
17
18
-
-
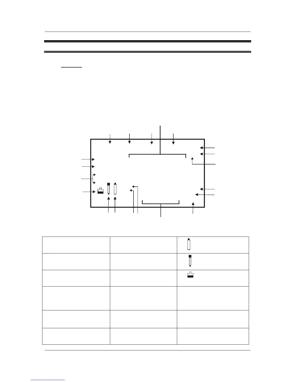
Figure 1: Active LCD screen
1. SETUP - Setup mode
indicator
7. pH - pH indicator
13.
- Low battery indicator
2. MEAS - Measurement mode
indicator
8. °C°F - Temperature
indicator
14.
- Electrode indicator
3. CAL - Calibration indicator
9. pH - pH buffer selection
indicator
15.
- Calibration buffer
indicator
4. MEM - Memory recall mode
indicator
10. ATC - Automatic
Temperature Compensation
indicator
16. ON – READY/Auto HOLD set
up enable indicator.
OFF – READY set up disable
indicator
5. R.mv - Relative millivolt (For
pH 110 only)& millivolt
indicator (For both model)
11. MEM - Memory location
indicator
17. HOLD – Hold indicator
6. % - Percentage indicator 12 ERR - Error indicator 18. READY – Ready indicator

Table of Contents

Related product manuals