EasyManua.ls Logo

OEG 150 - Pufferspeicher

OEG 150
Print Icon
To Next Page IconTo Next Page
To Next Page IconTo Next Page
To Previous Page IconTo Previous Page
To Previous Page IconTo Previous Page
Loading...
11
D
Pufferspeicher
150 – 500
7. 1
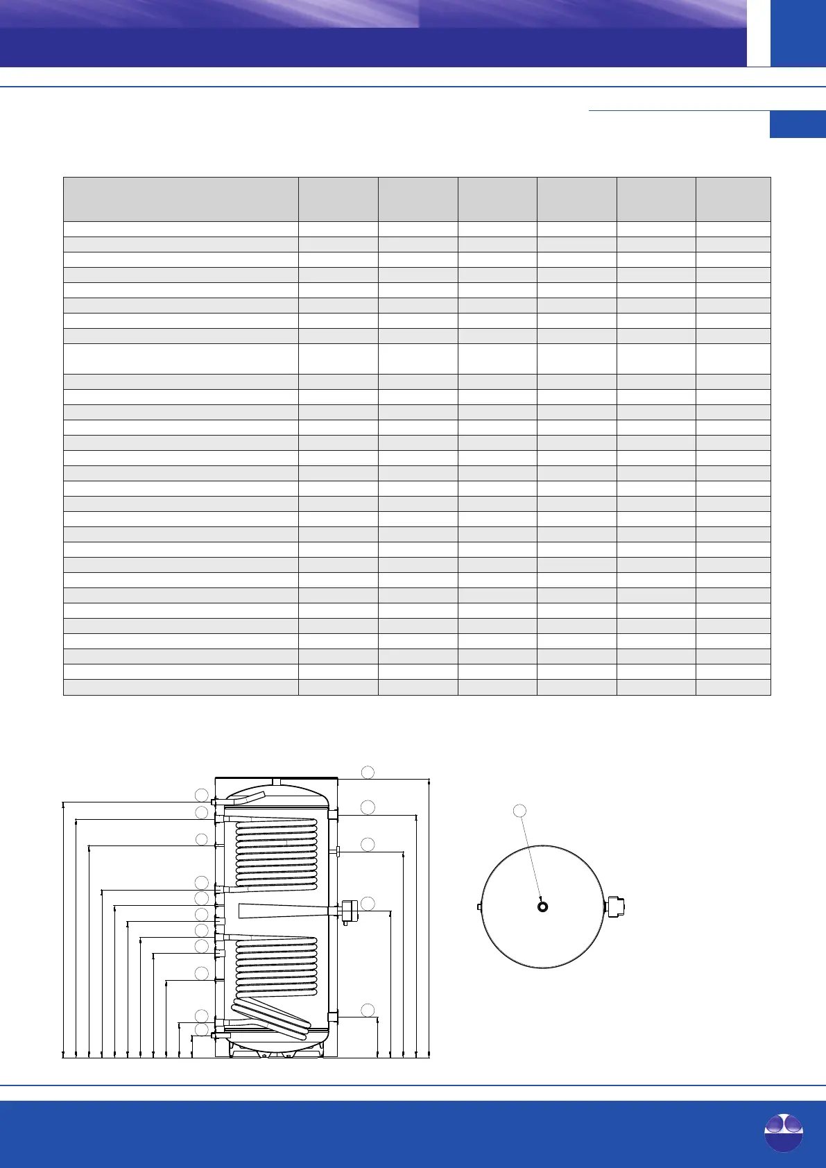
Pufferspeicher ohne, mit einem (-1) oder 150 / 150-1 / 200 / 200-1 / 300 / 300-1 / 400 / 400-1 / 500 / 500-1 /
zwei (-2) Glattrohrwärmetauschern 150-2 200-2 300-2 400-2 500-2
Tatsächliches Volumen nach EN 12897 [l] 158 / 157 / 156 206 / 203 / 202 300 / 297 / 296 419 / 415 / 412 516 / 512 / 509
Brandschutzklasse der Dämmung nach DIN 4102-1 [-] B2 B2 B2 B2 B2
Gesamthöhe inklusive Dämmung [mm] 1020 1265 1750 1725 1770
Durchmesser ohne Dämmung [mm] 500 500 500 600 650
Durchmesser mit Dämmung [mm] 610 610 610 710 760
Kippmaß [mm] 1170 1375 1830 1865 1925
Gewicht [kg] 48 / 60 / 70 60 / 77 / 87 71 / 88 / 100 88 / 119 / 145 96 / 127/ 153
Energieeffizienzklasse nach EU-Verordnung
Nr. 812/2013 [-] A+ A+ A+ A+ A+
Warmhalteverlust nach EN 12897 [W] 28 31 36 40 43
Speicher pmax / tmax [bar] / [°C] 3 / 95 3 / 95 3 / 95 3 / 95 3 / 95
Glattrohrwärmetauscher* unten Fläche / Volumen [m²] / [l] 0,77 / 5 1,15 / 7,5 1,15 / 7,5 1,88 / 12,3 1,88 / 12,4
Glattrohrwärmetauscher* oben Fläche / Volumen [m²] / [l] 0,63 / 4,2 0,63 / 4,2 0,77 / 5 1,73 / 11,3 1,74 / 11,4
Glattrohrwärmetauscher* pmax / tmax [bar] / [°C] 10 / 130 10 / 130 10 / 130 10 / 130 10 / 130
Rücklauf Wärmeerzeuger (R 1") A [mm] 132 132 132 130 137
Rücklauf Glattrohrwärmetauscher** unten (Rp 1") B [mm] 207 219 222 210 217
Fühlerhülse (Ø 6 mm) C [mm] 277 415 415 474 481
Frei verfügbar (Rp 1") D [mm] - - - 640 647
Vorlauf Glattrohrwärmetauscher** unten (Rp 1") E [mm] 468 619 622 740 747
Frei verfügbar (Rp 1") F [mm] - - - 840 847
Fühlerhülse (Ø 6 mm) G [mm] - - - 932 945
Rücklauf Glattrohrwärmetauscher** oben (Rp 1") H [mm] 542 772 1217 1025 1042
Fühlerhülse (Ø 6 mm) I [mm] 682 878 1347 1265 1317
Vorlauf Glattrohrwärmetauscher** oben (Rp 1") J [mm] 752 982 1487 1465 1482
Vorlauf Wärmeerzeuger (R 1") K [mm] - - - 1565 1587
Vorlauf Wärmeerzeuger (R 1") / Entlüftung (Rp 1¼") L [mm] 1019 / - 1264 / - 1749 / - - / 1695 - / 1731
Frei verfügbar (Rp 1½") M [mm] 792 1032 1517 1485 1508
Thermometer (Ø 9 mm) N [mm] 682 910 1423 1265 1279
Heizstab (Rp 1½") O [mm] 500 689 1145 895 910
Frei verfügbar (Rp 1½") P [mm] 242 242 242 245 252
* Falls vorhanden
** Falls vorhanden,
ansonsten frei verfügbar (Rp 1")
L
A
B
C
D
E
F
G
H
I
J
K
L
M
N
O
P
Frischwasser-, Kombi- und Pufferspeicher

Table of Contents