EasyManua.ls Logo

Omron CJ1W-DA08C - Components and Switch Settings

Omron CJ1W-DA08C
427 pages
Print Icon
To Next Page IconTo Next Page
To Next Page IconTo Next Page
To Previous Page IconTo Previous Page
To Previous Page IconTo Previous Page
Loading...
302
Components and Switch Settings Section 7-3
7-3 Components and Switch Settings
MACH
No
.
MAD42
RUN
ERC
ERH
B1
A1
ADJ
x10
1
x10
0
0
9
8
7
6
5
4
3
2
1
0
9
8
7
6
5
4
3
2
1
MACH
No
.
MAD42
RUN
ERC
ERH
B1 A1
ADJ
x10
1
x10
0
2121
0
9
8
7
6
5
4
3
2
1
0
9
8
7
6
5
4
3
2
1
ONON
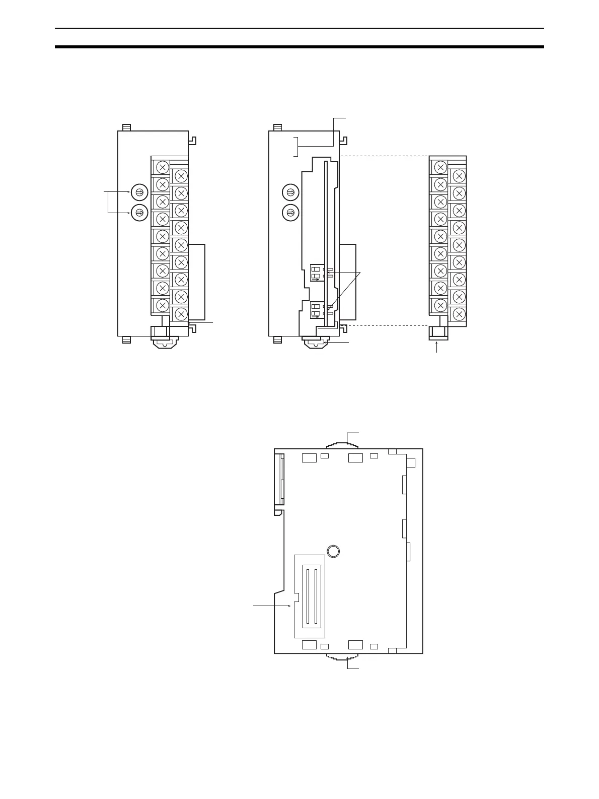
Front
With Terminal Block With Terminal Block Removed
Indicators
Terminal block
Voltage/current
switch
DIN Track
mounting pin
Terminal block
Terminal block lock lever
(pull down to release
terminal block)
User
number
setting
switch
Slider
Expansion connector
Slider
Side

Table of Contents

Related product manuals