EasyManua.ls Logo

Omron CJ1W-DA08C - Voltage Input Disconnection

Omron CJ1W-DA08C
427 pages
Print Icon
To Next Page IconTo Next Page
To Next Page IconTo Next Page
To Previous Page IconTo Previous Page
To Previous Page IconTo Previous Page
Loading...
307
Wiring Section 7-4
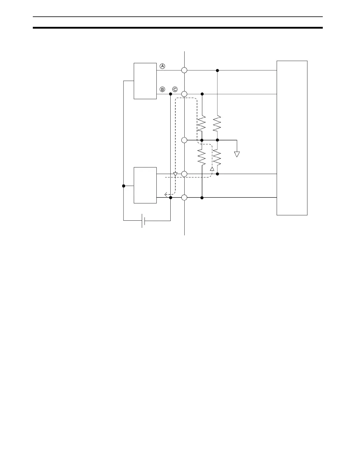
7-4-3 Voltage Input Disconnection
Note If the connected device #2 in the above example outputs 5 V and the power
supply is shared by 2 channels as shown in the above diagram, approximately
one third of the voltage, or 1.6 V, will be input at input 1.
When voltage inputs are used and a disconnection occurs, separate the
power supply at the side of the connected devices or use an insulating device
(isolator) for each input to avoid the following problems.
When the power supply at the connected devices is shared and section A or B
is disconnected, power will flow in the direction of the broken line and the out-
put voltage of the other connected devices will be reduced to between a third
to a half of the voltage. If 1 to 5 V is used and the reduced voltage output, dis-
connection may not be detectable. If section C is disconnected, the power at
the (–) input terminal will be shared and disconnection will not be detectable.
For current inputs, sharing the power supply between the connected devices
will not cause any problems.
Connected
device #1
24 VDC
Connected
device #2

Table of Contents

Related product manuals