EasyManua.ls Logo

Omron CJ1W-DA08C - Page 80

Omron CJ1W-DA08C
427 pages
Print Icon
To Next Page IconTo Next Page
To Next Page IconTo Next Page
To Previous Page IconTo Previous Page
To Previous Page IconTo Previous Page
Loading...
57
Analog Input Functions and Operating Procedures Section 2-6
When a disconnection is restored, the mean value processing function begins
again from step 1.
Note 1. The default setting for mean value processing in the Analog Input Unit is
mean value processing with 2 buffers. The response time for the default
setting is different from when there is no mean processing, as shown in the
following diagram.
2. Specify “no mean value processing” to follow conversion of a rapid change
in input signals.
3. If the averaging function is used, the delay in the conversion data in com-
parison to changes in the input signals will be as shown below.
Response Time at 1-ms
Conversion Time/4,000
Resolution
Unit: ms
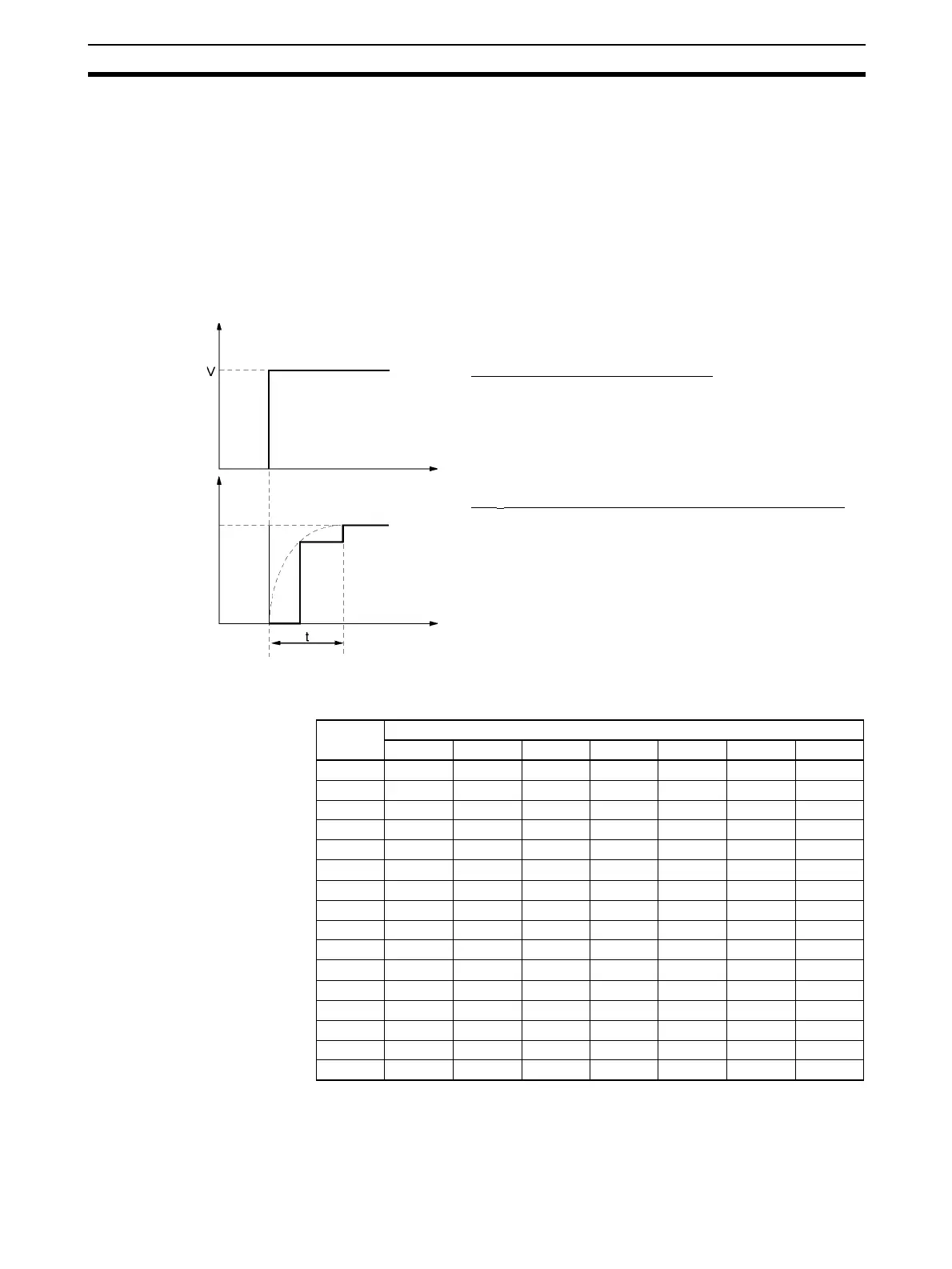
Input signal
to the Unit (V)
Conversion data
Time (ms)
Time (ms)
t: Delay
For V = 20 V (10 to 10 V)
1-ms Conversion Time/4,000 Resolution
Using One Word
t = n + (2 to 3)
Using m Words (1
m 16)
No averaging (n = 1) or two averaging buffers (n = 2):
t = n x (m + 2)
n averaging buffers (4
n 64):
t = (n
2) x m + 10.5
250-
µs Conversion Time/8,000 Resolution (For version-1 Unit)
Using One Word
t = n + (2 to 3) x 1/4
Using m Words (1
m 16)
No averaging (n = 1) or two averaging buffers (n = 2):
t = n x (m + 2) x 1/4
n averaging buffers (4
n 64):
t = {(n
2) x m + 10.5} x 1/4
MN
64 32 16 8 4 2 1
16 1002.5 490.5 234.5 106.5 42.5 36 18
15 940.5 460.5 220.5 100.5 40.5 34 17
14 878.5 430.5 206.5 94.5 38.5 32 16
13 816.5 400.5 192.5 88.5 36.5 30 15
12 754.5 370.5 178.5 82.5 34.5 28 14
11 692.5 340.5 164.5 76.5 32.5 26 13
10 630.5 310.5 150.5 70.5 30.5 24 12
9 568.5 280.5 136.5 64.5 28.5 22 11
8 506.5 250.5 122.5 58.5 26.5 20 10
7 444.5 220.5 108.5 52.5 24.5 18 9
6 382.5 190.5 94.5 46.5 22.5 16 8
5 320.5 160.5 80.5 40.5 20.5 14 7
4 258.5 130.5 66.5 34.5 18.5 12 6
3 196.5 100.5 52.5 28.5 16.5 10 5
2 134.5 70.5 38.5 22.5 14.5 8 4
1 673519117 5 3

Table of Contents

Related product manuals