EasyManua.ls Logo

Omron RX - Page 40

Omron RX
414 pages
Print Icon
To Next Page IconTo Next Page
To Next Page IconTo Next Page
To Previous Page IconTo Previous Page
To Previous Page IconTo Previous Page
Loading...
2-15
2-2 Wiring
2
Design
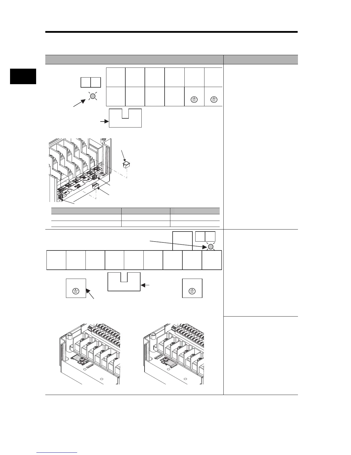
Arrangement of Main Circuit Terminals
The terminal arrangement on the Inverter main circuit terminal block is shown below.
Terminal arrangement Applicable model
RX-A2004 to A2037
RX-A4004 to A4037
Ro,To: M4
Ground terminal: M4
Others: M4
[EMC filter function switching method]
RX-A2055, A2075
RX-A4055, A4075
Ro,To: M4
Ground terminal: M5
Others: M5
[EMC filter function switching method]
RX-A2110
RX-A4110
Ro,To: M4
Ground terminal: M6
Others: M5
Dummy plug
(green)
Filter disable pin (J62)
Filter enable pin
(J61)
Short plug
In order to enable the EMC filter
function, set up the plug inserted
into the filter enable pin (J61) and
filter disable pin (J62) as shown in
the table below. Confirm that
electrical power has been
disconnected before performing this
setup. Not doing so may result in
electric shock. Also, use with the
plug inserted.
Filter enable pin (J61)
EMC filter disabled
EMC filter enabled (factory default)
Dummy plug (green)
Dummy plug (green)
Short plug
Short plug
Filter disable pin (J62)
RB
Ro To
G
G
Ground terminal with short-circuit
bar (shaded area) for EMC filter
function switching
PD/+1 - P/+
short-circuit bar
When not using the DC
reactor, keep the PD/+1 - P/+
short-circuit bar attached.
R/L1 S/L2 T/L3 PD/+1
P/+ N/- U/T1 V/T2 W/T3
CHARGE LED indicator
EMC filter enabled (factory default) EMC filter disabled

Table of Contents

Related product manuals