EasyManua.ls Logo

Omron VS mini J7 - Installations Conditions

Omron VS mini J7
177 pages
Print Icon
To Next Page IconTo Next Page
To Next Page IconTo Next Page
To Previous Page IconTo Previous Page
To Previous Page IconTo Previous Page
Loading...
8
Installation Chapter 2-1
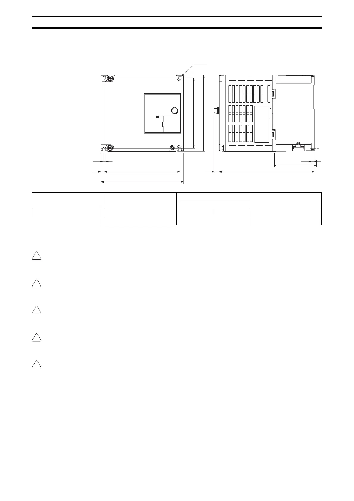
CIMR-J7AZ24P0 (4.0 kW) 3-phase 200-V AC Input
CIMR-J7AZ44P0 (4.0 kW) 3-phase 400-V AC Input
2-1-2 Installations Conditions
Provide an appropriate stopping device on the machine side to secure safety.
(A holding brake is not a stopping device for securing safety.) Not doing so
may result in injury.
Provide an external emergency stopping device that allows an instantaneous
stop of operation and power interruption. Not doing so may result in injury.
Be sure to install the product in the correct direction and provide specified
clearances between the Inverter and control panel or with other devices. Not
doing so may result in fire or malfunction.
Do not allow foreign objects to enter inside the product. Doing so may result in
fire or malfunction.
Do not apply any strong impact. Doing so may result in damage to the product
or malfunction.
Rated voltage Model CIMR-J7AZ- Dimensions (mm) Weight (kg)
DD1
3-phase 200 V AC 24P0 161 71 Approx. 2.1
3-phase 400 V AC 44P0 161 71 Approx. 2.1
5
6
128
140
Two, 5-dia. holes
118
128
8.5
D
D1
5
!
WARNING
!
WARNING
!
Caution
!
Caution
!
Caution

Table of Contents

Related product manuals