EasyManua.ls Logo

Panasonic CS-A73KR - Schematic Diagram 1;3

Panasonic CS-A73KR
124 pages
Print Icon
To Next Page IconTo Next Page
To Next Page IconTo Next Page
To Previous Page IconTo Previous Page
To Previous Page IconTo Previous Page
Loading...
(MX-9)
A54LNK3171B
A54LNK2172B
ECONOMY
(PH-6)
STEPPING MOTOR DRIVE
OFF/ON
TIMER
SLEEP
POWERFUL
10 7
12 5
11 6
9
g
f
e
CN-STM
1
2
3
4
55
4
3
2
1
(MX-5)
(ZH5)
AIR TEMP. SENSOR
(15k 3950)
(20k 3950)
PIPE TEMP. SENSOR
R32
102k
RECEIVER
INDICATOR
a
b
c
d
CN-DISP
1
2
3
4
5
6
9
8
314
215
116
413
(PH4)
1
3
IC5
A52A2003GR2
RX1
24k
R30
26.1k
R31
10k
R28
JX2
SW1
5.1k
R16
1k
R17
0.01µ
C11
16V
10µ
C15
+
15k
R26
R27
20k
+
C16
10µ
16V
(PH3)
PH302C
330
0.01µ
0.01µ
FO
VCC2
OUT
VCC1
GND
CO
IN-
IN+
47µ
6.3V
+
137k
5
6
7
8
4
3
2
1
CN-RCV
2
CN-DISP
8
7
6
5
4
3
2
1
CN-TH
1
2
3
4
MAIN
GRN
ORG
ORG
ORG
RED
R29
0.01µ
C17
TEST
R8
1k
R9
10k
+
C22
10µ
0.01µ
C23
16V
BZ1
BZ
1k
R23
b
e
2.2k
R22
D1
RY-PWR
ERA15-01
c
R21
6.2k
2SD148-4X
Q4
AIR SWING
MOTOR
RY-PWR DRIVE
Fig.1
REMOTE CONTROL NO.
SHORT
SHORTOFF
ON
ON
OFF
4
3
2
1
SW1
RX1
REMOTE CONTROL NO.
JUMPER WIRE
JUMPER WIRE
OFF
ON
ON
OFF
4
3
2
1
SW1
RX1
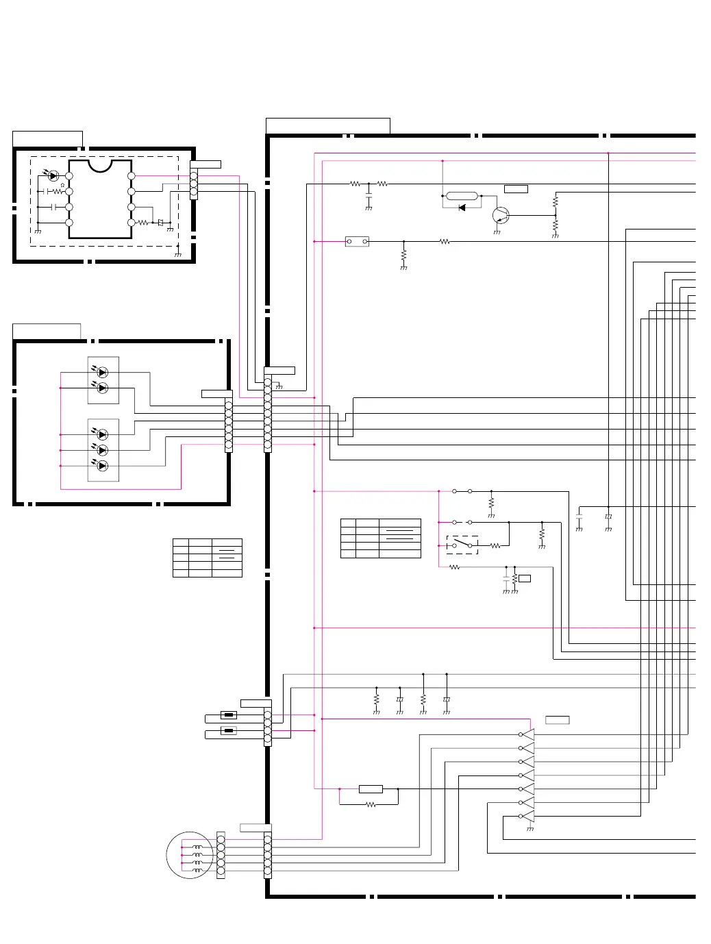
SCHEMATIC DIAGRAM 1/3
• CS- A73KR / CU-A73KR
• CS- A93KR / CU-A93KR
• CS- A123KR / CU-A123KR

Table of Contents

Related product manuals