EasyManua.ls Logo

Panasonic CS-A73KR - Schematic Diagram 3;3

Panasonic CS-A73KR
124 pages
Print Icon
To Previous Page IconTo Previous Page
To Previous Page IconTo Previous Page
Loading...
SW3
AUTO
PUMP DOWN
SW2
RY-H
c
b
e
10k
4.7k
Q8
RY-SHI
RY-HOT
SSR2
78A05
IC4
G
IO
(NHG)
16V
100µ
C3
+
5V12V OI
G
IC5
C1
3300µ
35V
(NHG)
78N12H
+
+
R2
10k
C5
0.022µ
Q2
2SC2412KTX
c
e
b
R4
100k
C2
470µ
25V
(NHG)
b
e
c
2SC2412KTX
Q3
10k
R5
R44
10k
6.2k
R7
6.2k
R6
0.01µ
C7
ZD1
7.5EL1
(VH-1)
(GREEN)
YELLOW
BROWN
ORANGE
WHITE
RED
MOTOR
FAN
CN-FM7654321
32
BLUE
(GREEN)
CN-C 1
(VH-3)
CN-FUSE1 31
RY-PWR
FUSE
2.0A
AC
(WHT)
511U
ZNR2
SSR1
A56W2DEH1-5
RY-SHI
RY-H
CR1
0.022µ
RY-M
511U
ZNR1
CR2
CR3
CR4
120
120
0.022µ
120
0.022µ
120
0.022µ
1.5µ
400V AC
C-FM
REGULATOR REGULATOR
RELAY DRIVE
A55DC143XKTX
GENERATION
RESET SIGNAL
RESET SIGNAL
GENERATION
113°C
A56W2DEH1-5
BLACK
BLUE
ERZ-TCEAK471
CT1
CWA40322
TERMINAL
COMPRESSOR
TRADE MARK
BLUE RED
YELLOW
TRS
BLACK
MOTOR
FAN
WHITE
REVERSING VALVE
COIL
ELECTROLYTIC CAPACITOR
BLACK
BLACK
BLACK
MAGNETIC
RELAY B
RELAY A
MAGNETI
C
GRAY
GRAY
RED
BROWN 6
78
2
47
6
4
2
8
YELLOW
CAPACITOR
RED
BLUE
BLUE
BLUE
COMPRESSOR
CAPACITOR
WHITE
BLUE
RED
YELLOW
OVER LOAD
BLACK BLACK
ELECTROLYTIC CAPACITOR
1
2
3
4
SWITCH
SUPPLY
POWER
50/60Hz
SINGLE PHASE
AC 220-230V
4
3
2
1
A54MA723TA
D2
10k
R42
10µ
C20
+
51k
R43
0.01µ
C21
A54MA165TA5
D3
FM
(BLU)(RED)
HOT
ZNR2
CR1
CWA59015
RY-HOT
CWA00161
SSR2
FUSE
TEMPERATURE
RY-M
SSR1
16V
13CN-FUSE2
TEMPERATURE
FUSE
102°C
2 2
4
1
PROTECTOR
512
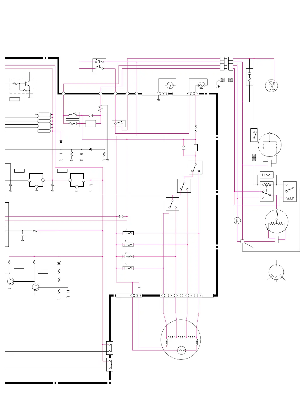
SCHEMATIC DIAGRAM 3/3

Table of Contents

Related product manuals