EasyManua.ls Logo

Panasonic DMR-E53EG - Page 255

Panasonic DMR-E53EG
285 pages
Print Icon
To Next Page IconTo Next Page
To Next Page IconTo Next Page
To Previous Page IconTo Previous Page
To Previous Page IconTo Previous Page
Loading...
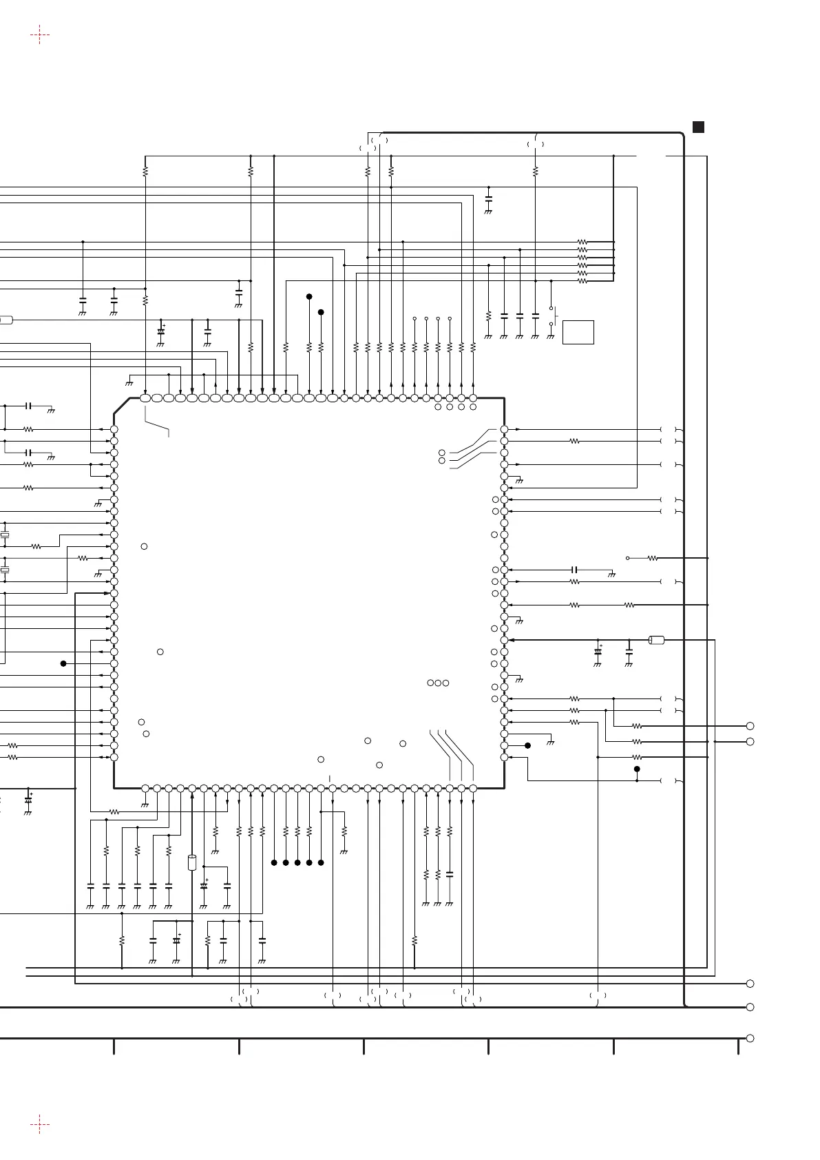
17.7. Timer Section (Main P.C.B. (5/5)) Schematic Diagram (T)
H
H
H
H
H
H
H
H
H
H
H
H
H
H
H
H
L
H
H
L
L
H
L
L
H
H
L
H
H
H
L
L
TL7526
<N SW+5V>
Ext.E55H
R7637 10K
K7514 0
K7515 0
<N SW+5V>
<N SW+5V>
(XFWE MUTE)
Y
C
R7544 100
R7545 100
<N SW+5V>
<N SW+5V>
E
D
C
B
A
A8
A20
A19
A15
A14
A13
A12
A11
A10
C7595 0.01
6.3V47
C7594
A40
A39
A38
A31
A28
A27
A26
A25
A24
A23
A22
A21
TL7523
TL7522
P
JC P ONP
POWER ONA
10P
C7605
10P
C7606
10P
C7582
10P
C7581
100
R7535
A8
A7
A6
A5
A4
A3
A2
A1
R7540 3300
R7530 22K
R7543 100
0
R7541
C7583 100P
C7580 10P
TL7525
K9ZZ00000424
ZJ7501
0.1
C7516
75
R7606
75
R7605
75
R7604
V L2 IN CPNC
J0JCC0000103
LB7512
V L2 IN CPNY
J0JCC0000103
LB7513
V L2 IN CPS
J0JCC0000103
LB7514
A L2 IN L
A L2 IN R
100K
R7645
C7515 470P
C7513 470P
J0JBC0000011
LB7515
J0JBC0000011
LB7516
C7512 47P
C7514 47P
A/V FRONT JACK
AV3
K1U415B00001
JK7501
AUDIO
(R) (L) VIDEO S-VHS
15
14
13
12
11
10
9
8
7
6
5
4
3
2
1
M P50
220P
C7509
220
R7644
(BUFFER)
2SD1819A0L
Q7518
220K
R7642
27K
R7641
B0ACCK000005
D7507
100K
R7643
220P
C7508
2.2M
R7640
47K
R7639
(BUFFER)
2SD0601A0L
Q7517
(BUFFER)
2SD0601A0L
Q7511
4700
R7638
5600
R7522
0.1
C7567
1500
R7521
0.1
C7569
100
6.3V
C7568
15K
R7523
0.1
C7566
100K
R7520
4.7
C7565
(MUTE)
2SD1819A0L
Q7508
J0JGC0000020
LB7504
3900
R7518
100P
C7563
(BUFFER)
2SB0709A0L
Q7507
1K
R7519
V SLICER VIDEO
(BUFFER)
2SB0709A0L
Q7505
4.7
C7562
(MUTE)
2SD1819A0L
Q7506
100K
R7517
1K
R7516
6.3V47
C7590
0.1
C7589
P JC REG5V
E53EG/E55EG
0
R7649
(AMP)
UNR521300L
QR7508
M CSYNC IN
TL7524
4700
R7670
M JC REG5V
AV2 PBM
WIDEM
MSW2
4700
R7538
R7542 10K
TL7503
A XTMUTE
J0JGC0000020
LB7507
M XMPREQ
(10MHz)
H0D100500016
X7501
C7584 18P
C7585 18P
C7586 22P
C7587 18P
R7539 100K
(32.768Hz)
H0A327200026
X7502
R7594 22K
R7537 100
R7613 100
R7620 22K
R7611 100
SCLKM
R7531 10K
R7536 100
0.01
C7607
6.3V47
C7608
4700
R7532
SBPTMM
22K
R7533
SBMTPM
R7534 100
J0JGC0000020
LB7506
SWITCH
ON/OFF
POWER
K0F111B00044
S7501
0
K7508
C7611 0.01
R7589 8200
R7634 100
R7579 220
R7580 220
AV2 8M
AFCM
R7581 39K
R7582 43K
47K
R7583
0
K7510
R7625 100
R7633 10K
C7612 0.01
R7590 8200
R7646 100
R7647 100
C7613 0.01
R7591 8200
XINTMM
R7584 47K
R7578 100
XINTPM
R7577 100
R7576 100
R7575 100
R7574 100
R7573 100
R7572 100
R7571 100
R7569 100
C7646 0.01
R7529 22K
R7563 100
R7629 100
6.3V47
C7603
0.1
C7604
J0JGC0000020
LB7509
R7585 22K
R7630 100
TL7521
TL7507
R7636 10K
R7635 10K
R7631 1K
R7632 1K
C7602 0.01
R7561 3900
R7628 100
R7627 100
R7607 22K
R7608 100K
CL7504
CL7506
CL7505
CL7503
R7559 100
R7612 100
R7558 100
R7586 22K
CL7507
R7621 100
R7557 100
C7609 10P
C7610 10P
R7588 4700
R7556 100
R7553 4700
R7554 100
UNR511300L
QR7501
C7517 0.1
C7502 6.3V47
C7597 0.01
C7596 47P
R7549 510
C7601 0.1
C7599 0.1
C7598 47P
R7550 2K
C7600 47P
R7551 2K
J0JCC0000060
LB7508
(TIMER)
C2CBJG000434:E55EBL/EP
C2CBJG000382:E53EG,E55EB/EG
IC7501
TB S TXD
FSCIN
VSS3
CVIN1
VDD3
TEST2
SVREF
SYNCIN
START
TBUS RXD
AVCC
VREF
KEYIN3
AVSS
METER R CH
METER L CH
AV2 8
AFC
KEYINT
KEYIN2
KEYIN1
XINTMOUT
XINTPOUT
XSH REC
NEG HIF FBL
NET P ON
EPG ON
JC P ON
POWER ON
FL CS
DR P ON
IR CS
FL RESET
IR BUSY
XINTM
SYS PFAIL
PFAIL
LED L2
HDD LED
POWER LED
NC
HDD PFAIL
TIME WARP LED
HDD SEL LED
AV2 BLANKING
VSS
DVD SEL LED
VCC
SD SEL LED
PC LSEL LED
NC
DVD LED
FAN LOCK
AV4 SINL
AV3 SINL
SW UART
RST UART
SYNC DET
POWER SAVE
SCART MUTE
POWER SAVE
HIFRDY
NET BUS REQ
RFC A MUTE
NC
RGB
FILAMENT ON
NET LED
NET LED
WE
TEST2
BUSY
XFWE
RARTG2P(EPG)
UARTP2G(EPG)
SLICEON OUT
M1
TEST1(REG)
VDD2
LP4PDC
LP3VPS
LP2FSC
VSS2
IIC DATA
IIC CLK
AV2 PB
WIDE
SYS2
NC
FAN PWM OUT
P50OUT
125Hz
AUDIO MUTE
SLICEON
P50INT
XMPREQ
XNMI
VCC
XIN
VSS
XOUT
RESET
XCOUT
XCIN
CNVSS
BYTE
FL CLK
FL RXD
FL TXD
VSYNC
REMOTE CTL.
TBUS CLK
116 115 114 113 112 111 110 109 108 107 106 105 104 103 102 101 100 99 98 97 96 95 94 93 92 91 90 89 88
87
86
85
84
83
82
81
80
79
78
77
76
75
74
73
72
71
70
69
68
67
66
65
64
63
62
61
60
59
5857565554535251504948474645444342414039383736353433323130
29
28
27
26
25
24
23
22
21
20
19
18
17
16
15
14
13
12
11
10
9
8
7
6
5
4
3
2
1
1110987654321
G
F
E
D
C
B
A
DMR-E53EG,E55EB/EG/EBL/EP
Timer Section(Main P.C.B.(5/5)) Schematic Diagram(T)
E
P:Sub Power Supply Section(Page: )
A
M:Main Net Section(Page: )
B
V:Video I/O Section(Page: )
C
A:Audio Main Section(Page: )
D
T:Timer Section(Page: )
E
53

Table of Contents

Related product manuals