EasyManua.ls Logo

Panasonic DMR-E53EG - Page 280

Panasonic DMR-E53EG
285 pages
Print Icon
To Next Page IconTo Next Page
To Next Page IconTo Next Page
To Previous Page IconTo Previous Page
To Previous Page IconTo Previous Page
Loading...
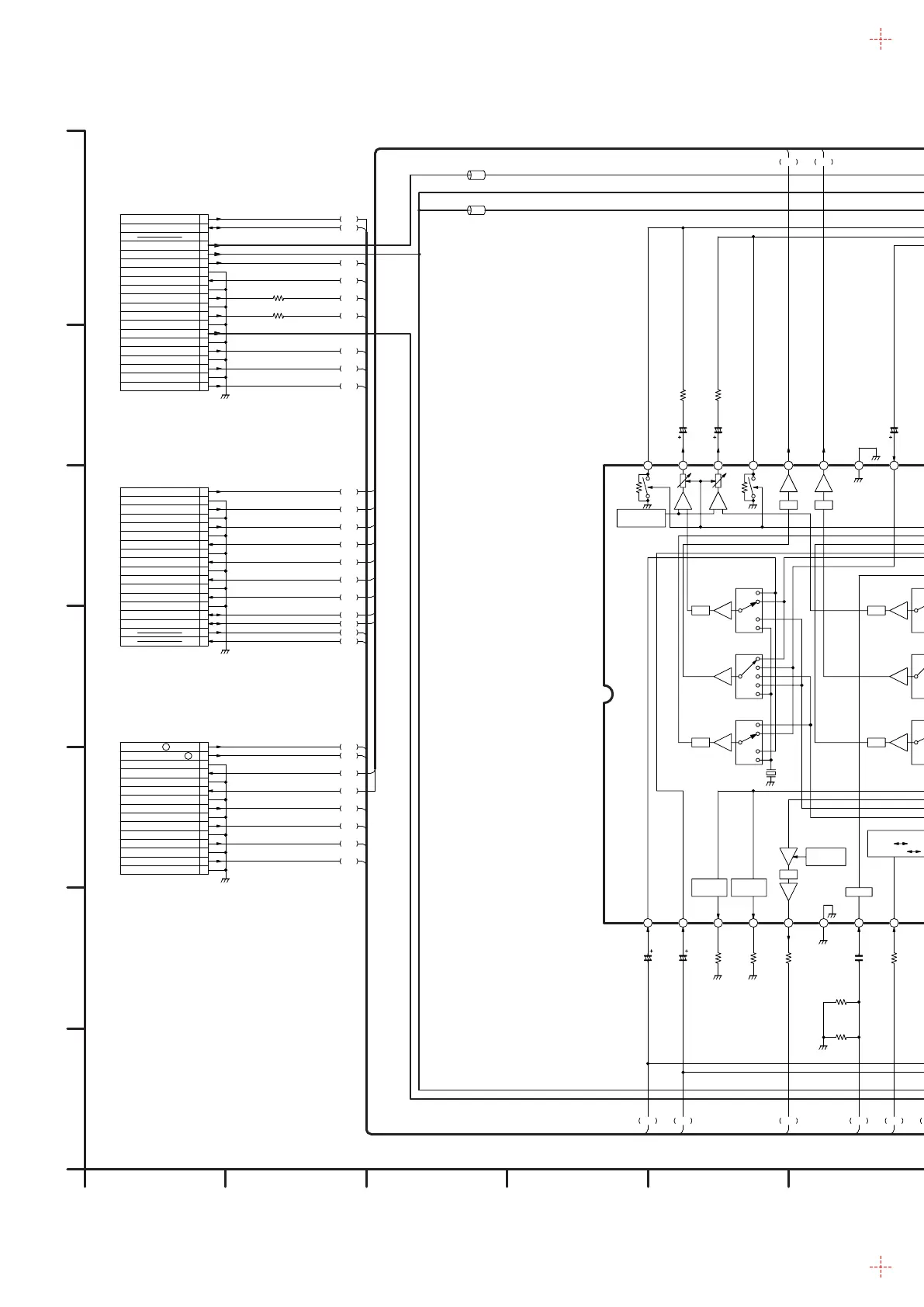
17.15. Scart Schematic Diagram
H
H
<PS+5V>
<PS+12V>
SCLSDA
SWITCH
VIDEO
SWITCH Lch
AUDIO
SWITCH Rch
AUDIO
<PS+5V>
<BOOSTER+5V>
W
V
U
T
S
R
Q
P
O
N
M
L
K
J
I
H
G
F
E
D
C
B
A
B1B2B3B15B14B6B13B12B5B4B17B16
0.01
C3925
A4A11A10
B17
B16
B15
B14
A11
A10
B13
B12
B11
B10
A9
A8
A7
A6
A5
A4
A3
A2
A1
B9
B8
B7
B6
B5
B4
B3
B2
B1
R3914 150
R3919 150
100
R3975
0.01
C3939
J0JGC0000020
LB3925
0.1
C3938
16V100
C3935
180
R3913
1200
R3986
0.01
C3934
16V100
C3933
2200
R3912
2200
R3911
33
R3904
10K
R3973
10K
R3972
150
R3910
4700
R3985
0.01
C3930
50V1
C3932
50V1
C3931
50V1
C3929
50V1
C3928
6V330
C3924
0.1
C3923
0.01
C3922
6V330
C3921
0.1
C3920
16V10
C3918
16V10
C3919
470
R3979
470
R3980
50V1
C3917
50V1
C3916
50V1
C3915
50V1
C3914
100
R3976
GND
MIX L OUT1
GND
MIX R OUT1
GND
DECODER L
GND
DECODER R
GND
L3 IN L
GND
L3 IN R
GND
SCART AUDIO MUTE
PWR SAVE
15
14
13
12
11
10
9
8
7
6
5
4
3
2
1
PS3903
(MAIN NET SEC.)
MAIN P.C.B.
TO PP7403
P50
AV2 8
GND
B IN
GND
G IN
GND
R/C IN
GND
AV2 VIDEO IN
GND
B OUT
GND
G OUT
GND
R/C OUT
18
17
16
15
14
13
12
11
10
9
8
7
6
5
4
3
2
1
PS3902
(MAIN NET SEC.)
MAIN P.C.B.
TO PP7402
LB3923 J0JGC0000020
LB3922 J0JGC0000020
16V10
C3911
470
R3909
470
R3908
16V10
C3910
PY OUT
GND
PB OUT
GND
PR OUT
GND
PS 12V
GND
CPN Y OUT
GND
CPS V OUT
GND
SCART VIDEO IN
GND
TUNER VIDEO
PS 5V
BOOSTER+5V
IIC DATA
IIC CLK
20
19
18
17
16
15
14
13
12
11
10
9
8
7
6
5
4
3
2
1
PS3901
(MAIN NET SEC.)
MAIN P.C.B.
TO PP7401
(A/V BUFFER AND SWITCH)
C1AB00001776
IC3901
AUDIO R
LAUDIO L
100K
R
100K
100K
100K
OR
CLAMP
-
(5V+0.5V)
CONTROL VCC
VCC
AUDIO
TO
10V REG
CONTROL
SERIAL
(L.M.H)
TERMINAL
FSS CONTROL
BLOCK
INTERFACE
DATA CLOCK
(L)
BLANKING
CONTROL3
EXTEMAL
DC
REF
TO
CLAMP
(5V+0.5V)
ALWAYS VCC
-
CLAMP
AMP
6dB
AMP
6dB
DR
75
DR
75
LPFLPF
SW3
B
MUTE
A
C
C
B
SW1
A
MUTE
C
D
MUTE
B
A
SW2
(0,2,4,6dB)
GAIN CTL
AMP AMP
CONTROL4
EXTEMAL
SW3L
B
BUF
MUTE
A
LPF
Lch
C
C
BUF
B
SW1L
A
MUTE
C
LPF
D
MUTE
A
SW2L
B
BUF
SW3R
B
BUF
4243 40 39 38 37 36 35 34 33 32 31 30 29 28 27 26 25 24 23
CONTROL1
EXTEMAL
12345678910111213141516171819202122
(L)
THROUGH
AV2
CONTROL2
EXTEMAL
Y/C(H)
BUF
(0.6dB)
GAIN CTL
LPF
AMP
CLAMP
OPEN LOW NORMAL1
(HLCH SW3B)
POWER SAVE
OPEN LOW NORMAL1
(HLCH SW3B)
EXT MUTE CONTROL
(12V+0.5V)
VCC 12V
CLAMP
-
VIDEO SW3
MUTE
A
LPF
Rch
41
C
C
BUF
B
SW1R
44
(0,2,4,6dB)
GAIN CTL
AMP AMP
BUF BUF
LPFLPF
A
MUTE
C
LPF
D
MUTE
A
SW2R
B
BUF
1110987654321
G
F
E
D
C
B
A
DMR-E53EG,E55EB/EG/EBL/EP
Scart Schematic Diagram
66

Table of Contents

Related product manuals