EasyManua.ls Logo

Panasonic DMR-EH57EC

Panasonic DMR-EH57EC
98 pages
To Next Page IconTo Next Page
To Next Page IconTo Next Page
To Previous Page IconTo Previous Page
To Previous Page IconTo Previous Page
Loading...
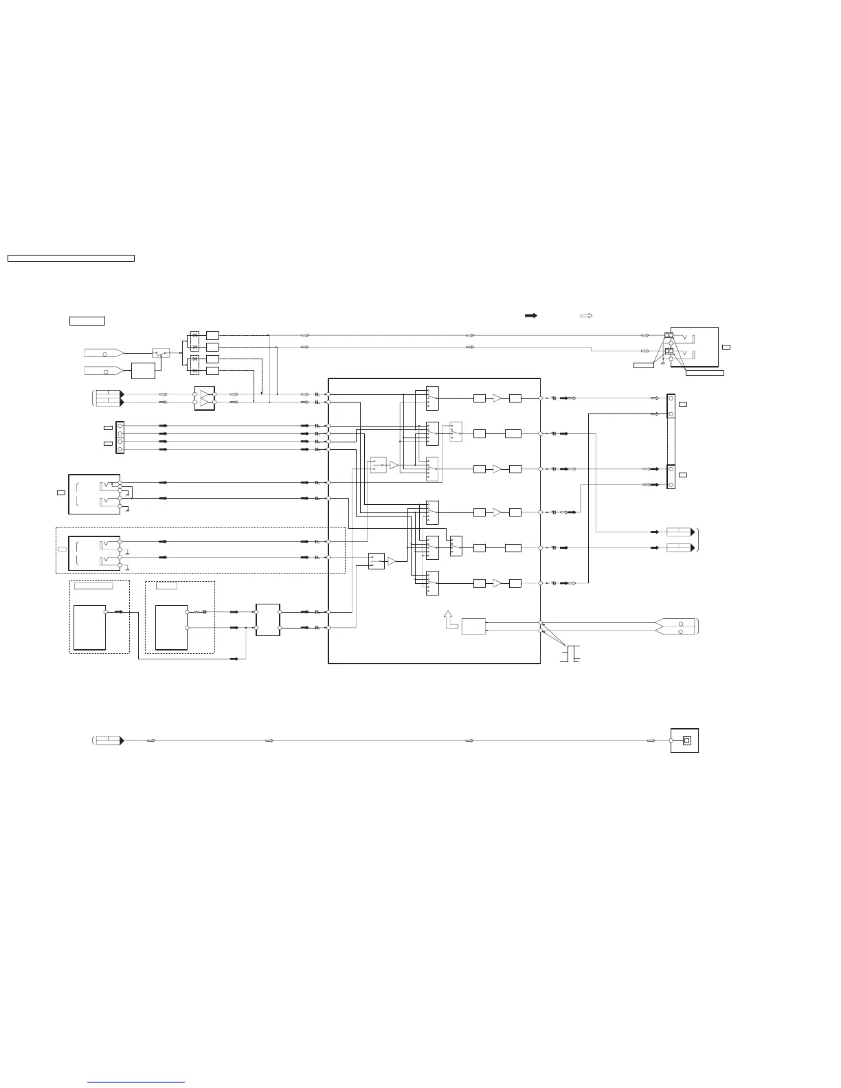
11.3. Analog Audio Block Diagram
59
AV4 L IN
REAR JACK
JK3001
AUDIO
AV4
L IN
AV4
R IN
18
17
21
20
AV4 R IN
51
(EE) only
19
DMR-EH57EE
DMR-EH57EC/EP/EE,EH575EG
Analog Audio Block Diagram
OUT
(SA4L)
SELECT SWITCH
OUTPUT
AV2
(DECODER/EXT)
(TV)
AV1
1.0V
5V
2.3V
:PB SIGNAL:REC SIGNAL
IEC OUT
1
(DIGITAL AUDIO OUT)
OPTICAL
IC4901
P.C.B.
DIGITAL
FROM
P59001 P7402
44
AADC L
AADC R
AUDIO OUT Ch1(L)
AUDIO OUT Ch2(R)
MIX L OUT2
MIX R OUT2
AUDIO OUT Ch2(R)
AUDIO OUT Ch1(L)
REAR JACK
JK3001
(R)
LINE OUT
(L)
LINE OUT
21
20
17
18
P.C.B.DIGITAL
TO
P7402
31
P59001
P7402 P59001
29
(DECEODER/EXT)
AV2
1
3
(TV)
AV1
3
1
21 PIN JACK
JK3901
LOGIC
IIC BUS
SDA
89
88
SCL
SECTION
TIMER
FROM
30
IC7501-
IIC DATA
29
IC7501-
IIC CLK
71
AV1 Lch
78
ADC Lch
73
AV2 Lch
74
AV2 Rch
79
ADC Rch
AV1 Rch
72
LPF
BUFF.
MUTE
AGC
AMP
ADC Lch
LPF
BUFF.
MUTE
LPF
BUFF.
MUTE
d
c
b
a
MUTE
BUFF.
LPF
AMP
ADC Rch
AGC
U/V TUNER
TU7801
SIF OUT
OUT
AUDIO
6
7
U/V TUNER
TU7802
DMR-EH57EE/EP, EH575EG
DMR-EH57EC
SIF OUT
7
(NICAM/A2)
IC7301
SIF
IN
MONO
L OUT
R OUT
1
2
25
38
TUN Lch
62
54
TUN Rch
(SA18L)
BUFF.
e
d
c
b
a
(SA1L)
e
d
c
b
a
(SA3L)
e
d
c
b
a
(SA2L)
58
AV3 Lch(FRONT)
AV3
FRONT INPUT JACK
JK3801
AUDIO
(Lch/MONO)
LINE
(Rch)
LINE
4
5
1
2
3
d
c
b
a
(SA4R)
SELECT SWITCH
OUTPUT
AV3 Rch
50
(SA18R)
BUFF.
e
d
c
b
a
(SA2R)
AUDIO IN ch1(L)
AUDIO IN ch2(R)
AUDIO IN ch1(L)
AUDIO IN ch2(R)
21 PIN JACK
JK3901
6
2
6
2
AV2 Lch
61
AV2 Rch
53
AV1 Lch
AV1 Rch
DAC Lch
DAC Rch
60
52
e
d
c
b
a
(SA3R)
e
d
c
b
a
(SA1R)
(AUDIO SIGNAL PROCESSOR)
IC3001
64
56
Q4008
D4006 Q4009
MUTE
MUTE
D4005
Q4007
Q4006
MUTE
MUTE
(BUFFER)
IC4009
67
12
MIX L OUT DM
MIX R OUT DM
P.C.B.DIGITAL
FROM
P59001 P7402
39
41
P7402P59001
16
IC54402-
XDMUTE
P.C.B.
DIGITAL
FROM
Q54401,
Q4060
DRIVE
XDMUTE
(AUDIO MUTE DRIVE)
QR4002
SECTION
TIMER
FROM
65
IC7501-
XTMUTE
MAIN P.C.B.
AV4
TUN
AV4
TUN
16
DMR-EH57EC/EP, EH575EG
(REAR)
AV4
DMR-EH57EC / DMR-EH57EP / DMR-EH57EE / DMR-EH575EG
48

Table of Contents

Related product manuals