EasyManua.ls Logo

Panasonic DMR-EH57EC

Panasonic DMR-EH57EC
98 pages
To Next Page IconTo Next Page
To Next Page IconTo Next Page
To Previous Page IconTo Previous Page
To Previous Page IconTo Previous Page
Loading...
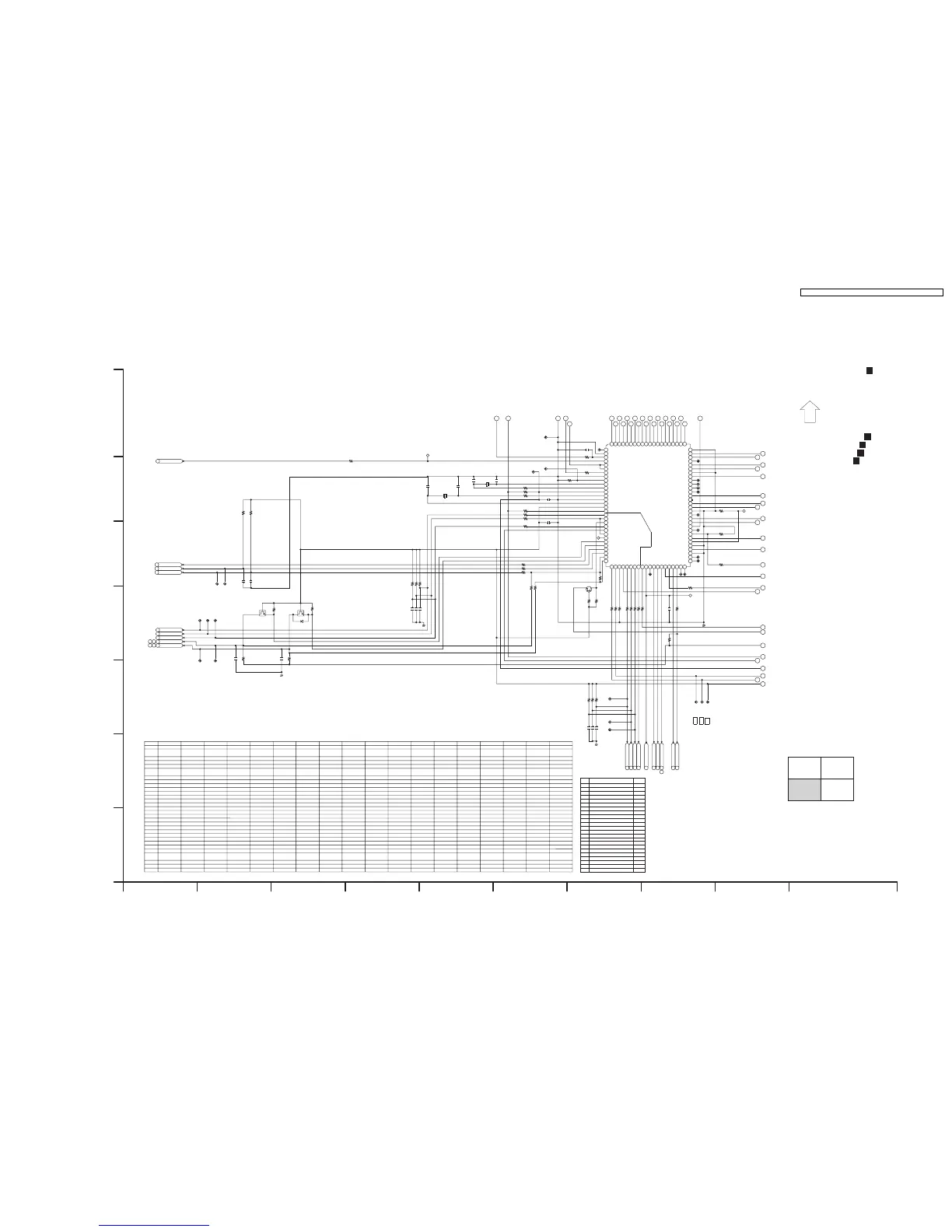
12.14. Timer (3/4) Section (Main P.C.B. (4/4)) Schematic Diagram (T)
CL7539CL7541CL7540
G_SBMTP_A
G_SBPTM_A
EPG_ON_H
G_SCLK_A
R7556
$(4700)
100R7528
100R7542
100R7515
100R7565
R7553
*
R7562 100
100R7517
R7567 100
R7545 $(47K)
CL7537
CL7538
R7546 $(47K)
G_DIG_CS_A
G_DIG_DATA_A
G_DIG_SCLK_A
C7535
10P
G_DIG_DATA_A
10P
C7533
R7547 $(47K)
R7511
$
R7519
*
C7525 $(10P)
C7527 $(10P)
C7526 $(10P)
Q7509
2SD0601A0L
R7518
*
*R7512
R7581
4700
R7570
10K
*R7524
*R7522
*R7526
*
D7509
QR7504
*
XINTM
XMPREQ
CL7535
QR7503
*
CL7510
CL7534
G_IIC_DATA_A
XINTP
G_IIC_CLK_A
10P
C7532
CL7516
CL7536
10P
C7531
R7548
4700
4700
R7549
C7536 $(10P)
C7538 $(10P)
C7537 $(10P) R7555 $(22K)
$(10K)
R7554
C7519
18P
CL7527
CL7528
C7517
18P
C7516
18P
G_CSYNC_A
R7516
*
X7502
H0A327200108
C7518
22P
CL7530
TL7515
R7669 4700
R7529
100
R7527
100
CL7501
C7522 100P
$(47K)R7523
$(47K)R7521
H0D100500018
X7501
TL7505
100R7537
100R7535
100R7536
C7528
1u
C7523
F1H1A105A028
0R7533
R7531 100K
56KR7532
10KR7534
CL7526
R7520
10K
TL7510
CL7525
*
C7547
R7576 1K
10K
R7577
CL7503
100R7575
TL7512
CL7514
CL7515
R7550
*
CL7504
CL7505
100KR7582
*
R7551
CL7512
CL7511
CL7513
CL7507
CL7506
3
4
2
5
98 9495 92 919397 96
1
100
99
80
78
76
77
79
87 868889 8284 83 818590
16
14
15
17
11
13
12 69
67
65
64
66
68
70
51
4945 474641 4442 43 48 50
30
3937353231 3433 36 38 40
22
23
20
21
26
28
27
24
25
18
19
53
55
57
62
60
59
61
63
58
56
54
29 52
75
73
71
72
74
9
7
6
8
10
IC7501
*
TU_P_ON_H
SYNC_DET
AV4_S_IN_L
P_OFF_L
HDD_PFAIL
DR_P_ON_H
CL7531
CL7532
CL7533
AV M
M
M
M
M
M
M
M
AV
AV
M2P
TOJIGU
3R3
P2M
AV
[79]IO_P_SAVE[H]
[78]CEC_OUT
[77]NC(OPEN)
[80]NC(OPEN)
SYS_P_FAIL[H]
P50_CEC
P50_INT
SD_LED
DVD_SEL_LED
EEPROM_W_C
DVBT_ANT_POW_H
HDD_SEL_LED
PFAIL[L]
SD_SEL_LED
FL_CLK
CNVSS
START(GND)
RESET
FL_TXD
FL_RXD
FLASH_WRITE
[3]REMOCON
[1]NC(OPEN)
[2]NC(GND)
VSS(GND)
XRESET
10MHz_OUT
32.768KHz_OUT
32.768KHz_IN
TEST1
LP4
LP3
AFC
CVIN
VSS2(GND)
SYNCIN
NC(GND)
VSYNC
AVCC(5V)
AVSS(GND)
M1(GND)
DC_R_CH
KEYIN2
KEYIN3
KEYIN1
DC_L_CH
VDD2(5V)
AV2BLANKING
AV2_PIN8
3R3V_OFF_H
GND
P_SAVE[L]
HDD_PFAIL[L]
DI_P_ON[H]
TU_P_ON[H]
WIDE_H
NC(5V)
SYNC_DET
AV2_PB_L
AV4_SIN[L]
FL_CS[L]
[51]TU_I2C_SEL_L
DR_P_ON[H]
M
M
M
TBUS_RXD
HDMI_3VREG
DIG S CLK
TU
TU
DIG S IN
DIG S OUT
DIG S CS
TBUS_TXD
TU
EPG_TRIG
TBUS_CLK
FAN_LOCK1
TU
TU
M
M
AV
AV
RFC_A_MUTE
FL_100MM_H
XTMUTE[L]
VCC2(5V)
P_SAVE[H]
VSS(GND)
M306H7
FILAMENT_ON[L]
DVBT_ANT_SHORT
AV3_SIN[L]
[53]NC(GND)
[52]NC(OPEN)
[54]HDMI_5VREG
TEST2[H]
HOT_PLUG
SYS2
XMPREQ[TBUS]
125Hz
IIC CLK
CEC_INT
XINTM_OUT
XINTP _OUT
FAN_PWM_OUT
XINTM[TBUS]
10MHz_IN
VCC1(3.3V)
XNMI(5V)
[32]ONBOARD/EPG_RXD
3R3V AREA
[31]ONBOARD/EPG_TXD
IIC DATA [33]NC(GND)
AB
C D E F G H/J K/X L/M N P Q R S T/U V/Y Z
QR7504
QR7503
Q7514
P7502
L7502
K7517
K7516
K7514
K7513
K7512
K7510
K7509
K7508
K7507
K7506
K7505
K7504
K7503
K7502
K7501
IC7501
FC7001
DP7501
D7509
C7573
C7572
C7571
C7570
C7565
C7547
$[UNR521300L] $[UNR521300L] $[UNR521300L]
$[UNR521300L] $[UNR521300L] $[UNR521300L] $[UNR521300L] UNR521300L UNR521300L UNR521300L UNR521 300L UNR521300L $[UNR521300L] $[UNR521300L] $[UNR521300L] UNR521300L UNR521300L UNR521300L
$[UNR521300L] $[UNR521300L] $[UNR521300L]
$[UNR521300L] $[UNR521300L] $[UNR521300L] $[UNR521300L] UNR521300L UNR521300L UNR521300L UNR521 300L UNR521300L $[UNR521300L] $[UNR521300L] $[UNR521300L] UNR521300L UNR521300L UNR521300L
2SD0601A0L 2SD0601A0L 2SD0601A0L
2SD0601A0L 2SD0601A0L 2SD0601A0L 2SD0601A0L 2SD0601A0L 2SD0601A0L 2SD0601A0L 2SD0601A0L $[2SD0601A0L] 2SD0601A0L 2SD0601A0L 2SD0601A0L 2SD0601A0L 2SD0601A0L 2SD0601A0L
K1KA03AA0301 K1KA03AA0301 K1KA03AA0301
K1KA03AA0180
|K1KA03AA0301
K1KA03AA0301 K1KA03AA0301
K1KA03AA0180
|K1KA03AA0301
K1KA03AA0301 K1KA03AA0301 K1KA03AA0301
K1KA03AA0180
|K1KA03AA0301
K1KA03AA0301 K1KA03AA0301 K1KA03AA0301 K1KA03AA0301 K1KA03AA0301 K1KA03AA0301 K1KA03AA0301
G0C220JA0019 G0C220JA0019 G0C220JA0019
G0C220JA0019 G0C220JA0019 G0C220JA0019 G0C220JA0019 G0C220JA0019 G0C220JA0019 G0C220JA0019 G0C220J A0019 $[G0C220JA0019] G0C220JA0019 G0C220JA0019 G0C220JA0019 G0C220JA0019 G0C220JA0019 G0C220JA0019
ERJ3GEY0R00V ERJ3GEY0R00V ERJ3GEY0R00V
ERJ3GEY0R00V ERJ3GEY0R00V ERJ3GEY0R00V ERJ3GEY0R00V ERJ3GEY0R00V ERJ3GEY0R00V ERJ3GEY0R00V ERJ3GEY 0R00V $[ERJ3GEY0R00V] ERJ3GEY0R00V ERJ3GEY0R00V ERJ3GEY0R00V ERJ3GEY0R00V ERJ3GEY0R00V ERJ3GEY0R00V
ERJ3GEY0R00V ERJ3GEY0R00V ERJ3GEY0R00V
ERJ3GEY0R00V ERJ3GEY0R00V ERJ3GEY0R00V ERJ3GEY0R00V ERJ3GEY0R00V ERJ3GEY0R00V ERJ3GEY0R00V ERJ3GEY 0R00V $[ERJ3GEY0R00V] ERJ3GEY0R00V ERJ3GEY0R00V ERJ3GEY0R00V ERJ3GEY0R00V ERJ3GEY0R00V ERJ3GEY0R00V
$[ERJ3GEY0R00V] $[ERJ3GEY0R00V] $[ERJ3GEY0R00V]
$[ERJ3GEY0R00V] $[ERJ3GEY0R00V] $[ERJ3GEY0R00V] $[ERJ3GEY0R00V] $[ERJ3GEY0R00V] $[ERJ3G EY0R00V] $[ERJ3GEY0R00V] $[ERJ3GEY0R00V] ERJ3GEY0R00V $[ERJ3GEY0R00V] $[ERJ3GEY0R00V] $[ERJ3GEY0R00V] $[ERJ3GEY0R00V] $[ERJ3GEY0R00V] $[ERJ3GEY0R00V]
ERJ3GEY0R00V ERJ3GEY0R00V ERJ3GEY0R00V
ERJ3GEY0R00V ERJ3GEY0R00V ERJ3GEY0R00V ERJ3GEY0R00V ERJ3GEY0R00V ERJ3GEY0R00V ERJ3GEY0R00V ERJ3GEY 0R00V $[ERJ3GEY0R00V] ERJ3GEY0R00V ERJ3GEY0R00V ERJ3GEY0R00V ERJ3GEY0R00V ERJ3GEY0R00V ERJ3GEY0R00V
$[ERJ3GEY0R00V] $[ERJ3GEY0R00V] $[ERJ3GEY0R00V]
$[ERJ3GEY0R00V] $[ERJ3GEY0R00V] $[ERJ3GEY0R00V] $[ERJ3GEY0R00V] $[ERJ3GEY0R00V] $[ERJ3G EY0R00V] $[ERJ3GEY0R00V] $[ERJ3GEY0R00V] ERJ3GEY0R00V $[ERJ3GEY0R00V] $[ERJ3GEY0R00V] $[ERJ3GEY0R00V] $[ERJ3GEY0R00V] $[ERJ3GEY0R00V] ERJ3GEY0R00V
$[ERJ3GEY0R00V] $[ERJ3GEY0R00V] $[ERJ3GEY0R00V]
$[ERJ3GEY0R00V] $[ERJ3GEY0R00V] $[ERJ3GEY0R00V] $[ERJ3GEY0R00V] $[ERJ3GEY0R00V] $[ERJ3G EY0R00V] $[ERJ3GEY0R00V] $[ERJ3GEY0R00V] ERJ3GEY0R00V $[ERJ3GEY0R00V] $[ERJ3GEY0R00V] $[ERJ3GEY0R00V] $[ERJ3GEY0R00V] $[ERJ3GEY0R00V] ERJ3GEY0R00V
ERJ3GEY0R00V ERJ3GEY0R00V ERJ3GEY0R00V
ERJ3GEY0R00V ERJ3GEY0R00V ERJ3GEY0R00V ERJ3GEY0R00V ERJ3GEY0R00V ERJ3GEY0R00V ERJ3GEY0R00V ERJ3GEY 0R00V $[ERJ3GEY0R00V] ERJ3GEY0R00V ERJ3GEY0R00V ERJ3GEY0R00V ERJ3GEY0R00V ERJ3GEY0R00V ERJ3GEY0R00V
$[ERJ3GEY0R00V] $[ERJ3GEY0R00V] $[ERJ3GEY0R00V]
$[ERJ3GEY0R00V] $[ERJ3GEY0R00V] $[ERJ3GEY0R00V] $[ERJ3GEY0R00V] $[ERJ3GEY0R00V] $[ERJ3G EY0R00V] $[ERJ3GEY0R00V] $[ERJ3GEY0R00V] ERJ3GEY0R00V $[ERJ3GEY0R00V] $[ERJ3GEY0R00V] $[ERJ3GEY0R00V] $[ERJ3GEY0R00V] $[ERJ3GEY0R00V] ERJ3GEY0R00V
$[ERJ6GEY0R00V] $[ERJ6GEY0R00V] $[ERJ6GEY0R00V]
$[ERJ6GEY0R00V] $[ERJ6GEY0R00V] $[ERJ6GEY0R00V] $[ERJ6GEY0R00V] $[ERJ6GEY0R00V] $[ERJ6G EY0R00V] $[ERJ6GEY0R00V] $[ERJ6GEY0R00V] ERJ6GEY0R00V $[ERJ6GEY0R00V] $[ERJ6GEY0R00V] $[ERJ6GEY0R00V] $[ERJ6GEY0R00V] $[ERJ6GEY0R00V] ERJ6GEY0R00V
ERJ3GEY0R00V ERJ3GEY0R00V ERJ3GEY0R00V
ERJ3GEY0R00V ERJ3GEY0R00V ERJ3GEY0R00V ERJ3GEY0R00V ERJ3GEY0R00V ERJ3GEY0R00V ERJ3GEY0R00V ERJ3GEY 0R00V $[ERJ3GEY0R00V] ERJ3GEY0R00V ERJ3GEY0R00V ERJ3GEY0R00V ERJ3GEY0R00V ERJ3GEY0R00V ERJ3GEY0R00V
$[ERJ6GEY0R00V] $[ERJ6GEY0R00V] $[ERJ6GEY0R00V]
$[ERJ6GEY0R00V] $[ERJ6GEY0R00V] $[ERJ6GEY0R00V] $[ERJ6GEY0R00V] $[ERJ6GEY0R00V] $[ERJ6G EY0R00V] $[ERJ6GEY0R00V] $[ERJ6GEY0R00V] ERJ6GEY0R00V $[ERJ6GEY0R00V] $[ERJ6GEY0R00V] $[ERJ6GEY0R00V] $[ERJ6GEY0R00V] $[ERJ6GEY0R00V] ERJ6GEY0R00V
$[ERJ3GEY0R00V] $[ERJ3GEY0R00V] $[ERJ3GEY0R00V]
$[ERJ3GEY0R00V] $[ERJ3GEY0R00V] $[ERJ3GEY0R00V] $[ERJ3GEY0R00V] $[ERJ3GEY0R00V] $[ERJ3G EY0R00V] $[ERJ3GEY0R00V] $[ERJ3GEY0R00V] ERJ3GEY0R00V $[ERJ3GEY0R00V] $[ERJ3GEY0R00V] $[ERJ3GEY0R00V] $[ERJ3GEY0R00V] $[ERJ3GEY0R00V] ERJ3GEY0R00V
ERJ3GEY0R00V ERJ3GEY0R00V ERJ3GEY0R00V
ERJ3GEY0R00V ERJ3GEY0R00V ERJ3GEY0R00V ERJ3GEY0R00V ERJ3GEY0R00V ERJ3GEY0R00V ERJ3GEY0R00V ERJ3GEY 0R00V $[ERJ3GEY0R00V] ERJ3GEY0R00V ERJ3GEY0R00V ERJ3GEY0R00V ERJ3GEY0R00V ERJ3GEY0R00V ERJ3GEY0R00V
$[ERJ6GEY0R00V] $[ERJ6GEY0R00V] $[ERJ6GEY0R00V]
$[ERJ6GEY0R00V] $[ERJ6GEY0R00V] $[ERJ6GEY0R00V] $[ERJ6GEY0R00V] $[ERJ6GEY0R00V] $[ERJ6G EY0R00V] $[ERJ6GEY0R00V] $[ERJ6GEY0R00V] ERJ6GEY0R00V $[ERJ6GEY0R00V] $[ERJ6GEY0R00V] $[ERJ6GEY0R00V] $[ERJ6GEY0R00V] $[ERJ6GEY0R00V] ERJ6GEY0R00V
$[ERJ6GEY0R00V] $[ERJ6GEY0R00V] $[ERJ6GEY0R00V]
$[ERJ6GEY0R00V] $[ERJ6GEY0R00V] $[ERJ6GEY0R00V] $[ERJ6GEY0R00V] $[ERJ6GEY0R00V] $[ERJ6G EY0R00V] $[ERJ6GEY0R00V] $[ERJ6GEY0R00V] ERJ6GEY0R00V $[ERJ6GEY0R00V] $[ERJ6GEY0R00V] $[ERJ6GEY0R00V] $[ERJ6GEY0R00V] $[ERJ6GEY0R00V] ERJ6GEY0R00V
C2CBJG000737 C2CBJG000737 C2CBJG000737
C2CBJG000737 C2CBJG000737 C2CBJG000737 C2CBJG000737 C2CBJG000738 C2CBJG000738 C2CBJG000738 C2CBJG0 00738 C2CBJG000738 C2CBJG000737 C2CBJG000737 C2CBJG000737 C2CBJG000738 C2CBJG000738 C2CBJG000738
REZD0019 REZD0019
REZD0019 VWJ02H5065VV REZD0019 REZD0019 VWJ02H5065VV REZD0019 REZD0019 REZD0019 VWJ02H5065VV REZD0019 REZD0019 REZD0019 REZD0019 REZD0019 REZD0019 REZD0019
A2BB00000163 A2BB00000163 A2BB00000163
A2BB00000163 A2BB00000163 A2BB00000163 A2BB00000163 A2BB00000163 A2BB00000163 A2BB00000163 A2BB000 00163 A2BB00000162 A2BB00000163 A2BB00000163 A2BB00000163 A2BB00000163 A2BB00000163 A2BB00000163
$[MA2C723001VT] $[MA2C723001VT] $[MA2C723001VT]
$[MA2C723001VT] $[MA2C723001VT] $[MA2C723001VT] $[MA2C723001VT] MA2C723001VT MA2C723001 VT MA2C723001VT MA2C723001VT MA2C723001VT $[MA2C723001VT] $[MA2C723001VT] $[MA2C723001VT] MA2C723001VT MA2C723001VT MA2C723001VT
F2A1H100B034
|F2A1H100A454
F2A1H100B034
|F2A1H100A454
F2A1H100B034
|F2A1H100A454
F2A1H100B034
|F2A1H100A454
F2A1H100B034
|F2A1H100A454
F2A1H100B034
|F2A1H100A454
F2A1H100B034
|F2A1H100A454
F2A1H100B034
|F2A1H100A454
F2A1H100B034
|F2A1H100A454
F2A1H100B034
|F2A1H100A454
F2A1H100B034
|F2A1H100A454
F2A1H100B034
|F2A1H100A454
F2A1H100B034
|F2A1H100A454
F2A1H100B034
|F2A1H100A454
F2A1H100B034
|F2A1H100A454
F2A1H100B034
|F2A1H100A454
F2A1H100B034
|F2A1H100A454
F2A1H100B034
|F2A1H100A454
F2A1C121A453 F2A1C121A453 F2A1C121A453
F2A1C121A453 F2A1C121A453 F2A1C121A453 F2A1C121A453 F2A1C121A453 F2A1C121A453 F2A1C121A453 F2A1C12 1A453 F2A1C221A243 F2A1C121A453 F2A1C121A453 F2A1C121A453 F2A1C121A453 F2A1C121A453 F2A1C121A453
F2A1H100A454 F2A1H100A454 F2A1H100A454
F2A1H100A454 F2A1H100A454 F2A1H100A454 F2A1H100A454 F2A1H100A454 F2A1H100A454 F2A1H100A454 F2A1H10 0A454 F2A1H100A248 F2A1H100A454 F2A1H100A454 F2A1H100A454 F2A1H100A454 F2A1H100A454 F2A1H100A454
F2A1V560A387 F2A1V560A387 F2A1V560A387
F2A1V560A387 F2A1V560A387 F2A1V560A387 F2A1V560A387 F2A1V560A387 F2A1V560A387 F2A1V560A387 F2A1V56 0A387 F2A1V470A190 F2A1V560A387 F2A1V560A387 F2A1V560A387 F2A1V560A387 F2A1V560A387 F2A1V560A387
F2A1C2210095
|F2A1E221A815
F2A1C2210095
|F2A1E221A815
F2A1C2210095
|F2A1E221A815
F2A1C2210095
|F2A1E221A815
F2A1C2210095
|F2A1E221A815
F2A1C2210095
|F2A1E221A815
F2A1C2210095
|F2A1E221A815
F2A1C2210095
|F2A1E221A815
F2A1C2210095
|F2A1E221A815
F2A1C2210095
|F2A1E221A815
F2A1C2210095
|F2A1E221A815
F2A1C2210095
|F2A1E221A815
F2A1C2210095
|F2A1E221A815
F2A1C2210095
|F2A1E221A815
F2A1C2210095
|F2A1E221A815
F2A1C2210095
|F2A1E221A815
F2A1C2210095
|F2A1E221A815
F2A1C2210095
|F2A1E221A815
$$
$$ $$ $$ $$ $$ $$ $$ $ 1u
VariationCategory
A B C D
E
F
G
H
I
J
K
L
M
N
O
P
Q
R
S
T
U
V
W
X Z
Y
10
11
12
14
13
15
16
17
18
20
21
22
23
24
26
27
28
29
31
32
34
19
25
30
33
Variation Type
23
22
21
20
19
18
17
16
15
14
13
12
11
10
9
8
7
6
5
4
3
2
1
JISSOU Z
DMR-EX87EN Y
DMR-EX87EB X
DMR-EX87EP V
DMR-EX87EC U
DMR-EX87EG T
DMR-EH67EE S
DMR-EH57EE R
DMR-EH675EG Q
DMR-EZ27EB P
DMR-EX77GN,EX87GN N
DMR-EX77EN M
DMR-EX77EP L
DMR-EX77EB K
DMR-EX77EC J
DMR-EX77EG H
DMR-EH67GCS,GN,GC G
DMR-EH67EP F
DMR-EH67EC E
DMR-EH57GCS,GN,GC D
DMR-EH57EP C
DMR-EH57EC B
DMR-EH575EG A
Modify Category
Timer (3/4) Section (Main P.C.B. (4/4))
Schematic Diagram (T)
89 1076
E
F
G
D
C
54321
B
A
TO
TIMER SECTION
(1/4)
LOCATION MAP
1/4 2/4
3/4 4/4
D
NOTE:PARTS INDICATED WITH "$" MARK ARE NOT MOUNTED.
NOTE:DO NOT USE THE PART NUMBER SHOWN ON THIS DRAWING FOR ORDERRING.
THE CORRECT PART NUMBER IS SHOWN IN THE PARTS LIST,AND MAY BE
SLIGHTLYDIFFERNT OR AMENDED SINCE THIS DRAWING WAS PREPARED.
M:Main Net Section (Page: )
A
AV:AV I/O Section (Page: )
B
TU:Tuner Section (Page: )
T:Timer Section (Page: )
C
D
DMR-EH57EC/EP/EE,EH575EG
DMR-EH57EC / DMR-EH57EP / DMR-EH57EE / DMR-EH575EG
67

Table of Contents

Related product manuals