EasyManua.ls Logo

Panasonic DMR-EH57EC

Panasonic DMR-EH57EC
98 pages
To Next Page IconTo Next Page
To Next Page IconTo Next Page
To Previous Page IconTo Previous Page
To Previous Page IconTo Previous Page
Loading...
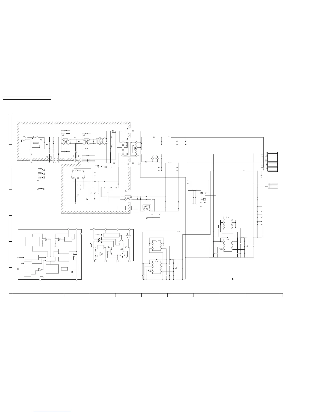
12.2. Power Supply Schematic Diagram
18[22]
R1153
R1150
18[22]
K1123
$[VWJ0795=10]
$[VWJ0795=5]
K1125
R1122 ERG1SJ101E
100[1W]
$R1121
LB1127
$[J0JHC0000048]
$[VWJ0795=10]
K1122
$[ERDS1TJ474]
R1101
(470k)[1/2W]
2
34
1
L1121
G0B233D00001
43
12
B0EDKT000009
D1140
$[F1J0J106A014]
10[22]
C1416
$[F1K1C106A062]
10[36]
C1415
$[F1J0J106A014]
10[22]
C1414
$[ECKWNA102MEV]
C1124
J0JKB0000003
LB1123
G0A100HA0023
L1600
312
D1270
B0JBSG000048
B0JBSG000010
LB1124
$[J0JHC0000048]
G0A100H00025
G0A100K00003
L1270
LB1270
VWJ0795=5
B0HAGM000006
D1151
ERJ6GEY0R00V
LB1126
[22]
C1272
F2A1C8210008
16V820[JG]
16V1800[JG]
F2A1C1820005
C1270
C1271
F2A1C1820005
16V1800[JG]
L1400
G0A100HA0023
D1400
B0JANE000037
B0JAME000033
C1401
F2A0J1220028
6.3V1200[JG]
R1400
$[22](1k)
C1402
F2A0J3310059
6.3V330[JG]
ERJ8GEY0R00V
R1410
8
9
13
11
10
12
2
3
1
5
7
6
4
15
14
P1102
TO P1501
MAIN P.C.B.
(MAIN NET (1/4) SECTION)
K1KB15AA0032
K1126
$[ERJ6GEY0R00V]
B0HADV000001
D1141
C1143
F2B2W4700003
K1128
ERJ6GEY0R00V
J0JKB0000003
LB1122
J0JHC0000048
LB1125
NOTSPECIFIEDDC
ECKWNA102MEV
C1125
231
1110 12
645
879
ETS28BF236AD
T1150
330P[22]
C1152
MAZ73000BC
D1155
231
K9ZZ00001279
ZA1105
R1155
470[G][22]
R1156
22K[G][22]
C1154
ECJGVB1H102K
1000P[22]
231
K9ZZ00001279
ZA1107
VWJ0795=5
K1129
231
K9ZZ00001279
ZA1106
R1152
10K[22]
D1156
MA2C165001VT
F2A1V6800002
C1150
EEUFM1V680B
35V68[JG]
R1210
1K[22]
C1200
0.1[22]
1K[22]
R1209
2200[22]
R1208
4
3
1
2
Q1200
B3PBA0000454
B3PBA0000237
B3PBA0000402
$[22](0.1)
C1202
K1701
VWJ0795=12.5
QR1801
UNR221300L
R1802
4700[22]
100K[22]R1801
R1200
1200[G][22]
10K[22]
R1207
F2A1E4700048C1800
25V47[JF]
$[D1BFR0240001]
R1731
675
243
8
1
$[C0DBAZZ00132]
IC1730
R1732
$[22](51K)
$[22](180P)
C1735
C1732 $[22](0.1)
$[F2A1E2210050]C1731
C1733 $[22](0.1)
C1734 $[22](0.47)
AR
32
C
1
IC1200
C0DAEMZ00001
C0DAEYY00021
12
56
3
4
Q1730
$[B1DHDD000022]
220K[22]
R1205
$[MA22D3900L]
D1705
MA22D3900L
D1702
180P[22]
C1605
D1BFR0240001
R1601
675
243
8
1
C0DBAZZ00132
IC1601
C1609$[F1K1C106A062]
C1602 0.1[22]
C1601
F2A1E4710061
EEUFM1E471B
C1604 0.47[22]
C1603 0.1[22]
R1602
51K[22]
C1607
F2A1A6810022
C1608 0.1[22]
J0JHC0000048[22]
LB1600
R1604
9100[D][22]
L1601
G0A100K00003
R1603
560[D][22]
D1602
B0JCPD000021
50V
C1606
ECJGVB1H103K
2700[D][22]
R1605
D1601
B0JCPD000021
$[MA22D3900L]
D1704
MA22D3900L
D1701
$[VWJ0795=10]
K1730
D1731
$[B0JCPD000021]
$[J0JHC0000048]
LB1730
C1736
$[ECJGVB1H103K]
C1737
$[F2A0J6810007]
C1738
$[22](0.1)
R1734
$[22](12k[D])$[22](5600[D])
R1735
L1731
$[G0A220ZA0041]
R1733
$[22](0[D])
R1201
8200[G][22]
$[MA22D3900L]
D1706
MA22D3900L
D1703
675
243
8
1
B1DHED000008
Q1600
0.047[22]
C1201
ECJ2VB1E473K
2400[G][22]
R1206
R1154
8200
[G][22]
R1157
470
[G][22]
D1152
MAZ4100NMF
$[VWJ0795=7.5]
K1731
C1422
$[F1J0J106A014]
10[22]
MA2J11100L
D1800
2
1
4
3
$[VNJ04F0060VV]
JW1101
R1800
470[22]
QR1800
UNR211300L
10K[22]
R1803
R1151 6800[22]
2200P[22]
ECJGVB1H222K
C1153
D1157
B0HADV000001
C1121
ECQU2A223MLC
EYF52BCY
ZA1104
#K3GE1ZA00010
EYF52BCY
ZA1103
#K3GE1ZA00010
A
N
P1101
K2AA2H000007
#ERZV10D471C2
VA1110
K1120
$[VWJ0795=10]
K1121
$[VWJ0795=10]
C1123
ECKWNA102MEV
2
34
1
L1120
G0B233D00001
ECKWNA102MEV
C1122
ECQU2A683MLC
C1120
$[VWJ0795=17.5]
K1124
$[ECKWNA101MBV]
C1126
$[ECKWNA101MBV]
C1127
24 7
1539
C0DACZH00017
IC1150
2KV
F1B3D102A011
1000P[2KV]
C1151
ERX2SJR22E
R1158
0.22[2W]
X_SW12V
GND
GND
10V680[JG]
X_SW3V
X_SW3V
P_ON_H
X_SW5R8V
X_SW3R8V
X_SW3R8V
X_SW12V
S
G
S
SD
D
D
D
(UPA1717G-E1-A)
or
25V470[JF]
FB
(AL1014)
0.01[22]
CC
24M[36]
CS
V5
GND
EXT
VIN
VREF
GND
GND
GND
GND
GND
X_SW5R8V
X_SW5R8V
X_SW5R8V
X_SW12V
or
10V680[JG]
P1
or
T2AL 250V
(S1WBA80-7062)
or
or
F1101
K5D202BK0005
K5D202BLA013
or
SEE THE
SERVICE MANUAL
NC
P2
V1
or
or
ZA1151
ZA1150
or
VSC5603
VSC5603-A
XYN3+J8FJ
V2
PU
ZA1271
XYN3+J8FJ
ZA1270
VSC5606
VSC5606-A
or
or
(AL1014)
D
S
D
CS
FB
V5
D
G
D
VIN
VREF
24M[36]
CC
0.01[22]
GND
EXT
or
25V220[JF]
HOT COLD
89 1076
E
F
G
D
C
54321
B
A
DMR-EH57EC/EP/EE,EH575EG
Power Supply Schematic Diagram
NOTE:DO NOT USE THE PART NUMBER SHOWN ON THIS DRAWING FOR ORDERRING.
THE CORRECT PART NUMBER IS SHOWN IN THE PARTS LIST,AND MAY BE
SLIGHTLYDIFFERNT OR AMENDED SINCE THIS DRAWING WAS PREPARED.
NOTE:PARTS INDICATED WITH "$" MARK ARE NOT MOUNTED.
WHEN REPLACING ANY OF THESE COMPONENTS.ONLY THE SAME TYPE.
COMPONENTS IDENTIFIED WITH THE MARK HAVE THE SPECIAL CHARACTERISTICS FOR SAFETY.
IMPORTANT SAFETY NOTICE:
TIMER
RESTERT
COMPARATOR
OCP THRESHOLD
BURST MODE
COMPARATOR/
OCP THRESHOLD
GND
3
VCC
UVLOUVLO
FB
Z/C
2
1
VIN DRAIN
4
5
/OCL
SOURCE
DET./ONDEAD TIMER
ZERO CURRENT
TIMER
ON WIDTH
CIRCUIT
STANDBY
PROTECTOR
OVER HEATING
PROTECTOR/
OVER VOLTAGE
LATCH RELEASE/
/VCC(STOP)
VCC(START)
-
+
CIRCUIT
CONTROL
CIRCUIT
SOFT-DRIVE
BURST)SENS.
IDP(LIMIIT/
/VCC(STARTUP ON)
VCC(STARTUP OFF)
-
+
CIRCUIT
START-UP
7
9
IC1150
SWITCHING IC
IC-DETAIL BLOCK DIAGRAM
CCVREF/SSV5/PWONVIN
FBGNDEXTCS
COMP
CNT.
-+
SHIFT
LEVEL
UVLOcomp
VREF
0.8V
V5
+
-
RESET
CONTROL LOGIC
+-+-
8
4321
7
6
5
IC1601
SWITCHING IC
IC-DETAIL BLOCK DIAGRAM
DMR-EH57EC / DMR-EH57EP / DMR-EH57EE / DMR-EH575EG
52

Table of Contents

Related product manuals