EasyManua.ls Logo

Panasonic DMR-EH57EC

Panasonic DMR-EH57EC
98 pages
To Next Page IconTo Next Page
To Next Page IconTo Next Page
To Previous Page IconTo Previous Page
To Previous Page IconTo Previous Page
Loading...
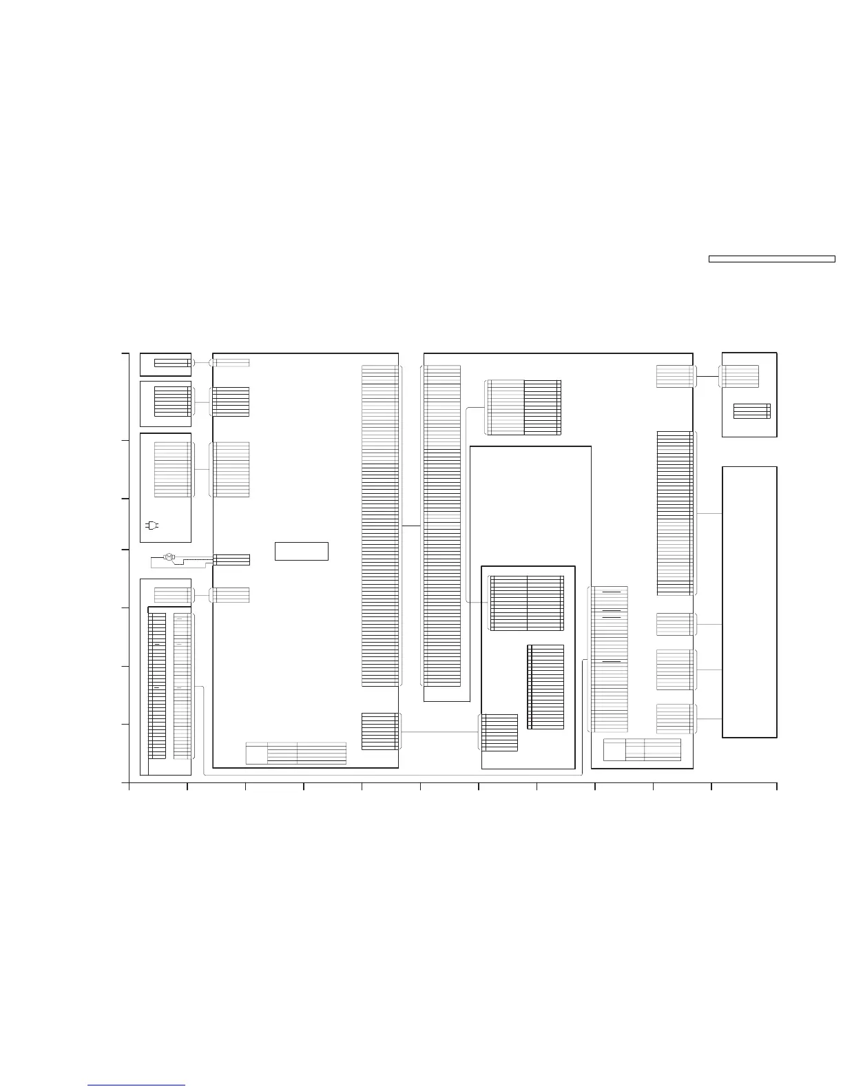
12 Schematic Diagram
12.1. Interconnection Schematic Diagram
P.C.B.Name
Main Net
Timer
Circuit Name
Ref.No.50000 SERIES
Ref.No.
57000,58000 SERIES
Ref.No.53000,54000,55000
Ref.No.54400 SERIES
Ref.No.59000 SERIES
MV4_BE
P.C.B.
Digital
Circuit Name
Audio I/O
D Net
FEP
P.C.B.
Main
A/V I/O
Ref.No.7500 SERIES
Ref.No.3000,3900,4000,4900 SERIES
Nicam Decoder Ref.No.7300 SERIES
Ref.No.
Ref.No.1500,7400 SERIES
P.C.B.Name
P58001
P59001P7402
MAIN P.C.B.
DVD DRIVE
DIGITAL P.C.B.
8
7
CLOSE SW
GND
P50001
11
10
9
8
7
COILW
COILV
COILU
H+
HU+
FP50003
HV+
HW-
HU-
5
6
HV-
HW+
H-
3
4
1
2
FP50004
CARTRIGE
LM-
REC INH
5
6
PHOTO_LED
OPEN_SW
LM+
3
4
1
2
FP50002
B+
GND
B-
5
6
A+
A-
GND
3
4
1
2
ACT FOC1-
ACT FOC1+
ACT TRK-
ACT TRK+
45
44
43
42
ACT FOC2+ 41
ACT FOC2-
GND
SMOUT
OEIC SW1
OEIC SW2
OEIC HL
OEIC GK
OEIC FJ
OEIC EI
OEIC A
OEIC B
OEIC RF-
OEIC RF+
OEIC C
OEIC D
FM/OEIC VCC:5V
FM VOUT+
FM VOUT-
OEIC VC
LDU CD/DVD
LDU HFMN
LDU HFM
LDD WN
LDD W3
LDD W2N
LDD W2
LDD W1N
LDD W1
SC/ROHM
LDD IINW3
OEIC GND
LDD IINRD
LDD ENABLE
LDD IINW2
LDD VCC1
LDD IINW1
LDD GND2
40
39
38
37
36
35
34
33
32
31
30
29
28
27
26
25
24
5
6
7
8
9
10
11
12
13
14
15
16
17
18
19
22
20
23
21
LDD VSS
LDD VSS
LDD VCC1
2
1
3
4
RESET-
GND
DD7
DD8
DD6
DD9
DD5
DD10
DD4
DD11
DD3
DD12
DD2
DD13
DD1
DD14
DD0
DD15
GND
DMARQ
GND
DIOW-
GND
DIOR-
GND
IORDY
CSEL
DMACK-
GND
INTRQ
DA2
DA1
DA0
40
39
38
37
36
35
34
33
32
31
30
29
28
27
26
25
24
5
6
7
8
9
10
11
12
13
14
15
16
17
18
19
22
20
23
21
CS0-
CS1-
GND
2
1
3
4
R_IN
B_IN
DGND
DGND
RGB_CPSVIN
G_IN
DGND
DGND
EPG_VIDEO
BS_ON
DGND
DGND
ANA5V
CPNCIN_DM
D1R2V
DGND
D1R2V
V_YIN_DM
D1R2V
DGND
D1R2V
BPBOUT_DM
D1R2V
DGND
D1R2V
GPYOUT_DM
D3R8V
DGND
D3R8V
RPROUT_DM
EPG_ON_H/BUSY
DGND
ANA3R3V
COUT_DM
CSYNC_IN
DGND
P_OFF_L3
YOUT_DM
UARTM2P
DGND
UARTP2M
DGND
DGND
DGND
IECOUT
DGND
D3V
88
87
86
85
84
83
82
81
80
79
78
77
76
75
74
73
72
71
70
69
68
67
66
65
64
63
62
61
60
59
58
57
56
55
54
53
52
51
50
49
48
47
46
45
44
43
42
MIXROUT_DM41
IT_CK
MIXLOUT_DM
I2CSCK
AUGND
I2CSDT
AUGND
D3R3V
AUGND
XFWE
AADC_R
P_OFF_L2
AADC_L
ITA2M
XDMUTE
ITM2A
AU5V
DR5V
XMPREQ
DR5V
DRGND
SBPTM
DRGND
XINTM
DR12V
SCLK
DR12V
XINTP
DGND
DGND
DGND
SBMTP
DGND
DGND
DGND
DGND
DGND
DGND
40
39
38
37
36
35
34
33
32
31
30
29
28
27
26
25
24
5
6
7
8
9
10
11
12
13
14
15
16
17
18
19
22
20
23
21
DGND
DGND
DGND
2
1
3
4
R_IN
B_IN
DGND
DGND
RGB_CPSVIN
G_IN
DGND
DGND
EPG_VIDEO
BS_ON
DGND
DGND
ANA5V
CPNCIN_DM
X_SW_12V
DGND
X_SW_12V
V_YIN_DM
X_SW_12V
DGND
X_SW_12V
BPBOUT_DM
X_SW_12V
DGND
X_SW_12V
GPYOUT_DM
D3R8V
DGND
D3R8V
RPROUT_DM
EPG_ON
DGND
ANA3R3V
COUT_DM
CSYNC_IN
DGND
P_OFF_L3
YOUT_DM
UARTM2P
DGND
UARTP2M
DGND
DGND
DGND
IECOUT
DGND
X_SW_3V
MIXROUT_DM
88
87
86
85
84
83
82
81
80
79
78
77
76
75
74
73
72
71
70
69
68
67
66
65
64
63
62
61
60
59
58
57
56
55
54
53
52
51
50
49
48
47
46
45
44
43
42
41
IT_CK
MIXLOUT_DM
I2CSCK
AUGND
I2CSDT
AUGND
D3R3V
AUGND
XFWE
AADC_R
P_OFF_L
AADC_L
ITA2M
XDMUTE
ITM2A
AU5V
DR5V
XMPREQ
DR5V
DRGND
SBPTM
DRGND
XINTM
DR12V
SCLK
DR12V
XINTP
DGND
DGND
DGND
SBMTP
DGND
DGND
DGND
DGND
DGND
DGND
40
39
38
37
36
35
34
33
32
31
30
29
28
27
26
25
24
5
6
7
8
9
10
11
12
13
14
15
16
17
18
19
22
20
23
21
DGND
DGND
DGND
2
1
3
4
P1503
DR_GND
DR5V
DR_GND
DR12V
2
1
3
4
2
1
3
P1501
4
5
6
7
8
9
10
11
12
13
14
15
FC7001
KEY3_POWER1
2
RESET-
GND
DD7
DD8
DD6
DD9
DD5
DD10
DD4
DD11
DD3
DD12
DD2
DD13
DD1
DD14
DD0
DD15
GND
DMARQ
GND
DIOW-
GND
DIOR-
GND
IORDY
CSEL
DMACK-
GND
INTRQ
DA1
DA0
DA2
HDD (DRIVE)
FRONT(L) P.C.B.
1
2
3
4
5
6
7
8
9
10
11
12
13
14
15
16
17
36
35
34
33
32
31
30
29
28
27
26
25
24
23
22
21
20
19
18
CS0-
CS1-
GND
39
40
38
37
DR_GND
POWER P.C.B.
DR5V
DR_GND
DR12V
4
3
1
2
P1101
N
A
FAN MOTOR
X_SW5R8V
15
14
13
12
11
10
9
8
7
6
5
4
X_SW3V
X_SW12V
X_SW12V
X_SW12V
GND
GND
GND
GND
GND
X_SW5R8V
P1102
X_SW5R8V 3
1
2
JW7001
KEY3_POWER
GNDGND
1
2
1110987
G
F
6
E
D
C
5
DMR-EH57EC/EP/EE,EH575EG
Interconnection
Schematic Diagram
4321
B
A
FRONT_R_IN
FRONT_L_IN
8
7
6
5
4
FRONT_C_IN
FRONT_S_IN_L
GND
FRONT_V_IN
JW3801
AUGND
3
1
2
FRONT JACK P.C.B.
FRONT_Y_IN
FRONT_R_IN
FRONT_L_IN
FRONT_C_IN
FRONT_S_IN_L
GND
FRONT_V_IN
JW3001
AUGND
FRONT_Y_IN
8
7
6
5
4
3
1
2
X_SW3V
P_ON_H
X_SW3R8V
X_SW5R8V
X_SW3V
X_SW12V
X_SW12V
X_SW12V
GND
GND
GND
GND
GND
X_SW5R8V
X_SW5R8V
X_SW3V
P_ON_H
X_SW3R8V
Tuner
Ref.No.7800 SERIES
TU7801:DMR-EH57EC
TU7802:DMR-EH57EE/EP,EH575EG
U/V TUNER
P7502
2
1
3
FANOUT
FAN_GND
FANLOCK
RESET-
GND
DD7
DD8
DD6
DD9
DD5
DD10
DD4
DD11
DD3
DD12
DD2
DD13
DD1
DD14
DD0
DD15
GND
DMARQ
GND
DIOW-
GND
DIOR-
GND
IORDY
CSEL
DMACK-
GND
INTRQ
DA1
DA0
DA2
CS0-
CS1-
GND
42
41
40
39
38
37
36
35
34
331
32
31
30
29
28
27
26
7
8
9
10
11
12
13
14
15
16
17
18
19
20
21
22
23
24
25
4
3
5
6
ATAPI P.C.B.
P9801
P9802
HDMI_P3_ON_H
HDMI_P5_ON_H
GND
HDMI_CEC_MONI
HDMI_CEC_CONT
X_SW_2R5V
X_SW_3R8V
GND
X_SW_5R8V_AV
GND
10
9
8
7
6
5
4
3
2
1
P7501
HDMI P.C.B.
P56101
HDMI_P3_ON_H
X_SW_2R5V
GND
HDMI_CONT
5
6
7
8
9
10
X_SW_3R8V
GND
GND
2
1
3
4
X_SW_5R8V
HDMI_MONI
HDMI_P5_ON_H
P56102 (HDMI Connector)
FRAME
FRAME
FRAME
HOTPLG
+5V
CECGND
HDMISDA
HDMISCL
RSV
CEC
CLK-
CLKGND
CLK+
FRAME
D0+
D1GND
D0-
D2GND
D0GND
D1-
5
6
7
8
9
10
11
12
13
14
15
16
17
18
19
22
20
23
21
D1+
D2-
D2+
2
1
3
4
P56103
REC_656_OUT_4
REC_656_OUT_5
REC_656_OUT_6
REC_656_OUT_7
GND
DAC_BCK
ADACOUT1
IECOUT
ADACOUT0
5
6
7
8
9
10
11
12
13
14
15
ADACOUT2
DMX
DAC_MCK
2
1
3
4
RESET
GND
HDMI_2_IRQ
I2C_SDA1
I2C_SCL1
HDMI_1_IRQ
GND
GND
GND
REC_656_OUT_2
REC656_CLK
HDMI_27CLK
26
25
24
23
22
21
20
19
18
17
16
REC_656_OUT_0
REC_656_OUT_1
REC_656_OUT_3
29
30
28
27
GND
DAC_LRCK
GND
P55003
REC_656_OUT_4
REC_656_OUT_5
REC_656_OUT_6
REC_656_OUT_7
GND
DAC_BCK
ADACOUT1
IECOUT
ADACOUT0
5
6
7
8
9
10
11
12
13
14
15
ADACOUT2
DMX
DAC_MCK
2
1
3
4
RESET
GND
HDMI_2_IRQ
I2C_SDA1
I2C_SCL1
HDMI_1_IRQ
GND
GND
GND
REC_656_OUT_2
REC656_CLK
HDMI_27CLK
26
25
24
23
22
21
20
19
18
17
16
REC_656_OUT_0
REC_656_OUT_1
REC_656_OUT_3
29
30
28
27
GND
DAC_LRCK
GND
DV P.C.B.
TPA+
TPB+
D3R3V
5
6
TPA-
GND
TPB-
2
1
3
4
P37001
P57001
TPA+
TPB+
D3R3V
5
6
TPA-
GND
TPB-
2
1
3
4
P37002 (DV JACK)
2
1
3
4
TPB+
TPA+
TPA-
TPB-
DMR-EH57EC / DMR-EH57EP / DMR-EH57EE / DMR-EH575EG
51

Table of Contents

Related product manuals