EasyManua.ls Logo

Panasonic DMR-EH57EC

Panasonic DMR-EH57EC
98 pages
To Next Page IconTo Next Page
To Next Page IconTo Next Page
To Previous Page IconTo Previous Page
To Previous Page IconTo Previous Page
Loading...
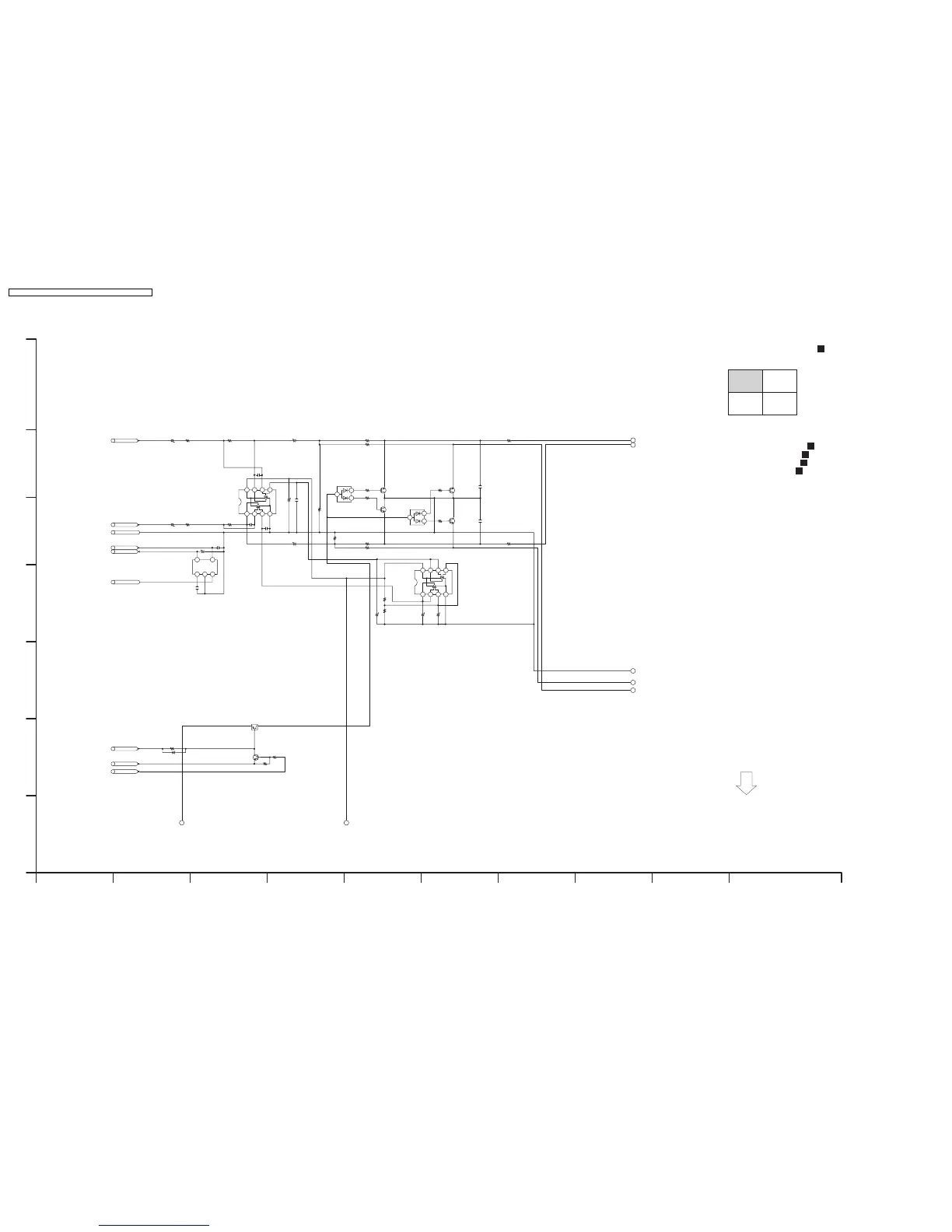
12.7. AV I/O (1/4) Section (Main P.C.B. (2/4)) Schematic Diagram (AV)
P_OFF_L
C4059
ECQV1H104JL3
XTMUTE
R4067
D0HB103ZA002
C4062
*
D0HB103ZA002
R4066
C4070
*
*
C4072
67 5
2 43
8
1
IC4012
C0ABBB000230
UNR511100L
QR4002
D3R3V
R4104
22K
47K
R4105
1
2SD1819A0L
Q4060
D4001
$[MA2C165001VT]
R4102
10K
XDMUTE
1
2SD132800L
Q4007
R4071 47K
R4078
2700
R4079
2700
C4092
*
ECJ1VF1C104Z
C4065
3
1
2
D4005
MA3Z142D0LG
B0ADCH000007
33P[22]
C4060
R4076 820
C4063
*
R4088
2700
1
2SD132800L
Q4008
C4082 ECJ2VC1H102J
R4077 100
1
2SD132800L
Q4006
R4090 120
G_MIXLOUT_A
D0HB153ZA002
R4055
C4033
*
R4046
D0HB912ZA002
R4093 120
AU_GND
3
1
2
4
5
IC4001
C0DBAHD00013
AU_5V
*
C4056
0.1[ZF]
C4055
X_SW_5R8V_AV
G_MIXROUT_A
R4080 100
R4081 820
47K
R4074
C4061
ECJ1VF1C104Z
*
C4064
67 5
2 43
8
1
IC4009
C0ABBB000216
33P[22]
C4057
D0HB153ZA002
R4057
C4034
*
D0HB912ZA002
R4047
R4089
2700
1
2SD132800L
Q4009
C4083 ECJ2VC1H102J
3
1
2
D4006
MA3Z142D0LG
B0ADCH000007
M
IN1-
VEE
IN1+
IN2+
VEE
VO1
VCC
IN1-
VO2
IN1+
IN2-
or
(2SD1328-TX)
(UNR5111-TX)
BOOSTER+5V
T
M
M
GNDNR
VOUT
ON[H]
VIN
(PQ1L503M2SPQ)
VO1
M
M
M
M
M
or
(2SD1328-TX)
IN2-
VCC
VO2
IN2+
(2SD1328-TX)
(2SD1328-TX)
1
2
3
A B
4
5
89 1076
L
M
N
K
J
54321
I
H
AV I/O (1/4) Section (Main P.C.B. (2/4))
Schematic Diagram (AV)
LOCATION MAP
1/4 2/4
3/4 4/4
TO
AV I/O SECTION
(3/4)
B
NOTE:PARTS INDICATED WITH "$" MARK ARE NOT MOUNTED.
NOTE:DO NOT USE THE PART NUMBER SHOWN ON THIS DRAWING FOR ORDERRING.
THE CORRECT PART NUMBER IS SHOWN IN THE PARTS LIST,AND MAY BE
SLIGHTLYDIFFERNT OR AMENDED SINCE THIS DRAWING WAS PREPARED.
M:Main Net Section (Page: )
A
AV:AV I/O Section (Page: )
B
TU:Tuner Section (Page: )
T:Timer Section (Page: )
C
D
DMR-EH57EC/EP/EE,EH575EG
DMR-EH57EC / DMR-EH57EP / DMR-EH57EE / DMR-EH575EG
58

Table of Contents

Related product manuals