EasyManua.ls Logo

Panasonic KX-TDA0108

Panasonic KX-TDA0108
250 pages
To Next Page IconTo Next Page
To Next Page IconTo Next Page
To Previous Page IconTo Previous Page
To Previous Page IconTo Previous Page
Loading...
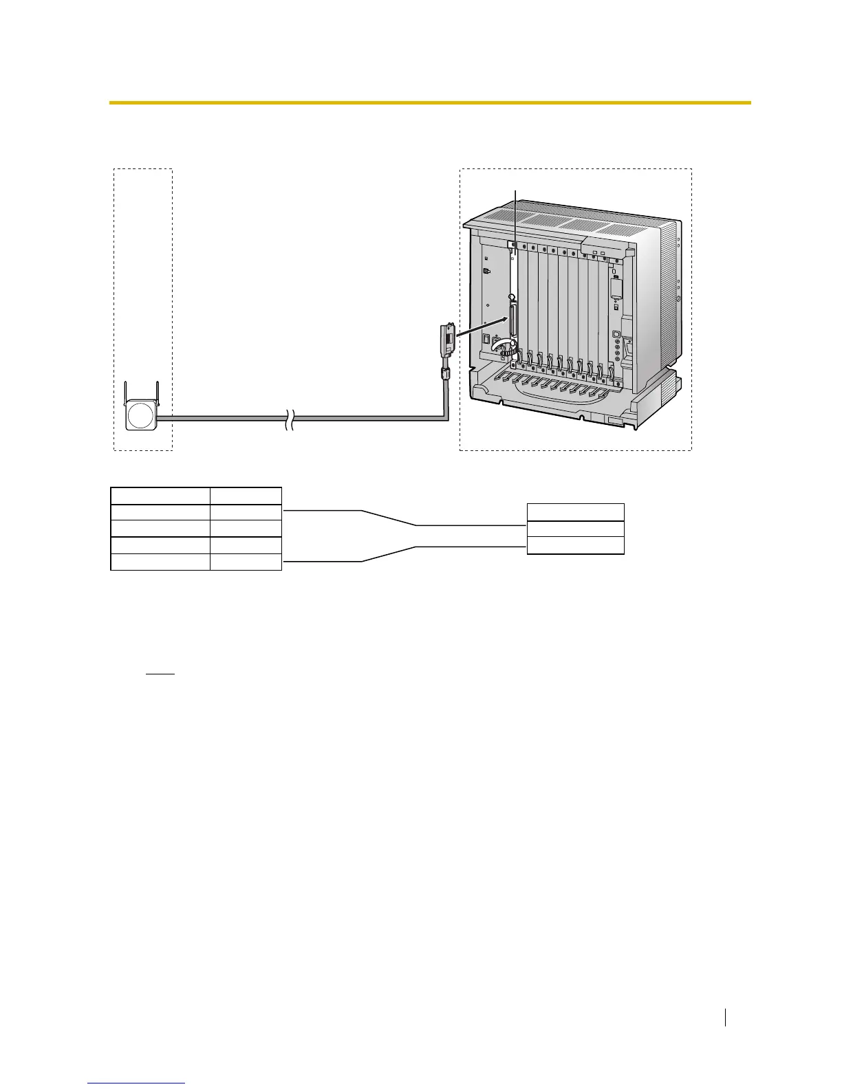
2.9 Connection of 2.4 GHz Portable Stations
Installation Manual 189
Using a DHLC/DLC Card
Refer to the following example to connect a CS to the Hybrid IP-PBX.
Accessory and User-supplied Items for the CS
Accessory (included): Screws × 2, Washers × 2
User-supplied (not included): RJ11 connector
Note
For details about DHLC card or DLC card, refer to "2.5.2 DHLC8 Card", "2.5.3 DLC8 Card", or "2.5.4
DLC16 Card".
Signal Name
D1
D2
DHLC/DLC card
(Amphenol)
Cable Maximum Distance
ø 0.4 mm: Under 222 m
ø 0.5 mm: Under 347 m
ø 0.6 mm: Under 500 m
CAT 5: Under 347 m
Signal Name
Pin No.
1
2
3
4
D1
D2
CS (RJ11)
DHLC8 Card

Table of Contents

Related product manuals