EasyManua.ls Logo

Panasonic LZ2 - Page 68

Panasonic LZ2
183 pages
Print Icon
To Next Page IconTo Next Page
To Next Page IconTo Next Page
To Previous Page IconTo Previous Page
To Previous Page IconTo Previous Page
Loading...
3 - 6
Mini VRF SYSTEM
Outdoor Unit Repair Procedures
3
3. Recovering Refrigerant
(2) If the remote controller is not available for maintenance of the outdoor unit
1 Short-circuit the MODE pin (“COOL side) on the outdoor unit control PCB.
2 Short-circuit the CHK pin on the PCB to start test run operation.
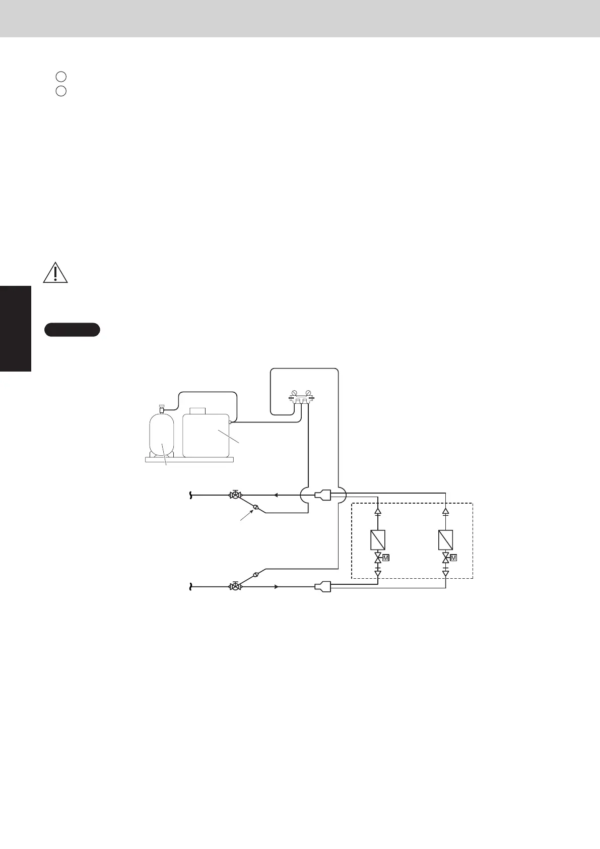
3-2-2. Refrigerant recovery procedures (1) (using indoor unit ball valve)
(1) If a ball valve with a service port has been provided in the indoor unit as shown in Fig. 3, follow the instructions
given in (2) through (6) below. If the service port is instead located in the outdoor side, follow the instructions in
“3-2-3. Refrigerant recovery procedures (2).
(2) After running the unit in Cooling mode for about 5 minutes as described in “3-2-1. Cooling operation (for all
units), fully close the liquid tube ball valve.
(3) Run the unit in Cooling mode for 10 to 20 minutes more.
(4) Fully close the gas tube ball valve, and stop the operation of all units.
(5) Use hoses to connect the manifold gauge valves, refrigerant recovery unit, and refrigerant recovery cylinder
with each other. (Fig. 3) Do each connection quickly to prevent air from entering the tubing.
(6) Recover the remaining refrigerant from the indoor unit using the refrigerant recovery unit.
NOTE
To determine completion of refrigerant recovery, follow the instructions that came with the refrigerant recovery unit.
Remaining refrigerant may create internal pressure, therefore care should be taken
when connecting the hoses.
Refrigerant
recovery unit
Manifold
gauge
Hi Lo
Refrigerant
reco
very cylinder
Ball valve
(field supply)
Gas tube
Outdoor unit
Indoor unit
Liquid tube
Service port
Fig. 3
CAUTION
SM830289-01_欧州向け R32 mini VRF 8,10HP SM&TRSM.indb 6SM830289-01_欧州向け R32 mini VRF 8,10HP SM&TRSM.indb 6 2021/05/07 10:11:482021/05/07 10:11:48

Table of Contents

Related product manuals