EasyManua.ls Logo

Panasonic S-3650PF3E - Page 37

Panasonic S-3650PF3E
321 pages
To Next Page IconTo Next Page
To Next Page IconTo Next Page
To Previous Page IconTo Previous Page
To Previous Page IconTo Previous Page
Loading...
1-3-4
11
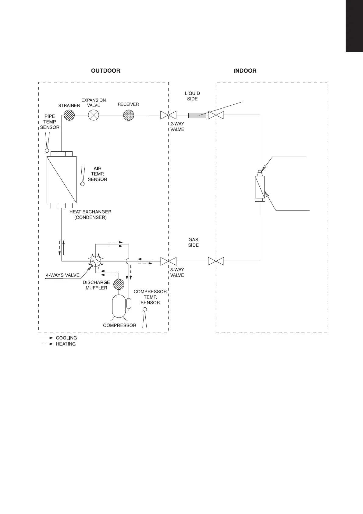
1-3. Refrigerant Flow Diagram
Outdoor Unit: U-71PZ3E5
Ø15.88
Ø15.88
Ø15.88
Ø6.35
Ø6.35
S-6071PU3E (71)
S-6071PF3E (71)
exchanger
Heat
Distributor
Liquid socket tube (Ø9.52-Ø6.35)
Ø9.52
SM830283-00_欧州向け R32シングル36-71形TD&SM.indb 4 20/01/30 10:24:45

Table of Contents

Other manuals for Panasonic S-3650PF3E

Related product manuals