EasyManua.ls Logo

Panasonic SA-AK330EE - B) Main Circuit

Panasonic SA-AK330EE
108 pages
Print Icon
To Next Page IconTo Next Page
To Next Page IconTo Next Page
To Previous Page IconTo Previous Page
To Previous Page IconTo Previous Page
Loading...
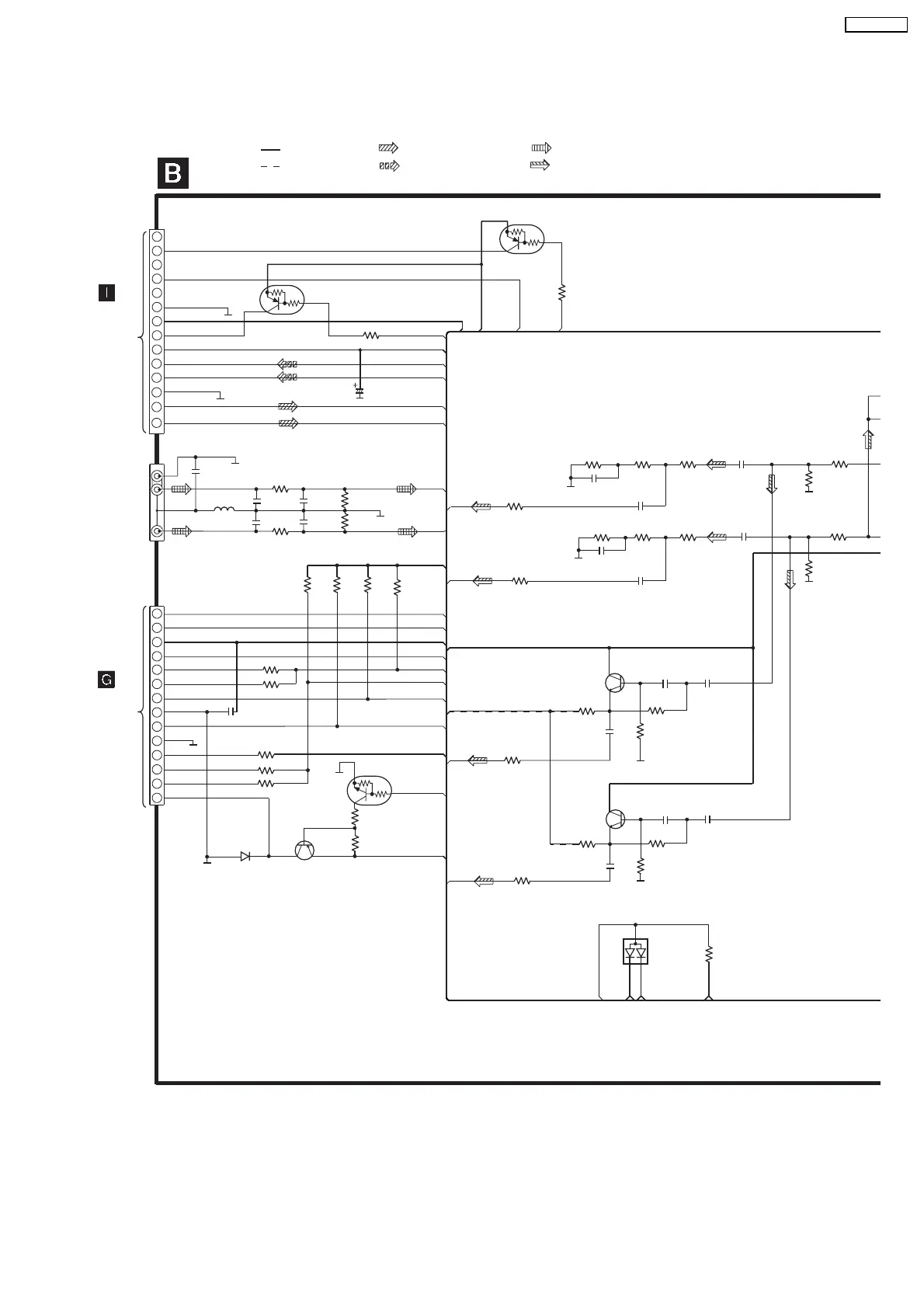
16.3. (B) Main Circuit
MAIN CIRCUIT
SCHEMATIC DIAGRAM - 4
14
13
12
11
10
2
4
6
8
9
7
5
3
1
CN2805
BOTTOMSW
PLUNGER
POSITION
5V
DGND
CD_SW2
PGND
CD_SW1
OPEN
CLAMP
CHG_CCW
CD8V
CHG_HALF
CHG_CW
TO
CD LOADING
CIRCUIT
(CN1) ON
SCHEMATIC
DIAGRAM-11
CHG_CW
CHG_HLF
CHG_CCW
CHG_SW1
CHG_SW2
VREF+
CHG_AD1
TO
DECK
CIRCUIT
(CN1001) ON
SCHEMATIC
DIAGRAM-14
CHG_AD2
CN2803
: +B SIGNAL LINE
: -B SIGNAL LINE
: MAIN SIGNAL LINE
: AUX SIGNAL LINE
R2944
10K
R2945
47K
R2946
47K
R2943
10K
R2942 22K
R2941 12K
SW5V
R2940 220
R2939 22K
R2938 12K
CD8V
CHG_PLR
Q2937
MOT10V
C2936
0.47
D2936
B0EAKM000117
Q2936
Q2937
B1GBCFJJ0039
PLUNGER MOTOR
SUPPLY CONTROL SWITCH
R2937
10K
R2936
1K
Q2936
B1ACKD000004
CD MOTOR SUPPLY SWITCH
10
11
12
13
14
1
2
4
6
8
9
7
5
3
CR02
MOTOR
BP1
DECK1_H
DMT
MOT+B
REC_H
+15V
RECINR
RECINL
AFGND
PBR
PBL
MOT10V
/REC
+15V
REC_R
REC_L
PBR
PBL
JK2801
RCH
AUX
LCH
R2216
12K
R2217
2.7K
C2217
100P
C2216
680P
L2996
ERJ3GEY0R00V
R2116
12K
R2117
2.7K
C2117
100P
C2116
680P
AUXL
C2998
0.1
-9V
R2192
0
R2191
2.2K
C2192
0
R2193
100K
C2193
0.033
R2292
0
R2291
2.2K
C2292
0
R2293
100K
C2293
0.033
R2197
2.2K
LO_L
R2297
2.2K
LO_R
Q2181
C2182
8200P
C2181
8200P
R2183
5.6K
HI_L
C2183
1
R2184
4.7K
R2181
4.7K
R2182
12K
Q2281
R2283
5.6K
C2283
1
R2281
4.7K
R2282
12K
HI_R
C2282
8200P
C2281
8200P
R2152
0
Q2181,Q2281
B1ABCF000131
HPF FREQ AMP SWITCH
R2284
4.7K
DECK1_H
/MTR
C2976
16V10
R2252
0
MOGND
AUXR
: RECORD SIGNAL LINE
: PLAYBACK SIGNAL LINE
SW5V
Q2978
R2976
0
R2977
0
C2191
0
C2291
0
+9V
Q2978
B1GDCFJJ0023
SWITCH
Q2980
B1GDCFJJ0023
DECK MOTOR SWITCH
R2154
100K
R2254
100K
DCDET
D2811
B0ADCJ000020
SW5V
CD7.5V
R2899
47K
VREF+
63
SA-AK330EE

Table of Contents

Related product manuals