EasyManua.ls Logo

Perkins 4008 - Wiring Diagrams; CAV Starter with Repeater Relay

Perkins 4008
59 pages
Print Icon
To Next Page IconTo Next Page
To Next Page IconTo Next Page
To Previous Page IconTo Previous Page
To Previous Page IconTo Previous Page
Loading...
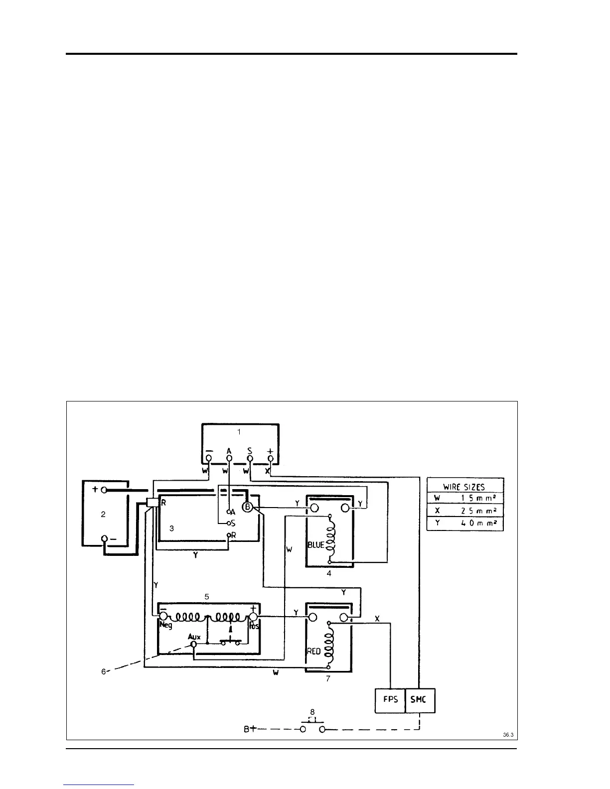
WIRING DIAGRAM, CAV STARTER WITH REPEATER RELAY
48 4006/8 Diesel, May 1998
Key
(Fig. 47)
1. Repeater relay
2. 24 volt starting batteries
3. CAV Starter motor
4. Start relay
5. Fuel stop solenoid
35.0 Amps inrush
0.75 Amps holding
Energised to run
6. NOTE: Aux terminal gives a battery
negative signal when solenoid is fully
energised. To enable engine to run
immediately on depressing start button
F.P.S. must be fed positive +ve
7. Fuel stop solenoid relay
8. Start button
Fig. 47

Related product manuals