EasyManua.ls Logo

Phase AxN series - Installation Spacing

Default Icon
58 pages
Print Icon
To Next Page IconTo Next Page
To Next Page IconTo Next Page
To Previous Page IconTo Previous Page
To Previous Page IconTo Previous Page
Loading...
7
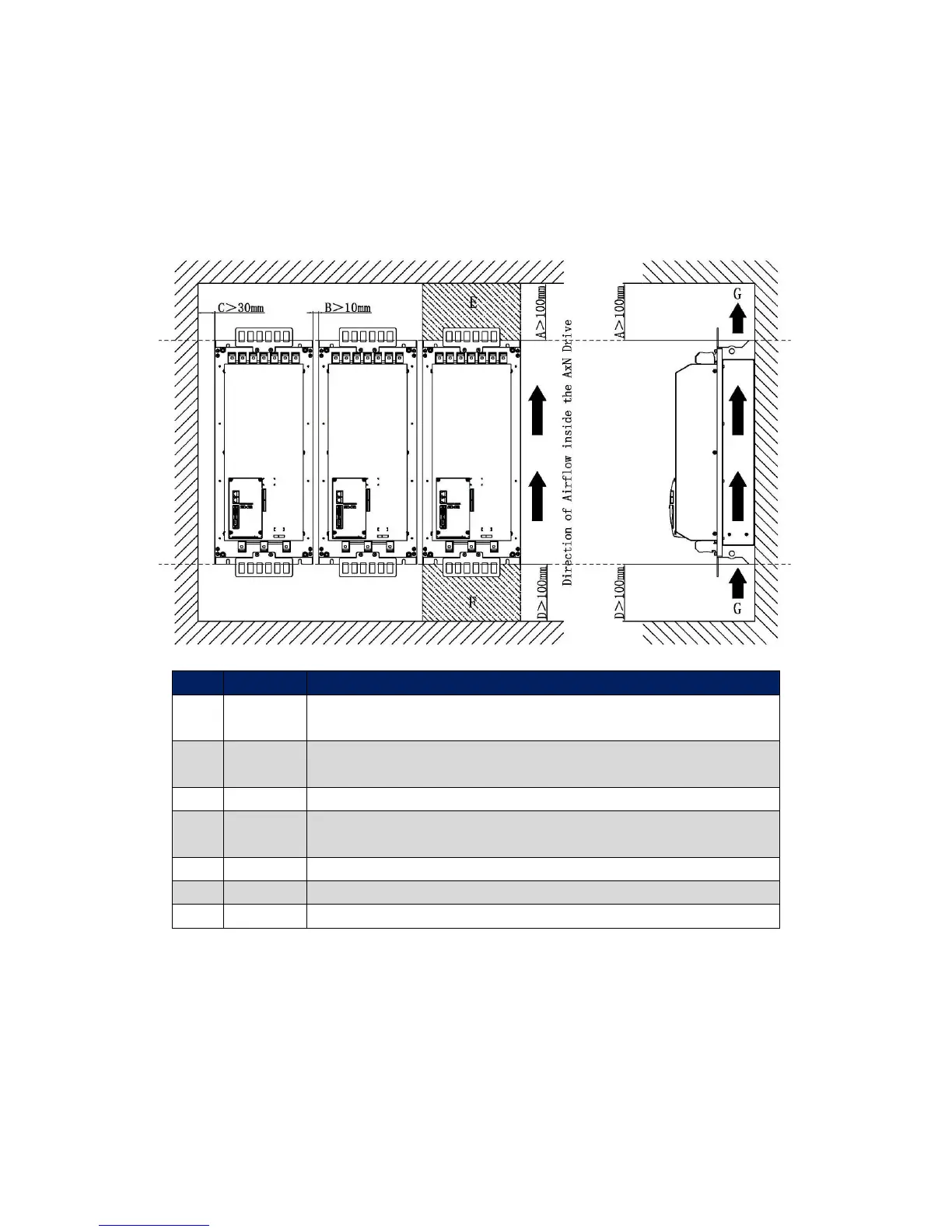
1.5 Installation Spacing
To maintain sufficient space for airflow and wiring, the space between AxN drive and other device
(including other AxN drives) must comply the requirement below.
Correct Installation Spacing of AxN Series Drive
No.
Distance
Description
A
100mm
The distance between the top of the switch cabinet, to ensure enough
space for air-out.
B
10mm
The distance between other device (including other AxN drives and
peripheral devices)
C
30mm
The distance between the inside wall of the switch cabinet.
D
100mm
The distance between the bottom of the switch cabinet, to ensure enough
space for air-in.
E
100mm
Air-out area, do not place any other device in this area
F
100mm
Air-in area, do not place any other device in this area
G
Airflow Direction
NOTE: The switch cabinet must have air outlets and inlets to ensure the thermal exchange between
the cold air outside and the hot air inside.

Related product manuals