EasyManua.ls Logo

Philips 19PFL5522D - Ssb: DC;DC

Philips 19PFL5522D
180 pages
Print Icon
To Next Page IconTo Next Page
To Next Page IconTo Next Page
To Previous Page IconTo Previous Page
To Previous Page IconTo Previous Page
Loading...
42LC7.2E LB 7.
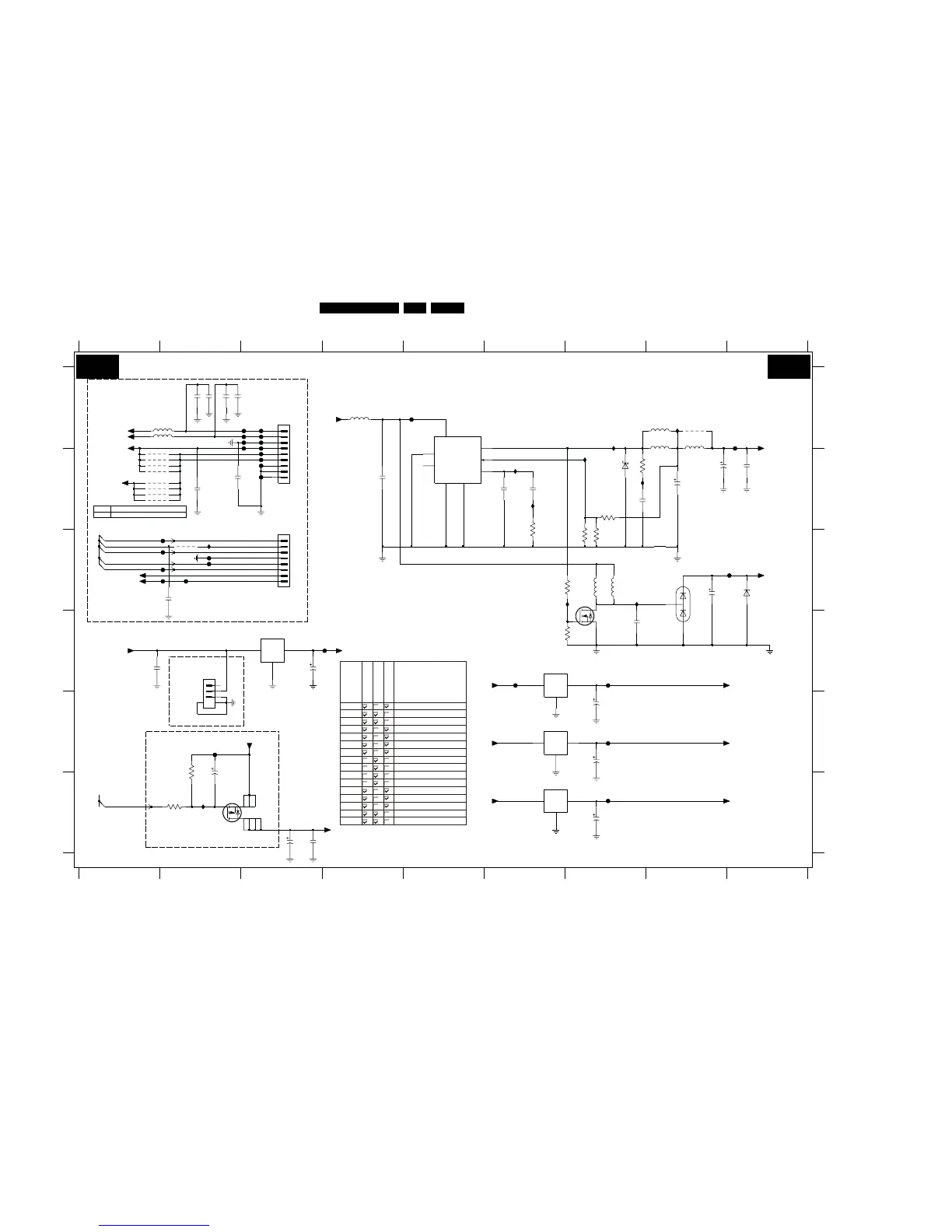
Circuit Diagrams and PWB Layouts
SSB: DC/DC
COM
OUTIN
COM
OUTIN
COM
OUTIN
COM
OUTIN
FB
OUT
COMP
VREFVCC
INH
SYNC
GND GND_HS
DC - DC
ITV Connector
RES RES
RES
ONLY FOR LCD
LCD
PDP
4C55 / 4C56 / 4C61 / 4C62
4C57 / 4C58 / 4C59 / 4C60
RES
RES
RES
RES
RES
RES
RES
TO / FROM PSU
5V2
-12V2
+12V2
TO / FROM PSU
2V9
2V8
1V6
0V(5V)
0V(5V)
(---V) MEASURED IN STANDBY
34V
*
*
*
*
*
*
*
*
*
123456789
123456789
A
B
C
D
E
F
A
B
C
D
E
F
1B11 D2
1C01 A3
1P11 C3
2B10 B8
2B11 B9
2B12 B4
2B13 B8
2B14 B6
2B15 B6
2B16 B7
2B17 D1
2B18 D3
2B19 C8
2B20 D7
2B21 E7
2B22 F2
2B23 E7
2B24 F3
2B25 F3
2B26 F7
2C55 A2
2C56 A2
2C57 B2
2C58 C2
2C59 B2
2C60 A2
2C61 A2
3B10 B7
3B11 C6
3B12 B7
3B13 C6
3B14 C7
3B15 D6
3B17 F2
3B18 F2
3B19 C7
4B01 A8
4C01 C2
4C55 B1
4C56 B1
4C57 B1
4C58 B1
4C59 B1
4C60 B1
4C61 B1
4C62 B1
5B01 A4
5B02 A8
5B03 A8
5B04 C7
5B05 A8
5B06 C7
5B10 A1
5B11 A1
6B01 B7
6B02 C9
6B03 C8
7B01 A5
7B02 D3
7B03 D7
7B04 D6
7B05 F3
7B06 E6
7B08 F6
FB10 A5
FB11 A9
FB13 D4
FB14 C9
FB15 E2
FB16 D6
FB17 D7
FB19 E7
FB20 F7
FB21 A3
FB22 A3
FB23 A3
FB24 A3
FB25 A3
FB26 A3
FB27 A3
FB28 A3
FB29 B3
FB30 B3
FB31 B3
FB32 C2
FB33 C2
FB34 C2
FC25 B3
FC26 C1
FC27 C1
FC28 C1
FC29 C1
IB10 A8
IB11 A7
IB12 B6
IB13 B7
IB14 C6
IB15 C7
IB17 F2
IB18 C2
IB19 B6
IB20 B8
LD1117DT33C
7B02
10n
2C61
10n
2C60
100n
2C59
4C60
4C62
4C59
4C61
FB34
5B11
22u
22u
5B10
IB20
IB18
IB19
FB33
FB32
FB30
FB31
FB29
FB28FB27
FB25
FB23
FB26
FB24
FB21
5B06
FB22
68u
10K
3B19
5B05
33u
2C58
1n0
4C01
+5V_SW
4C57
4C58
4C56
4C55
GNDSND
GNDSND
+5V_STANDBY
FC28
FC29
FC27
FC26
FC25
2C56
1n0
1n0
2C57
2C55 1n0
-AUDIO_POWER
+AUDIO_POWER
GNDSND
7
8
+12V_DISP
+5V_STANDBY
1
2
3
4
5
6
8
9
B8B-PH-K-S
1P11
1
2
3
4
5
6
7
1C01
B9B-PH-K
2B19
22u 35V
1B11
1
2
3
45
B3B-PH-SM4-TBT(LF)
6K8
3B18
FB14
IB15
3B10
IB14
GNDTUN
2B20
100p
1K0
3B15
6B02
BZX384-C33
+VTUN
6B03BAV99
5B04
100u
7B03
2N7002
220R
3B13
2B16
10n
2B11
100n
2B25
4B01
3B11
4K7
10u
5B02
5B03
33u
100n
2B17
16V470u
2B13
IB17
FB15
FB10
FB11
IB12
IB10
6K8
3B17
35V4u7
2B22
2
3
+5V_SW
+5V_STANDBY
5
6
7
8
4
1
+1V8S_SW
7B05
SI4423DY
SS24
470R
3B12
6B01
+5V_SW
1%1K0
3B14
IB11
IB13
2B14
220p
2B15
22n
GNDDC
10u
5B01
2B12
22u
4
5
7
9
3
1
2
8
6
L5973D
7B01
Φ
+1V2_MOJO
+5V_SW
+5V_SW
FB20
2B26
16V10u
FB19
+3V3_MOJO
FB16
+3V3_SW
10u
2B23
16V 16V
FB17
+3V3_STBY
+5V_SW
10u
2B21
FB13
LD1117DT
7B08
1
32
16V
2B10
100u
1
32
47u
7B06
LD1117DT33C
2B18
10u 16V
16V
2B24
LD1085D2T33
7B04
1
32
+5V_STANDBY
1
32
POWER_DOWN
STANDBY
BACKLIGHT_BOOST
BL_ADJUST
BL_ON_OFF
STANDBY
B02 B02
3139 123 6261.1
G_16860_001.eps
250107
Item
EU-LCD
EU-PDP
EU iTV - LCD
Description
R LOC 02MP 7U4 V53 MS PACLE22B2
R LOC 02MP U01 V61 MS PACLE32B2
R LOC 02MP U01 V61 MS PACLE62B2
LOC 5MP
8K6 3060 MS TSR71B3
LOC 5MP 8K6 3060 MS TSR81B3
LOC 50R0 .PMUJ 3060 MS TSR55C4
LOC 50R0 .PMUJ 3060 MS TS
R65C4
LOC 50R0 .PMUJ 3060 MS TSR75C4
LOC 50R0 .PMUJ 3060 MS TSR85C4
LOC 50R0 .PMUJ 3060 MS TSR95C4
LOC 50
R0 .PMUJ 3060 MS TSR06C4
LOC 50R0 .PMUJ 3060 MS TSR16C4
LOC 50R0 .PMUJ 3060 MS TSR26C4
R)HSIV(50B7
R )00T
S( C33TD7111DL MS CI60B7
R )00TS( TD7111DL MS CI80B7

Table of Contents

Other manuals for Philips 19PFL5522D

Related product manuals