EasyManua.ls Logo

Philips 19PFL5522D - Side I;O Panel

Philips 19PFL5522D
180 pages
Print Icon
To Next Page IconTo Next Page
To Next Page IconTo Next Page
To Previous Page IconTo Previous Page
To Previous Page IconTo Previous Page
Loading...
68LC7.2E LB 7.
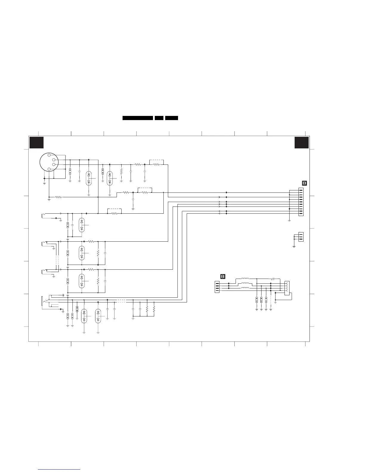
Circuit Diagrams and PWB Layouts
Side I/O Panel
I325 D8
I326 D8
I327 D8
I308 C2
I309 D2
I310 D2
S304 C1
S305 D1
S306 E1
S307 E1
S308 E2
S310 E7
S311 E7
S312 E7
SVHS
SSB BD
USB
SSB BD
3313 E4
4301 C1
4302 C1
I328 D8
I329 D8
I330 D6
I331 D6
I332 D6
S301 A1
S302 A2
S303 B1
6304 C2
6305 D2
6306 E2
6307 E2
I301 A2
8
A
B
I311 E3
I312 E2
I313 E1
I314 A6
I315 B6
I316 B6
I317 B6
I318 B6
TO 1M36 OF
3302 A3
3303 A4
3304 A4
3305 A3
3306 A4
I319 B6
I320 B6
I321 B8
234
4303 E8
4304 A4
4306 A4
4307 B3
4308 E3
4309 E3
5300 D7
5301 D7
HEADPHONE
5302 D7
6301 A2
6302 A3
6303 B2
I302 A1
I303 A3
I304 A4
I305 A3
I306 B2
I307 B1
C
D
E
A
B
C
D
E
2309 E3
2310 E4
2311 B1
2312 D8
3301 B1
2307 E3
2308 E3
3307 B3
3308 C2
3309 C2
3310 D2
3311 D2
3312 E4
CVBS
1 567 8
1234
L
TO 1M60 OF
567
I309
SIDE I/O
1301 A1
1302-1 B1
1302-2 C1
1302-3 D1
1303 D1
1304 A8
1308 D8
1309 D6
1310 C8
2301 A3
2302 A4
2303 A2
2304 B3
2305 C2
2306 D2
R
I321
S306
2301
47p
I329
S301
6305
DF3A6.8
75R
3301
3312
10K
I326
47p
2304
220R
I315
5302
2308
22n
10K
3313
100R
3304
S311
S312
I320
I304
1
2
3
1310
B3B-PH-K
6303
DF3A6.8
2303
22p
22p
2311
I312
DF3A6.8
6307
6301
DF3A6.8
I305
DF3A6.8
6302
4308
5
7
8
I316
MSJ-035-18A SR
1303
1
2
3
4
4306
I306
100R
3307
3308
100R
I327
7
6
8
I332
56
1302-3
RED
1734366-1
1308
1
2
3
4
100p
1
2
2305
1302-1
YELLOW
I303
I328
3306
100R
4307
5301
220R
5300 220R
1
2
3
4
4304
B4B-PH-K
1309
I307
4
3
5
I319
1302-2
WHITE
6306
DF3A6.8
4301
I325
S303
75R
3302
2312
100u16V
S302
S307
S304
100p
2306
7
5
6
1301
YKF51-5359
1
2
3
4
4302
3303
10R
I311
I313
3310
100R
4303
2309
10n
I317
47p
2302
3311
100K
4309
10R
3305
S310
S305
I301
I314
S308
I302
I308
7
8
9
I318
1
10
11
2
3
4
5
6
1304
100K
3309
I331
I330
DF3A6.8
6304
I310
22n
2307
10n
2310
FRONT_DETECT
FRONT_Y_CVBS_IN
FRONT_C_IN
HEAD_PH_L
HEAD_PH_R
L_FRONT_IN
R_FRONT_IN
D D
G_15950_014.eps
040406
3104 313 6135.1

Table of Contents

Other manuals for Philips 19PFL5522D

Related product manuals