EasyManua.ls Logo

Philips 19PFL5522D - SSB: YPBPR & Rear IO (B06 A)

Philips 19PFL5522D
180 pages
Print Icon
To Next Page IconTo Next Page
To Next Page IconTo Next Page
To Previous Page IconTo Previous Page
To Previous Page IconTo Previous Page
Loading...
52LC7.2E LB 7.
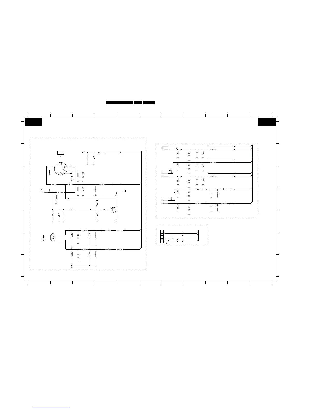
Circuit Diagrams and PWB Layouts
SSB: YPBPR & Rear IO
YPBPR & REAR IO
R
L
CVBS
SVHS
YPbPr
ITV Connector D
RES
RES
RES
RES
RES
RES
RES
L
R
PR
Y
PB
FOR NON SIDE IO / ITV
RES
RES
RES
RES
RES
RES
RES
RES
RES
F603 D2
F604 D1
F605 B7
F606 B7
F607 C7
F608 D7
F609 D7
F610 F3
F611 E3
F612 F7
F613 F7
F614 C7
F615 C2
F616 F1
I610 C10
I611 D10
I615 B4
I623 D9
I627 D9
I631 C4
I632 D3
I633 B1
I635 E4
I636 F4
3609 C2
3611 D8
3612 D9
3613 E1
3615 F3
3616 F3
3617 B9
3618 B9
3619 C9
3620 F3
3621 E3
3622 D4
3623 D4
3624 E4
3625 D4
4601 C2
4602 D2
4603 E5
4604 F5
6604 C3
6605 G3
6606 D3
6607 F3
6610 B8
6611 C8
6612 C8
6613 D8
6614 D8
6615 E2
7601 D4
F601 B3
F602 C3
1611 D7
1612 D2
1613 D7
1614 F2
1615-1 B7
1615-2 C7
1615-3 D7
1618 F2
1619 E7
2600 B3
2601 E2
2602 B8
2603 B8
2606 C8
2607 C9
2608 D9
2609 D4
2610 D9
2612 D9
2613 F4
2614 F4
2615 E4
2616 F4
2617 D2
3600 B4
3601 B8
3602 C4
3603 B8
3604 B4
3605 C8
3607 D8
3608 D9
7891011
A
B
C
D
E
F
G
A
B
C
D
E
F
G
1601-1 B2
1601-2 D1
1601-3 B2
1603 E2
1606 B7
1607 C7
1608 D3
1609 C3
1610 C7
1234567891011
123456
3625
100R
PESD5V0S1BA
6615
4604
4603
MSD-242V-01 NIDIP (765A) LF
3
12
I636
1603
I635
3616
33K
33K
3615
3612
33K
33K
3608
150R
3611
150R
3607
150R
3621
9
150R
3620
6
GND
1601-3
1601-1
1
2
3
4
5
8
7
1601-2
I633
3619
100R
3618
100R
3617
100R
F615
F616
F613
F614
F612
I611
I610
F606
F607
F605
F609
F610
F608
F611
6606
PESD5V0S1BA
PESD5V0S1BA
6604
+5V_SW
+5V_SW
F602
F601
I631
F603
I632
F604
1K0
3622
100K
3623
56K
3624
2617
1u0
7601
BC857BW
4602
4601
3609
75R
3604
75R
2600
3600
10R
2615
220n
8
2614
220n
1
2
3
4
5
6
7
1619
BM06B-SRSS-TBT
PESD5V0S1BA
6614
6613
PESD5V0S1BA PESD5V0S1BA
6612
6611
PESD5V0S1BA PESD5V0S1BA
6610
7
9
8
4
6
5
MSD-246V1-145 NIDIP
1615-3
2
3
MSD-246V1-145 NIDIP
1615-2
MSD-246V1-145 NIDIP
1615-1
I623
I627
16111613
1607
16061610
2603
3603
75R
3601
2602
75R
2606
3605
75R
2607
220n
220n
2610
3n3
2608
2612
3n3
PESD5V0S1BA
6607
6605
PESD5V0S1BA
75R
3613 2601
1608
I615
3n3
2613
1614
2616
3n3
1618
3602
10R
1609
1612
2609
HD_PB_IN
SIDE_AUDIO_IN_L
SIDE_AUDIO_IN_R
HD_PR_IN
HD_Y_IN
HD_PR_IN_ITV
HD_Y_IN_ITV
HD_PB_IN_ITV
VGA_V
VGA_H
COMP_AUDIO_IN_L
HD_PB_IN_ITV
HD_PR_IN_ITV
HD_Y_IN_ITV
COMP_AUDIO_IN_R
FRONT_C
FRONT_Y_CVBS
B06A B06A
3139 123 6261.1
G_16860_011.eps
240107

Table of Contents

Other manuals for Philips 19PFL5522D

Related product manuals