EasyManua.ls Logo

Philips 19PFL5522D - IR & LED Panel (J)

Philips 19PFL5522D
180 pages
Print Icon
To Next Page IconTo Next Page
To Next Page IconTo Next Page
To Previous Page IconTo Previous Page
To Previous Page IconTo Previous Page
Loading...
72LC7.2E LB 7.
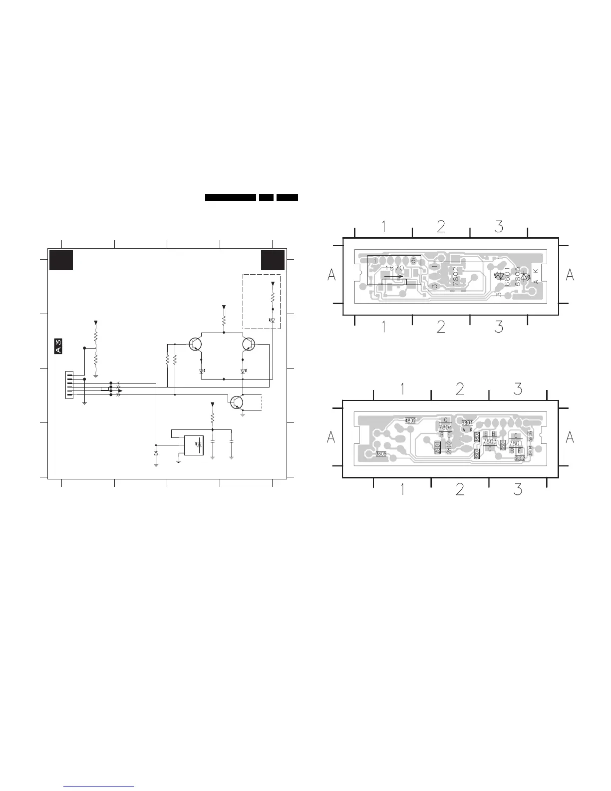
Circuit Diagrams and PWB Layouts
IR & LED Panel
FRONT IR / LED (26”)
J
J
G_15950_026.eps
050406
3139 123 6175.2
D
1870 C1
2801 D4
2802 D4
3801 B2
3802 B4
3803 C3
3804 B1
3805 A4
3806 B1
1234
123
C
D
3807 B3
4802 C4
6801-1 B4
FOR ITV
6801-2 C3
6804 D2
6805 B4
7801 B3
7802 D3
4
A
B
F801 C1
F802 C1
F803 C1
F804 C1
F805 C1
F806 B1
I802 B4
I803 B3
I804 D3
I805 B4
I806 C4
I807 A4
A
B
C
TO 1007 TV-SCALER BD
3V5
3V5
7803 B4
7804 C4
F804
I804
I802
I803
F805
F801
1
2
3
4
5
6
1870
F806
I806
330R
3802
I805
2802
10u
6801-1
SPR-325MVW
RED
1
2
F803
220R
3803
2M2
3804
220R
3805
6805
TSAL4400-MS21
10u 6.3V
2801
7804
BC847B
+3V3STBY
+3V3STBY
7803
BC847BBC847B
+3V3STBY
I807
7801
3K3
3801
6801-2
SPR-325MVW
GREEN
32
+3V3STBY
3806
2M2
3807
150R
2
OUT
1
VS
3
4802
TSOP34836
7802
GND
+3V3STBY
F802
IR
6804
BZX384-C3V9
LED_SEL
PC-TV-LED
Layout IR & LED Panel (Top Side)
Layout Front IR & LED Panel (Bottom Side)
G_15950_027.eps
050406
3139 123 6175.2
1870 A1 6801 A3 6805 A3 7802 A2
G_15950_027.eps
070406
3139 123 6175.2
2801 A2
2802 A2
3801 A3
3802 A3
3803 A2
3804 A3
3805 A1
3806 A3
3807 A2
4802 A1
6804 A2
7801 A3
7803 A3
7804 A2

Table of Contents

Other manuals for Philips 19PFL5522D

Related product manuals