EasyManua.ls Logo

Philips 19PFL5522D - SSB: Tuner & Demodulator (B03 A)

Philips 19PFL5522D
180 pages
Print Icon
To Next Page IconTo Next Page
To Next Page IconTo Next Page
To Previous Page IconTo Previous Page
To Previous Page IconTo Previous Page
Loading...
Circuit Diagrams and PWB Layouts
43LC7.2E LB 7.
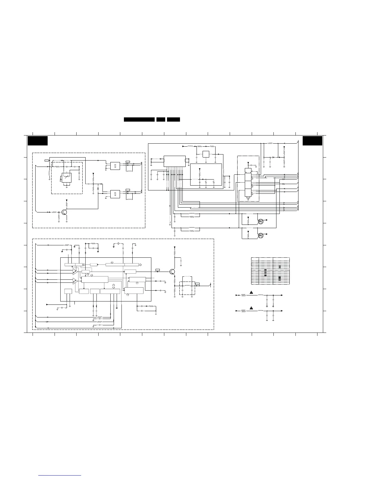
SSB: Tuner & Demodulator
COM
OUTIN
I
O2ISWI
O1
GND
I
O2IGND
O1
GND
4X1
G4
4X2
1
2
VDD
VEEVSS
MTMT
SIF
AGC
AFC DETECTOR
PORTS
INTERCARRIER MIXER AND
AM-DEMODULATOR
I C-BUS TRANSCEIVER
2
RC VCO
NARROW-BAND FM-PLL
DIGITAL VCO CONTROL
SOUND TRAPS
4.5 to 6.5 Mhz
AUDIO PROCESSING
MAD
TUNER AGC VIF AGC
SUPPLY
OUTPUT
VIF-PLL
SINGLE REFERENCE QSS MIXER
AND SWITCHES
DEMODULATOR
TUNER IF & DEMODULATOR
RES
RES
DEMODULATOR
TUNER
SAW FILTERS
DVB ONLY
ANALOG
DIGITAL
4110
4111
4112
4113
4114
4115
Y
Y
Y
4116
4117
4118
4119
RES
RES
RESERVED
40.4MHz
Trap
3113/4110 & 2110/4111
at same position
RES
4120
4121
4122
4123
4124
Y
Y
Y
Y
Y
Y
Y
Y
Y
Y
Y
Y
Y
Y
Y
Y
Y
ONLY FOR ANALOG TV
RES
RES
RES
RES
RES
RES
RES
RES
1V3
1V3
4V9
4V3
2V
2V
2V
2V
0V
2V1
1V5
2V1
2V3
**
*
*
** **
*
*
*
*
*
*
*
*
*
*
*
12345678910111213
12345678910111213
A
B
C
D
E
F
G
H
I
A
B
C
D
E
F
G
H
I
1101 A6
1102 B4
1103 C4
1104 E4
2110 B2
2111 B2
2112 B11
2113 B10
2114 B2
2115 B6
2116 B6
2117 C3
2118 C10
2119 C8
2120 C9
2121 E7
2122 D7
2123 F3
2124 F2
2125 F3
2126 F3
2127 F5
2128 F7
2129 H11
2130 H11
2131 I11
2132 I11
2133 G6
2134 H7
2135 H8
2136 H6
2137 H5
2138 H2
2139 H5
2140 I3
2141 I3
2142 C9
2143 F5
2144 I3
2145 I3
2146 B6
2147 A8
2148 A9
2149 B11
2151 C9
3110 A12
3111 A11
3113 B2
3115 B12
3116 B3
3117 C3
3118 D2
3119 D1
3120 D8
3121 E8
3122 D2
3123 E3
3124 E2
3125 G7
3126 H7
3127 H6
3128 I4
3129 I3
3130 B8
3131 D10
3132 E10
3133 H10
3134 H10
3135 F7
3136 A8
3137 A9
4110 B2
4111 B2
4112 B6
4113 B8
4114 C7
4115 C7
4116 C7
4117 C7
4118 C7
4119 C7
4120 D8
4121 D10
4122 E10
4123 D7
4124 G8
4125 B11
5110 B2
5111 B1
5112 B9
5113 C5
5114 H11
5115 H11
5116 G8
5117 B5
5118 A8
5120 D8
5121 E8
6103 C3
6110 A11
7109 D2
7111 B10
7113 F2
7114 G7
7131 D11
7132 E11
7133 A8
A110 B1
A115 B5
A116 B5
A124 C5
A125 C5
F111 B3
F112 B6
F114 H10
F115 B7
F116 B7
F117 B7
F118 B7
F119 B7
F120 B7
F121 B7
F122 B7
F123 B7
F126 C7
F127 C7
F128 F2
F129 H11
F130 G6
F131 H11
F132 B6
F133 B9
F134 A8
F140 G8
I110 B2
I111 A12
I112 B3
I114 C4
I118 C4
I120 D2
I121 D10
I122 D7
I123 E10
I124 E3
I125 F4
I126 F3
I127 F3
I128 G6
I129 G6
I130 H6
I131 H5
I133 I4
I135 I4
I136 I4
I137 B8
I138 G7
I139 G7
I141 D1
I142 F5
I143 H3
I144 H4
I145 A9
I146 A8
I147 A8
I131
7109
BC847B
4125
5121 120R
5120 120R
I147I146
2149
2u2
50V
10u
2151
I145
5118
220R
+12V_DISP
100n
2148
330n
2147
47R
3137
3
47R
3136
7133
L78M05CDT
2
1
1u0
2146
3135
15R
I143
I144
I142
+5V_IF
I141
3134
1R0
1R0
3133
2144 10n
1n0
2143
2145
1n0
5114
5115
10u
10u
220R
5112
I139
F140
I138
I136
I137
+3V3_SW
+5V_IF
7132
BSH111
4K7
3132
+3V3_SW
BSH111
7131
3131
4K7
+5V_IF
F132
50V
2142
10u
1K0
3130
5117
RES
4124
5u6
5116
2135
15p
15p
2134
I110
I112
180R
3126
A116
A115
F112
F130
41114110
I111
I123
F134
I121
F115
F116
2128
10n
1u0
2115
2116
1u0
F111
2114
3p3
2111
68p
2110
220p
3113
47R
34
5
6
7
8
5110
1
2
A125
A124
150R
3125
+5VS
BC847B
7114
4
3
15
F114
38M9
1102
OFWK3953M
4123
OFWK9656M
1103
38M9
3
15
4
F123
F122
F121
F119
F120
F118
I120
F117
I114
I118
+5V_IF
F131
6K8
3116
2K2
3117
2117
10n
5113
RES
10n
2113
2120
22u
15p
2121
4122
4121
4116
2122
15p
100n
2119
+5V_IF
2131
22u
2132
+5V_SW
22u
SCL
4
SDA
5
6
XTAL_OUT
4112
IF_AGC
9
IF_OUT1
8
IF_OUT2
10
11
IF_OUT3
12
1314
15
RF_AGC
2
TUNER
7
+5V
CS
3
DC_PWR
1
TD1316AF/IHP-2
1101
4120
+VTUN
4113
4118
4119
4117
4115
5
14
15
4
4114
9
16
7
8
13
1
3
12
2
74HCT4053D
7111
MDX
6
11
10
F127
F126
3120 10R
F133
I122
3121 10R
10n
2118
3110
+5V_IF
3111
5K6
8K2
BAS316
6110
39K
3115
10u
2112
A110
+5V_IF
3118
2K2
6103
5111
390n
1SS356
3119
22K
3122
18K
I130
I128
I129
I125
I133
+5VS
F128
+5VS
+5V_SW
9TOP
VAGC 16
1VIF1
2VIF2
19VPLL
20 Vp
OP2
15REF
11 SCL
10 SDA
23 SIF1
24 SIF2
12 SIOMAD
14TAGC
AGND
8AUD
17CVBS
5DEEM
7 DGND
4 FMPLL
13
NC
3 OP1
22
TDA9886T/V4
7113
21AFC
6AFD
18
2136
470n
10n
2133
3127
5K6
10n
2137
390p
2139
I126
I127
I135
I124
F129
2141
2140
22u
2129
2130
10n
100R
100R3129
10n
3128
2138
22p
4M0
1104
2127
330R
3123
1n5
2123
2125
470n
220n
2126
100R
22n
2124
3124
+12V_DISP
I2C_TDA_SDA
CVBS_RF
IF_ATV
DVB_SW
WAGC_SW
IIC_SDA
IIC_SCL
I2C_TDA_SCL
VIP_IBO
VIM_IBO
RF_AGC_IBO
IF_AGC_IBO
4MHZ_CLK
SAW_SW
SIF1
RF_AGC
IF_ATV
VIF2
VIF1
SIF2
VIF2
VIF1
SIF2
SIF1
SIF
RF_AGC
IIC_SCL
IIC_SDA
B03A B03A
3139 123 6261.1
G_16860_002.eps
240107

Table of Contents

Other manuals for Philips 19PFL5522D

Related product manuals