EasyManua.ls Logo

Philips 19PFL5522D - SSB: Video Processor

Philips 19PFL5522D
180 pages
Print Icon
To Next Page IconTo Next Page
To Next Page IconTo Next Page
To Previous Page IconTo Previous Page
To Previous Page IconTo Previous Page
Loading...
50LC7.2E LB 7.
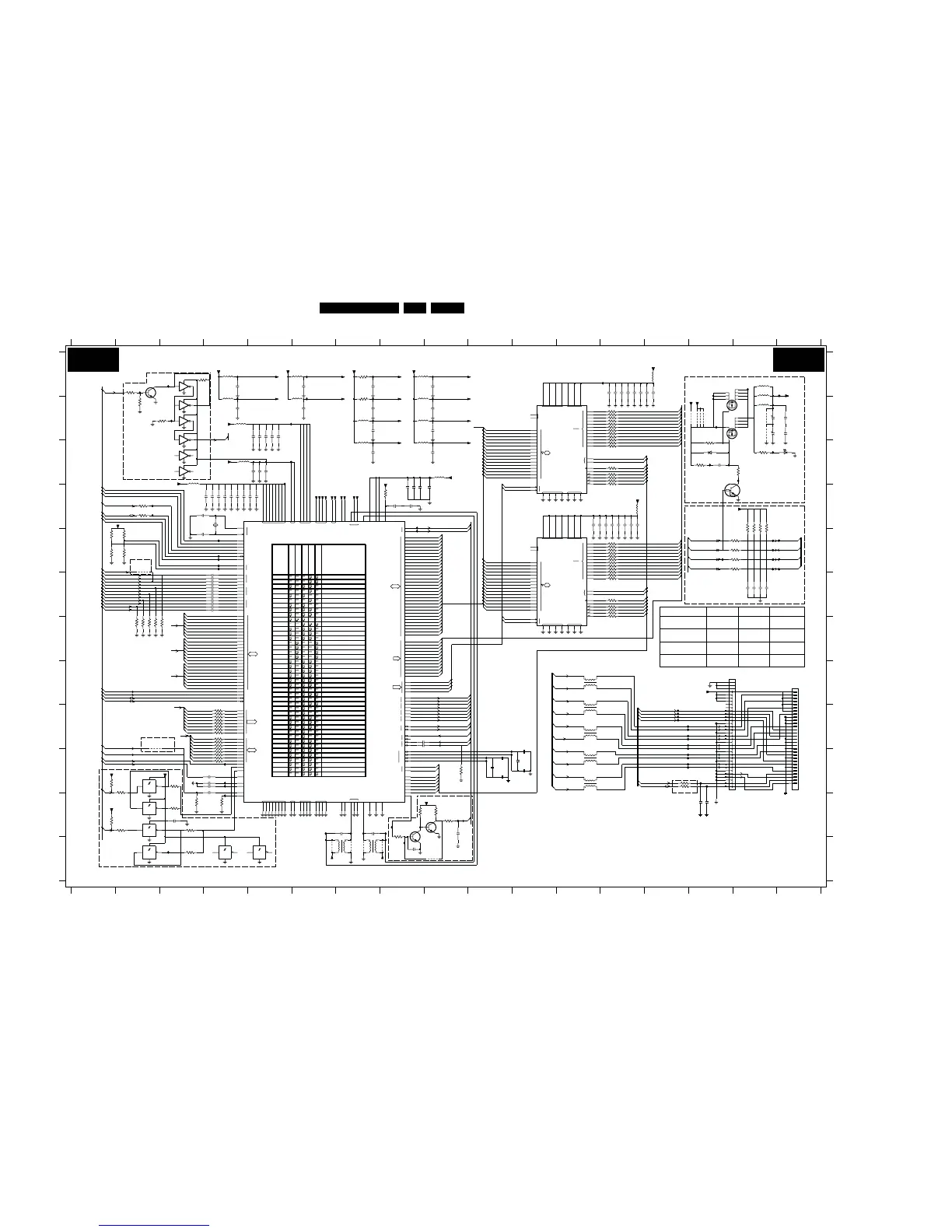
Circuit Diagrams and PWB Layouts
SSB: Video Processor
P
M
P
M
TA1
TB1
VDDC
N_1
2
1
2
1
9
10
1
2
3
4
5
12
0
2
1
12
RD_
SCL
SDA
INTN
14
13
RESET
P
VDDH VDDM
AVDD3_ADC
AVDD_ADC
PAVDD
12
VSSC VSSH VSSM AVSS_ADC
PAVSS
11
10
9
8
7
6
16
5
6
7
ALE
AIN_HS
AIN_VS
DP_HS
DP_VS
CVBS1
PLF2
MLF1
DP_CLK
5
4
3
2
1
WR_
O
PC_G
3
2
1
1
0
PB_B
1
2
3
Y_G
CVBS_OUT
4
8
9
10
11
12
13
14
15
16
17
18
19
DP_DE_FLD
C
TESTMODE
V5SF
LVDSVDDP
LVDSVCC
DP
ADDR
A_D
MA
DQM
FB
FS
M
TCLK1
VREF
1
0
BA
N_2
I
0
31
30
29
28
27
26
25
24
23
22
6
7
8
3
2
1
LVDSGND
XTAL
GPIO
PR_R
1
2
3
6
7
0
1
2
3
15
11
3
2
1
PC_B
0
1
2
3
4
5
6
20
21
22
23
0
PC_R
PLL_VCC
M
P
M
TC1
TD1
P
7
CS
PDVDD
AVDD3_OUTBUF
AVDD3_BG_ASS
MCK
WE_
CAS_
RAS_
CS0_
P_2
CLKE
PWM0
P_1
21
20
19
18
17
MD
0
PLL_GND
PDVSS
AVSS_BG_ASS
AVSS_OUTBUF
4
5
11
1
0
13
12
9
8
9
10
VSS
VDDQ
1M-1
DQM
VDD
VSSQ
0
A
BA
1
6
H
0
WE
L
NC
CAS
RAS
7
5
4
3
2
15
14
11
10
CS
CKE
CLK
D
0
1
2
3
4
5
6
7
8
11
1
0
13
12
9
8
9
10
VSS
VDDQ
1M-1
DQM
VDD
VSSQ
0
A
BA
1
6
H
0
WE
L
NC
CAS
RAS
7
5
4
3
2
15
14
11
10
CS
CKE
CLK
D
0
1
2
3
4
5
6
7
8
RES
VIDEO PROCESSOR
RES
VDISP-SWITCH
CPU-GO
PDP-GO
PDWIN
RESET
DISPLAY CONTROL
LVDS
CONNECTOR
RES
RES
RES
RES
RES
RES
RES
RES
RES
RES
RES
RES
RES
RES
RES
FHPSDI
LGE
CTRL-DISP1
CTRL-DISP2(LCD_PWR_on)
CTRL-DISP3(Rev_Standby)
CTRL-DISP4
Semi standby : H
Normal and off : L
On time : H
Off time : Don’t care
On time : H
Off time : Don’t care
On time : H
Off time : Don’t care
On time : H
Semi standby : L
Off time : Don’t care
RES
FOR ITV ONLY
DISPEN
RES
RES
RES
RES
RES
RES
RES
LCD
PDP
RES
RES
RES
RES
RES
FOR NON
SIDE IO
FOR NON SIDE IO
RES RES
RES
RES
RES
RES
12V1
0V
3V2
RES
RES
FOR LCD ONLY
FOR LCD ONLY
RES RES
1234567891011121314151617
1234567891011121314151617
A
B
C
D
E
F
G
H
I
J
K
L
A
B
C
D
E
F
G
H
I
J
K
L
1201 D4
1210 H12
1211 I12
1212 I12
1213 J12
1214 J12
1215 L7
1216 L7
1G50 H15
1G51 H17
2205 K7
2206 K7
2207 B17
2208 B16
2209 B16
2210 B17
2211 C5
2212 C5
2213 C5
2214 C5
2215 C5
2216 D9
2217 B13
2218 B13
2219 B13
2220 B13
2221 B13
2222 B13
2223 B14
2224 E12
2225 E12
2226 E13
2227 E13
2228 E13
2229 B14
2230 C5
2231 C5
2232 C5
2233 D8
2234 D8
2235 D8
2236 D3
2237 D4
2238 D4
2239 D4
2240 D4
2241 D4
2242 D4
2243 D5
2244 D5
2245 D8
2246 D3
2247 E3
2248 C15
2250 F4
2251 F4
2252 F4
2253 F4
2254 F4
2255 F4
2256 F4
2257 F4
2258 F4
2259 F4
2260 F4
2261 F4
2262 F16
2263 F16
2264 F16
2265 F16
2266 J11
2267 I8
2268 I8
2269 J11
2270 J11
2271 J10
2272 J10
2273 J3
2274 J10
2275 J3
2276 J3
2277 J3
2278 K9
2279 A7
2280 A6
2281 L8
2282 A9
2283 K15
2284 A4
2285 K15
2286 B7
2287 B9
2288 B6
2289 B4
2290 B7
2291 B9
2292 C7
2293 C9
2294 K3
2295 E13
2296 E13
2297 E13
2298 D8
3201-1 I4
3201-2 I4
3201-3 I4
3201-4 I4
3202-1 I4
3202-2 I4
3202-3 I4
3202-4 I4
3203-1 I4
3203-2 I4
3203-3 I4
3203-4 I4
3204-1 J4
3204-2 J4
3204-3 J4
3204-4 J4
3210 C16
3211 D8
3212 D2
3213 C15
3215 D2
3216 C15
3217 C16
3219 E1
3220 E2
3221 E1
3222 E2
3223 E16
3224 E16
3225 E16
3226 E16
3227 E16
3228 G2
3229 G2
3230 G2
3231 G2
3232 G3
3233 E16
3235 E16
3238 E16
3239 K4
3240 K3
3241 K9
3242 K9
3243 K9
3244 A7
3245 K8
3246 J14
3247 J14
3248 B7
3250 J2
3251 J3
3253 K3
3254 K2
3255 K3
3256 L3
3257 J1
3258 K1
3260-1 B12
3260-2 B12
3260-3 B12
3260-4 B12
3261-1 B12
3261-2 B12
3261-3 B12
3261-4 B12
3262-1 B12
3262-2 B12
3262-3 C12
3262-4 C12
3263-1 E12
3263-2 E12
3263-3 E12
3263-4 E12
3264-1 E12
3264-2 E12
3264-3 E12
3264-4 E12
3265-1 E12
3265-2 E12
3265-3 F12
3265-4 F12
3266 C12
3267 F13
3268-1 F12
3268-2 C12
3268-3 F12
3268-4 C12
3271-1 C12
3271-2 F12
3271-3 C12
3271-4 F12
3272 J9
3273 A2
3274 B2
3275 A3
3276 B3
4203 B14
4204 B15
4205 B15
4206 B15
4207 L9
4208 E2
4209 I2
4210 L6
4211 L7
4212 L7
4213 L8
4214 B16
4215 B16
5210 B4
5211 A16
5212 A14
5213 C9
5214 C4
5215 A16
5216 C3
5217 B16
5218 A6
5219 A4
5220 A8
5221 B6
5222 B8
5223 B4
5224 B7
5225 B8
5226 C7
5227 C8
5228 D13
6201 C17
6202 C15
7202 D4
7203 L9
7204 B11
7205 E11
7206 K9
7207 B16
7208 C15
7210 A15
7211-1 J2
7211-2 K2
7211-3 K2
7211-4 L2
7211-5 L4
7211-6 L5
7213-1 A3
7213-2 B3
7213-3 B3
7213-4 B3
7213-5 C3
7213-6 C3
7214 A2
F210 A17
F211 C9
F212 E16
F213 E16
F214 E16
F215 E16
F217 I17
F218 I15
F219 I15
F220 I15
F221 I15
F222 I15
F223 I15
F224 I15
F225 J15
F226 J15
F227 J15
F228 J15
F229 J15
F230 J15
F231 C5
F232 E4
I210 B5
I211 A16
I213 A13
I214 C5
I215 C16
I216 B15
I217 D8
I218 E8
I220 C15
I224 C15
I225 C16
I230 E4
I231 E4
I232 E4
I233 E4
I236 E15
I238 J4
I239 K4
I240 K8
I241 K9
I242 A6
I243 A7
I244 L8
I245 A4
I246 A9
I247 B7
I248 A6
I249 B9
I250 B4
I251 B7
I252 B9
I253 C9
I254 C7
I255 D2
I256 D2
I257 J4
I258 J4
I259 J10
I260 J10
I261 J10
I262 J10
I263 K8
I264 L3
I265 A3
I266 A2
I267 B3
I268 K6
I269 K7
I270 K7
I271 K8
4215 4214
I271
I269
I270
4212
I268
4213
2206
DLW21S
1216
4211
4210
2205
1215
DLW21S
I266
I267
I265
3276
560R
560R
3275
3274
10K
10K
3273
7214
BC847BW
7213-6
74LVC04APW
13
714
12
11
714
10
14
8
7213-5
74LVC04APW
7213-4
74LVC04APW
9
7
7213-3
74LVC04APW
5
714
6
74LVC04APW
3
714
4
714
2
7213-2
7213-1
74LVC04APW
1
4208
4209
BC847BW
7206
2298
100n
100n
2207
100u 16V16V100u
2208 2209
4207
I264
22R
3267
3272
150R
12
3266
22R
4205
4206
147
132
62
205
204
180
181
182
54
75
97
120
137
161
20
73
99
110
135
72
98
108
134
146
175
185
174
184
13
28
85
12
27
53
74
96
119
136
160
19
50
49
48
45
44
43
42
41
40
157
188
189
190
55
130
63
86
57
58
51
196
197
198
199
183
191
200201
2
38 39
148
145
144
207
202
208
3
203
206
1
94
93
92
91
90
152
89
88
151
150
149
107
106
105
104
153
103
102
101
100
95
114
113
111
155
154
143
142
141
140
139
138
124
123
125
126
122
121
118
117
116
115
87
173
172
171
170
60
59
56
47 46
52
30
29
26
23
6
4
5
156
133
109
14
11
35
10
9
8
7
34
33
32
31
162
37
36
25
24
22
21
18
17
16
15
76
128
127
192
131
112
61
129169
163
194
179
167
164
83
82
81
80
79
78
77
84
168
195
166
165
177
186
193
178
176
187
64
65
66
67
68
69
70
71
158
159
VIDEO PROCESSOR
SVP CX32
7202
22R
3271-4
45
22R
3271-3
36
22R
3271-2
27
18
5
22R3271-1
22R
3268-4
4
3268-3
22R
36
3268-2
22R
27
18
3265-4
45
3268-1 22R
36
22R
7
3265-3
22R
3265-2
22R
2
18
22R
3264-4
45
3265-1 22R
36
3264-2
27
22R
3264-3
18
22R
22R3264-1
3263-4
22R
45
3263-3
22R
36
3263-2
27
18
22R
45
3263-1 22R
22R
3262-4
22R
3262-3
36
27
18
22R
3262-2
3261-4
22R
45
22R3262-1
36
7
3261-3
22R
3261-2
22R
2
3261-1 22R
18
45
22R
3260-3
36
22R
3260-4
27
18
22R
3260-2
22R3260-1
2295 100n
100n2296
2229
5212
60R
+3V3_SW
22u
6.3V
28
41
54
6
12
46
52
16
36
40
18
1
14
27
3
9
43
49
5
7
8
10
11
13
42
44
39
15
37
38
19
2
4
45
47
48
50
51
53
25
26
29
30
31
32
33
34
20
21
17
1M X 16 X 4
23
24
22
35
41
54
6
12
46
52
16
7205
IS42S16400D-6TL
Φ
DRAM
18
1
14
27
3
9
43
49
28
7
8
10
11
13
42
44
39
15
36
40
19
2
4
45
47
48
50
51
53
5
29
30
31
32
33
34
20
21
17
37
38
7204
IS42S16400D-6TL
Φ
23
24
22
35
25
26
13
714
12
DRAM
1M X 16 X 4
10
74LCX14T
7211-6
74LCX14T
11
714
+5V_SW
7211-5
+5V_SW
3257
4K7
+3V3_SW
4K7
3258
2294
100n
22R
22R
3250
3254
22R
3256
22R
3255
22R
3253
22R
3251
7211-4
9
714
8
714
6
74LCX14T
74LCX14T
7211-3
5
74LCX14T
7211-2
3
714
4
1
714
2
+5V_STANDBY
74LCX14T
7211-1
I263
I261
I262
I260
I258
I259
I257
I256
I255
I236
I253
60R
5227
10u
2293
I252
5225
60R
2291
10u
60R
5222
I249
10u
2287
I248
10u
2288
60R
5221
100R3247
100R3246
8
9
32 33
34 35
36 37
27
28
29
3
30
31
4
5
6
7
18
19
2
20
21
22
23
24
25
26
1G50
1
10
11
12
13
14
15
16
17
1214
DLW21S DLW21S
1213 1212
DLW21S DLW21S
1211 1210
DLW21S
F217
F218
F230
F229
2285
100p
100p
2283
9
31
32
27
28
29
3
30
4
5
6
7
8
18
19
2
20
21
22
23
24
25
26
1
10
11
12
13
14
15
16
17
0-1453230-3
1G51
VDISP
F228
F227
F226
F225
F223
F224
F222
F221
F219
F220
I215
100R
3238
7210
SI4835BDY
4K7
2263
100p
3224
I211
4203
4204
+5V_STANDBY
F213
I225
I216
I220
100R
3235
3233
100R
3227
100R
6201
SML-310
1K0
F210
3210
220R
5217
5211
220R
5215
220R
2210
100n
SI3441BDV
+3V3_SW
7207
3225
4K7
4K7
3223
2264
2265
100p
F212
100p
F214
VDISP
F215
100p
2262
I224
3226
4K7
1u0
2248
47R
3216
+12V_DISP
BZX384-C5V6
6202
PDTC114ET
7208
3217
47K
3213
47K
150R
3232
150R3229
3228 150R
3231 150R
150R3230
3240
150R
I213
F211
F231
I239
I218
I240
I217
I241
I250
I244
I242I245
I251
I254
I247
I246
I243
I238
I233
I231
I232
I230
I214
F232
5
I210
100R
3202-4
4
3202-3
100R36
3202-2 100R
27
3202-1 100R18
+3V3_SW
3204-4
220R45
3204-3
36
220R
27
220R
18
3204-2
220R3204-1
220R
3203-4
45
3203-3
36
27
220R
18
3203-2 220R
45
3203-1 220R
6
100R
3201-4
3201-3
100R3
3201-2 100R
27
100R183201-1
5214 60R
10u
2281
+3V3_SW
+3V3_SW
10u
2280
+1V8S_SW
5220
60R
2282
10u
14M31818
1201
+3V3_SW
4K7
3221
3222
4K7
3219
3220
+3V3_SW
+3V3_SW
+3V3_SW
5213
60R
+1V8S_SW
60R
5210
30R
5216
+3V3_SW
+1V8S_SW
22u
2278
22u
2297
6.3V
100n2223
2224 100n
100n2227
2226 100n
100n2225
2228 100n
60R
5228
100n2217
100n2218
2221 100n
100n
2219 100n
2220
100n2222
10K
3245
3211
100R
1K0
3215
3212
100R
2n72276
2286
10u
22R
3248
2279
2275
2n7
10u
22R
3244
5219
60R
2284
10u
10u
2289
5223
60R
5218
60R
2236
10u
10u2230
60R
5226
2292
10u
5224
60R
10u
2290
2211 10u
100n2212
2215
2213 100n
100n
100n2214
2232
100n
100n
2231
2237 100n
2238
100n
100n
2241
100n2240
2239 100n
100n2244
2243 100n
100n2242
4K7
3242
220R
3241
100R
3243
7203
BC847BW
100n
2245
100n
2266
100n
2270
2269
100n
2274
100n
100n
2271
100n
2272
10u
2216
2235 100n
100n2234
2233 100n
20p2246
20p2247
100R
3239
2268 100n
2258
100n2267
100n
100n2261
2260
2259
100n
2277
100n
100n
2257 100n
2256
2255 100n
100n
100n2254
2253 100n
100n2252
2251 100n
100n2273
100n2250
ESD_INT
ESD_RST
DQ(24)
DQ(25)
DQ(26)
DQ(27)
DQ(28)
DQ(29)
DQ(30)
DQ(31)
CX_DQM(1)
CX_DQM(0)
FRONT_C
FRONT_Y_CVBS
DQ(2)
DQ(1)
DQ(0)
DQ(5)
DQ(6)
DQ(7)
DQ(10)
DQ(11)
DQ(12)
DQ(13)
DQ(14)
DQ(15)
DQ(8)
DQ(9)
DQ(16)
DQ(17)
DQ(18)
DQ(19)
DQ(20)
DQ(21)
DQ(22)
DQ(23)
CX_MA(0)
CX_MA(1)
CX_MA(10)
CX_MA(2)
CX_MA(3)
CX_MA(4)
CX_MA(5)
CX_MA(6)
CX_MA(7)
CX_MA(8)
CX_MA(9)
CX_MA(11)
CX_MCLK
CX_CLKE
CX_CS0#
CX_WE#
CX_CAS#
CX_RAS#
DQ(4)
DQ(3)
CX_BA0
CX_BA1
CX_AVDD_ADC2
CX_AVDD_ADC3
CX_AVDD_ADC4
CX_AVDD_ADC2
CX_AVDD_ADC3
CX_AVDD_ADC4
HDMI_Y(0:7)
HDMI_Cb(0:7)
HDMI_Cr(0:7)
TXDn1
BOLT_ON_SCL
BOLT_ON_SDA
CX_AVDD3_ADC2
CX_AVDD3_ADC2
TXDn
TXDp1
TXCLKn1
TXCLKp
CTRL_DISP4
TXCLKn
CTRL_DISP3
TXDp
TXCp1
TXCLKp1
TXCn
TXBn
CTRL_DISP1
TXBn1
TXCp
TXAn1
TXBp
CTRL_DISP2
TXBp1
TXCn1
TXAp1
TXAn
CTRL_DISP1_up
CTRL_DISP4_up
STANDBYn
TXAp
LCD_PWR_ON
CTRL_DISP1
CTRL_DISP3
CTRL_DISP4
CTRL_DISP2
SC1_FBL_IN
ALE_EMU
VGA_H
VGA_V
FRONT_C_IN_T
TXCLKp
TXCn
TXCp
TXDn
TXDp
CX_AVDD_ADC1
TXAn
TXAp
TXBn
TXBp
CX_MA(11)
CX_BA1
CX_BA0
CX_BA0
CVBS_RF
DQ(27)
DQ(26)
DQ(25)
DQ(24)
CX_MCLK
CX_CLKE
CX_CS0#
CX_WE#
CX_CAS#
CX_RAS#
DQ(7)
DQ(6)
DQ(5)
DQ(4)
DQ(3)
DQ(2)
DQ(1)
DQ(0)
DQ(23)
DQ(22)
DQ(21)
DQ(20)
DQ(19)
DQ(18)
DQ(17)
DQ(16)
DQ(31)
DQ(30)
DQ(29)
DQ(28) CX_DQM(2)
CX_DQM(3)
HDMI_H
HDMI_V
HDMI_VCLK
HDMI_DE
DQ(0:31)
DQ(0:31)
DQ(15)
DQ(14)
DQ(13)
DQ(12)
DQ(11)
DQ(10)
DQ(9)
DQ(8)
CX_MA(0)
CX_MA(1)
CX_MA(10)
CX_MA(2)
CX_MA(3)
CX_MA(4)
CX_MA(5)
CX_MA(6)
CX_MA(7)
CX_MA(8)
CX_MA(9)
CX_BA1
CX_DQM(0)
CX_DQM(1)
CX_CS0#
CX_RAS#
CX_CAS#
CX_WE#
CX_MCLK
CX_CLKE
CX_AVDD3_BG_ASS
CX_AVDD3_OUTBUF
CX_AVDD3_ADC1
CX_AVDD_ADC1
CX_PAVDD
CX_PAVDD1
CX_PAVDD2
CX_PDVDD
IIC_SCL
IIC_SDA
CX_MA(0)
CX_MA(0:11)
CX_MA(1)
CX_MA(2)
CX_MA(3)
CX_MA(4)
CX_MA(5)
CX_MA(6)
CX_MA(7)
CX_MA(8)
CX_MA(9)
CX_MA(10)
CX_MA(11)
CX_DQM(0:3)
CX_DQM(2)
CX_DQM(3)
CX_PAVDD1
CX_PAVDD2
A(0:7)
AD(0:7)
CX_AVDD3_ADC1
CX_AVDD3_OUTBUF
CX_AVDD3_BG_ASS
CX_PDVDD
CX_PAVDD
INT
RST_H
BL_ADJUST
AD(3)
AD(4)
AD(5)
AD(6)
AD(7)
WR
RD
AD(0)
AD(1)
AD(2)
A(0)
A(1)
A(2)
A(3)
A(4)
A(5)
A(6)
A(7)
TXCLKn
SC1_RF_OUT_CVBS
SC2_CVBS_MON_OUT
SC1_B_IN
SC1_CVBS_IN
IBO_B_IN
IBO_CVBS_IN
SC2_C_IN
HD_PR_IN
SC1_R_IN
SC2_Y_CVBS_IN
IBO_R_IN
HD_PB_IN
HD_Y_IN
SC1_G_IN
FRONT_Y_CVBS_IN_T
IBO_G_IN
HDMI_Y(2)
HDMI_Cr(4)
HDMI_Cr(5)
HDMI_Cr(6)
HDMI_Cr(7)
HDMI_Y(3)
HDMI_Y(4)
HDMI_Y(5)
HDMI_Y(6)
HDMI_Y(7)
HDMI_Cb(0)
HDMI_Cb(1)
PC_VGA_H
PC_VGA_V
CS
HDMI_Y(0)
HDMI_Y(1)
HDMI_Cb(2)
HDMI_Cb(3)
HDMI_Cb(4)
HDMI_Cb(5)
HDMI_Cb(6)
HDMI_Cb(7)
HDMI_Cr(0)
HDMI_Cr(1)
HDMI_Cr(2)
HDMI_Cr(3)
B04B B04B
3139 123 6261.1
G_16860_009.eps
250107
Item
EU LCD
EU PDP
EU/US LCD-iTV
AP/CH/LT LCD
AP/CH/LT PDP
Description
1217 FIL CM SM 50V 100MHZ 67R R
1218 FIL CM SM 50V 100MHZ 67R R
2207 CER2 0603 X7R 16V 100N COL
2208 ELCAP SM SEV 25V 100U PM20 R
ELCAP SM 16V 100U PM20 COL R
2209 ELCAP SM SEV 25V 100U PM20 R
ELCAP SM 16V 100U PM20 COL R
2210 CER2 0603 X7R 16V 100N COL
2248 CER2 0805 X7R 16V 1U PM10 R
2267 CER2 0603 X7R 16V 100N COL
2294 CER2 0603 X7R 16V 100N COL
3213 RST SM 0603 47K PM5 COL
3216 RST SM 0603 47R PM5 COL
3217 RST SM 0603 47K PM5 COL
3227 RST SM 0603 100R PM5 COL
3233 RST SM 0603 100R PM5 COL
3235 RST SM 0603 100R PM5 COL
3238 RST SM 0603 100R PM5 COL
3241 RST SM 0603 220R PM5 COL
3242 RST SM 0603 4K7 PM5 COL
3243 RST SM 0603 100R PM5 COL
3245 RST SM 0603 10K PM5 COL
3246 RST SM 0603 100R PM5 COL
3247 RST SM 0603 100R PM5 COL
3250 RST SM 0603 22R PM5 COL
3253 RST SM 0603 22R PM5 COL
3254 RST SM 0603 22R PM5 COL
3256 RST SM 0603 22R PM5 COL
3257 RST SM 0603 10K PM5 COL
3258 RST SM 0603 10K PM5 COL
4204 RST SM 0603 JUMP. 0R05 COL
4205 RST SM 0603 JUMP. 0R05 COL
4206 RST SM 0603 JUMP. 0R05 COL
4208 RST SM 0603 JUMP. 0R05 COL
4209 RST SM 0603 JUMP. 0R05 COL
5215 IND FXD 0805 EMI 100MHZ 220R R
5217 IND FXD 0805 EMI 100MHZ 220R R
6202 DIO REG SM BZX384-C5V6 COL R
7203 TRA SIG SM BC847BW (COL) R
7206 TRA SIG SM BC847BW (COL) R
7208 TRA SIG SM PDTC114ET (COL) R
7210
E3(VISH)R
7211 IC SM 74LCX14T (COL) R

Table of Contents

Other manuals for Philips 19PFL5522D

Related product manuals