EasyManua.ls Logo

Philips L04E - Block Diagram IBO Zapper

Philips L04E
91 pages
Print Icon
To Next Page IconTo Next Page
To Next Page IconTo Next Page
To Previous Page IconTo Previous Page
To Previous Page IconTo Previous Page
Loading...
22L04E AB 6.
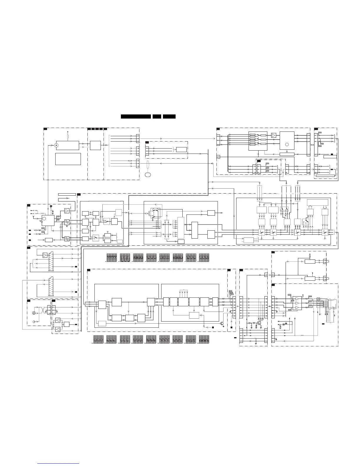
Block Diagrams, Testpoint Overviews, and Waveforms
Block Diagram Video
E_14970_028.eps
080904
HERCULES
CRT INTERFACE PANEL
A4
HERCULES
A4
A4
CRT
B1
A5
SCAVEM
B2
A2
7200-E (RGB PROCESSING + CATHODE CALIBRATION)
CONN.
A5
A5
LTI/CTI
H
1212
1206
1212
12061215
4
6
8
INTF_Y/GREEN_IN
INTF_Pb/BLUE_IN
INTF_Pr/RED_IN
10
1
3
SANDCASTLE
E
D
6
4
6
8
10
1
3
1
3
6
INTF_FBL
Y_2
YOU T
UOUT
VOUT
SC
YIN
UIN
VIN
Pb_2
Pr_2
19
17
16
1
102,7,12
SANDCASTLE
SDA
SCL
SDA
SCL
INTF_FBL
7630
7635
7636
FRONT END
K6
ANALOG BACK END
K5
A5
K1 K2 K3 K4
13311204
1
42
43
44
2
3
5
3334
3336
3332
1381
6383
1
2
ROTATION
COIL
(OPTIONAL)
1351
BC_INFO
SVM
ROT
B
B
G
R
BC-INFO
SVM
VSVM
+200V
FILAMENT
EHT-b
ROT
G
R
F341
F333
F331
F338
F339
F241
F240
F242
4
7
6
1
2
3
5
4
7
6
7330
7610
TDA9178T
LTI/CTI
PROC.
7611
MM1389XFBE
PULSE FORMER
3
1
2
7
5
9
8
B
G
R
+200VA
ROT
+200VA
+200V
VSVM
FILAMENT
DINT
ROTATION
OUTPUT
3351
34016401
6403
6404
6405
2401 24036402
6405
3226
3227
3228
2351
1
2
3
4
5
B
G
R
CRT
25kV
FOCUS
DEFLECTION
FROM DEFLECTION
A2
TO 1401
DEFLECTION
EHT
VG2
11
6
8
10 9 5 7 1
1332
AQUADAG
A2 A4
F332
1361
1
2
SCAVEM
COIL
(OPTIONAL)
SVM
59
SCAVEM
OUTPUT
VSVM
5352
FILAMENT
1465
1
2
3
5
4
7
6
VSVM
+200V
FILAMENT
EHT-b
13831405
YUV
Y
Pr
Pb
DAC
DIGITAL SIGNAL PROC.
- 4:3 LINEAR/NON-LINEAR SCALING
- DOUBLE WINDOW PROC.
ADC
YUV
TO
DVD
DVD
TO
YUV
RGB
RGB
TO
DVD
RGB2/
RGB3
SELECTION
(RGB/YPrPb/YUV
INPUT SWITCHING)
DVD
TO
DVD
YPrPb2/
YPrPb3
SELECTION
DVD
6
8
9
6
1
16
5
3
1212
1
2
3
1216
1
1214
1
3
5
1212
1
2
3
INTF_Pr/RED_IN
55
INTF_Y_OUT
54
INTF_U-OUT
58
INTF_Pb/BLUE_IN
57
INTF_Y/GREE_IN
INTF_CVBS_OUT
N.C.
65
49
SC1_RED_IN
50
SC1_GREEN_IN
51
SC1_BLUE_IN
53
INTF_V-OUT
3-STATE
14
11
3-STATE
8
9
3-STATE
R
G
B
INTF_FBL
INTF_V_OUT
INTF_U_OUT
INTF_Y_OUT
INTF_Y_OUT
INTF_U_OUT
INTF_V_OUT
INTF_Y
INTF_Pb
INTF_Pr
45
46
64
FROM µP PART
B3
R_OSD
G_OSD
B_OSD
FBL
BEAM
CURRENT
LIM.
1431
1
2
3
5
4
7
6
IBLACK
ROUT
GOUT
BOUT
SVM
ROT
YUV
RGB
DVD
SELECTION
LOGIC
Yint
Uint
Vint
YintYint
CHROMA/CVBS
C
CVBS/Y
Uint
Vint
INSSW352
7200-C
7200-B (CVBS I/O + FILTERS + COLOUR DECODING)
7200-A (IF)
PAL, NTSC
SECAM
DECODER
COMB
FILTER
&TRAP
SWITCH
VIDEO
IDENT
70
77
74
71
78
SC2_CHROMA_IN
CVBS1
SIDE_Y/CVBS_IN
SC2_Y/CVBS_IN
81
SIDE_CHROMA_IN
INPUT
SWITCH
OUTPUT
SWITCH
R_Y
G_Y
B_Y
SCAVEM
PROC.
7200-D (YUV PROCESSING)
Y
Pr
Pb
I002
I001
F002
F004
SDA
SCL
TO
AUDI O
PAR T
SSIF
50019003
FM-RADIO
TUNER
+
TV TUNER
3001
3000
6001
BZX79-C33
TUNER IF
A8
REAR I/O SCART (VIDEO PART)
D
SIDE AV
A5
CONNECTION
A4
A4
A2
1000
6 7
98
1
11
SSIF
VIF_1
VIF_2
SIF1
SIF2
RF_AGC
+5VS
VT_SUPPLY
VT
AGC
5
SEL-LLPIM
A4
4
IF
FM
10
7001
7003
FILTER
SELECTION
1002
1003
1004
ERR
10
ERR
15
TV
FM
9002
+5V
105
104
98
100
99
PLL
PLL
FM/QSS
AM
VCO
VIDEO
DEMOD
SOUND
TRAP
TUNER IF
AGC
VIDEO
IF
PHASE
DISC
AUDIO IF
QSS/AM
SOUND
MIXER
AM
SOUND
DET.
TO
AUDIO
PAR T
See block
diagram
AUDIO
SWITCH
86
1
5
4
32
SVHS
Y
C
VIDEO
IN
1207
7
6
5
1252
7
6
5
CLAMP
CLAMP
CLAMP
CLAMP
CLAMP
CLAMP
SC1_FBL
SC1_FBL
SC1_R/G/B
CATHODE
CALIBRATION
BRIGHTNESS
+
PEAK WHITE
LIM.
OSD
INSERTION
OUTPUT
STAGE
CLAMP
+
MUTE
BLUE
STRETCH
&
CONTRAST
RGB
ADDER
MATRIXSATURATION
TINT CONTROL
SKINTONE
WHITE/BLACK
STRETCH
GAMMA COR.
PEAKING
1351
1351
1
2
3
4
5
1351
1
2
3
4
5
1401 1466
BCL
7308
A4
A4
A4
SEE BLOCK DIAGRAM CONTROL
A4
SEE BLOCK DIAGRAM
DEFLECTION
A4
SW_SC2_CVBS
SC1_CVBS_OUT
SC1_CVBS_IN
SC1-RED-IN
SC1-GREEN-IN
SC1-BLUE-IN
SCART 1
20
16
8
21
19
15
11
7
7701
7607
7606
SC2-CHROMA-IN
SC2-CVBS-OUT
SCART 2
20
16
8
21
19
15
11
7
SEE BLOCK DIAGRAM AUDIO
FOR COMPLETE
BLOCK DIAGRAM
SEE BLOCK DIAGRAM
IBO-ZAPPER
SEE
BLOCK DIAGRAM
AUDIO
F224
F216
F218
F217
F225
F226
11
1600
TD1316L
DIGITAL
TUNER
DIGITAL
AUDIO AND
VIDEO
PROCESSING
15
14
IF1
IF2
5602
RF-IN
+5VClean
CLAMPCTL
N.C.
SELECT
SIDE_CHROMA_IN
SIDE_Y/CVBS_IN
INTF_CVBS_IN
SEL_SC2_INTF
SW_SC2_CVBS
SC1-FBL
SC1-STATUS
SC1-CVBS-OUT
SC1-CVBS-IN
SC1-R/G/B
SC2-STATUS/ITV_MSG
SC2-CHROMA-IN
SC2-Y/CVBS-IN
ERR
17,18
IBO-ZAPPER
1351
1
3
5
1212
GREEN/Y
BLUE/U
RED/V
R1
L1
CVBS_VCR
I2C_TV_SDA
I2C_TV_SCL
TV_IRQ
1351
1
3
5
1219
1
3
5
1219
1351
1
2
3
1206
INTF_R_IN
INTF_L_IN
INTF_CVBS_IN
F201 2V / div DC
F203 2V / div DC
500mV / div DC
10ms / div
1V / div DC
20µs / div
F205
F206
500mV / div DC
20µs / div
500mV / div DC
20µs / div
500mV / div DC
20µs / div
F240 F241 F242
500mV / div DC
20µs / div
500mV / div DC
20µs / div
500mV / div DC
20µs / div
F331 F332 F333
F216 F217 F218
F224 F225 F226
F338 F339 F341
1V / div DC
20us / div
1V / div DC
20us / div
1V / div DC
20us / div
500mV / div DC
20us / div
500mV / div DC
20us / div
500mV / div DC
20us / div
50V / div DC
20us / div
50V / div DC
20us / div
50V / div DC
20us / div

Table of Contents

Related product manuals