EasyManua.ls Logo

Philips L04E - 9 Circuit Descriptions

Philips L04E
91 pages
Print Icon
To Next Page IconTo Next Page
To Next Page IconTo Next Page
To Previous Page IconTo Previous Page
To Previous Page IconTo Previous Page
Loading...
Circuit Descriptions, List of Abbreviations, and IC Data Sheets
EN 79L04E AB 9.
9. Circuit Descriptions, List of Abbreviations, and IC Data Sheets
Index of this chapter:
1. Introduction
2. Block Diagram
3. PNx83xx MOJO
4. Front End
5. Back End
6. IBOLink Interface
7. Control Interface
8. UART Interface
9. Power Supply
10. Abbreviations
11. IC Data Sheets
Notes:
In this paragraph, only components and circuits of the “IBO
Zapper” module (Intelligent Bolt On) are described. For the
other circuit descriptions, see the L04E AA manual (3122
785 14480).
Only new circuits are described here. For the other circuit
descriptions, see the A10E BB manual (3122 785 13940).
9.1 Introduction
The “IBO Zapper” module is meant to receive, process, and
transfer Digital Video Broadcasting-Terrestrial (DVB-T) signals
to the internal TV interface for audio, video, and control. The
“IBO Zapper” is intended for use in combination with an
analogue TV chassis.
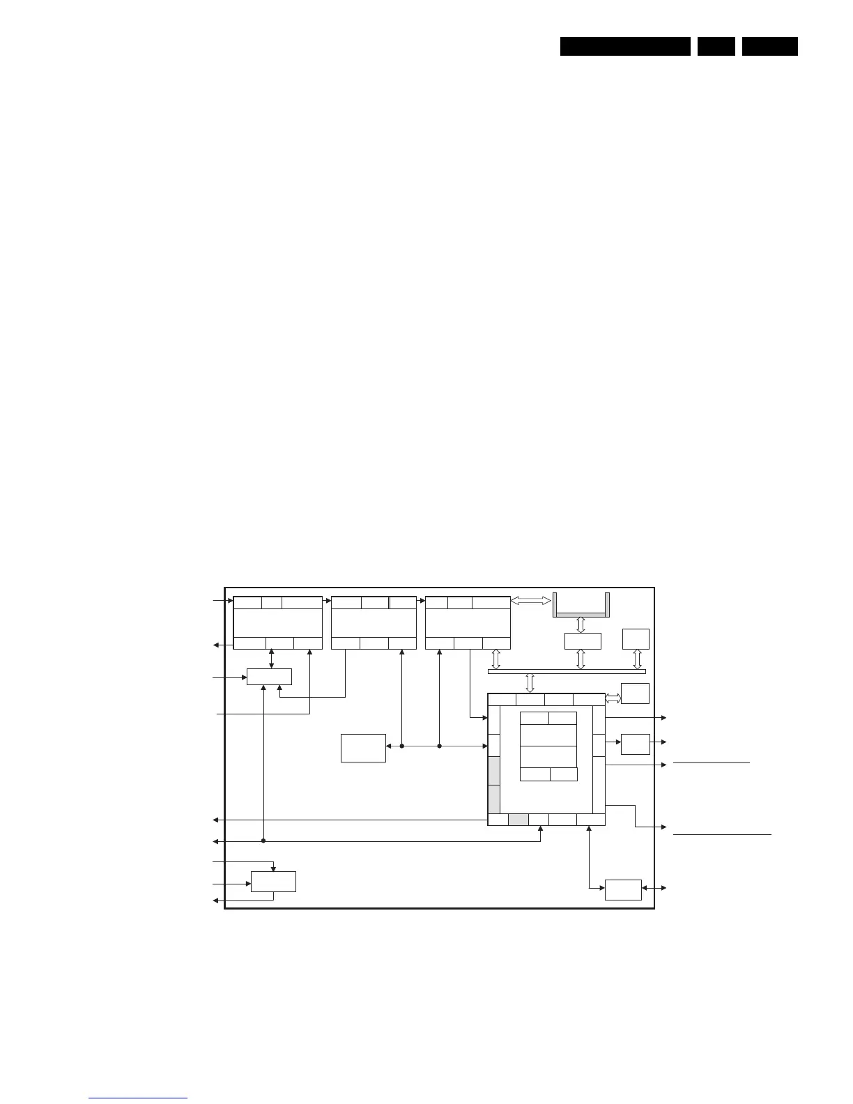
9.2 Blockdiagram
Figure 9-1 Block Diagram IBO Zapper Module
GAT
JE
UIM
L
ATX
MA
RDS
RI BSU 1C2I T
E
SER 232SR
XU
M
E
D
R
C
S
ED
o
i
d
uA-1
G
E
P
M
r
ed
oc
ed
o
e
di
V
-
2
G
E
P
M
redoced
UPC
OJOM
xx38xnp
TS inI2C0SmCard1SmCard0
SPDIF I2S Analog Video Out
MA
RDS
BM
6
1
H
S
AL
F
BM 4
ni FH
FI
gola
n
a C2I CGA
RENUT dirbyh
6131DT
FI latigid ni
F
I
ren
u
t C2I CGA
MDFOC
64001
tuo
S
T
C
2I
n
i ST
C
2I
tuo
S
T
L
ORT
NOC
F/I
UP
C
+
h
c
t
a
L
r
e
vi
e
c
s
n
ar
T
:
)V
T(
y
r
a
mi
rp
c
n
y
s
S
BVC
+
)4
:4:
4(
B
GR
ro
)
4:
4
:
4
(
rPbP
Y
:)RC
V( yrad
n
u
ce
s
S
B
V
C
oi
d
ua lati
gi
d
o
i
dua
CAD
R,L o
i
d
u
a
golan
a
232S
R/
LT
T
2
32S
R
CGA
C
2
I
MORPEE
)s
g
n
it
tes resu(
USP
V21
hctiw
s A/D
GATJGATJ
.I.C
A0070VTS
DSO
-AICM
C
P
r
o
tce
nn
oc
FEH+XUM
C2I
V
5
QRI
FI golana
ni FH
eludom reppaZOBI
f
f
O
/n
O
r
ewo
P
E_14970_036.eps
080904

Table of Contents

Related product manuals