EasyManua.ls Logo

Philips L04E - Top Control Panel (PV2)

Philips L04E
91 pages
Print Icon
To Next Page IconTo Next Page
To Next Page IconTo Next Page
To Previous Page IconTo Previous Page
To Previous Page IconTo Previous Page
Loading...
Circuit Diagrams and PWB Layouts
53L04E AB 7.
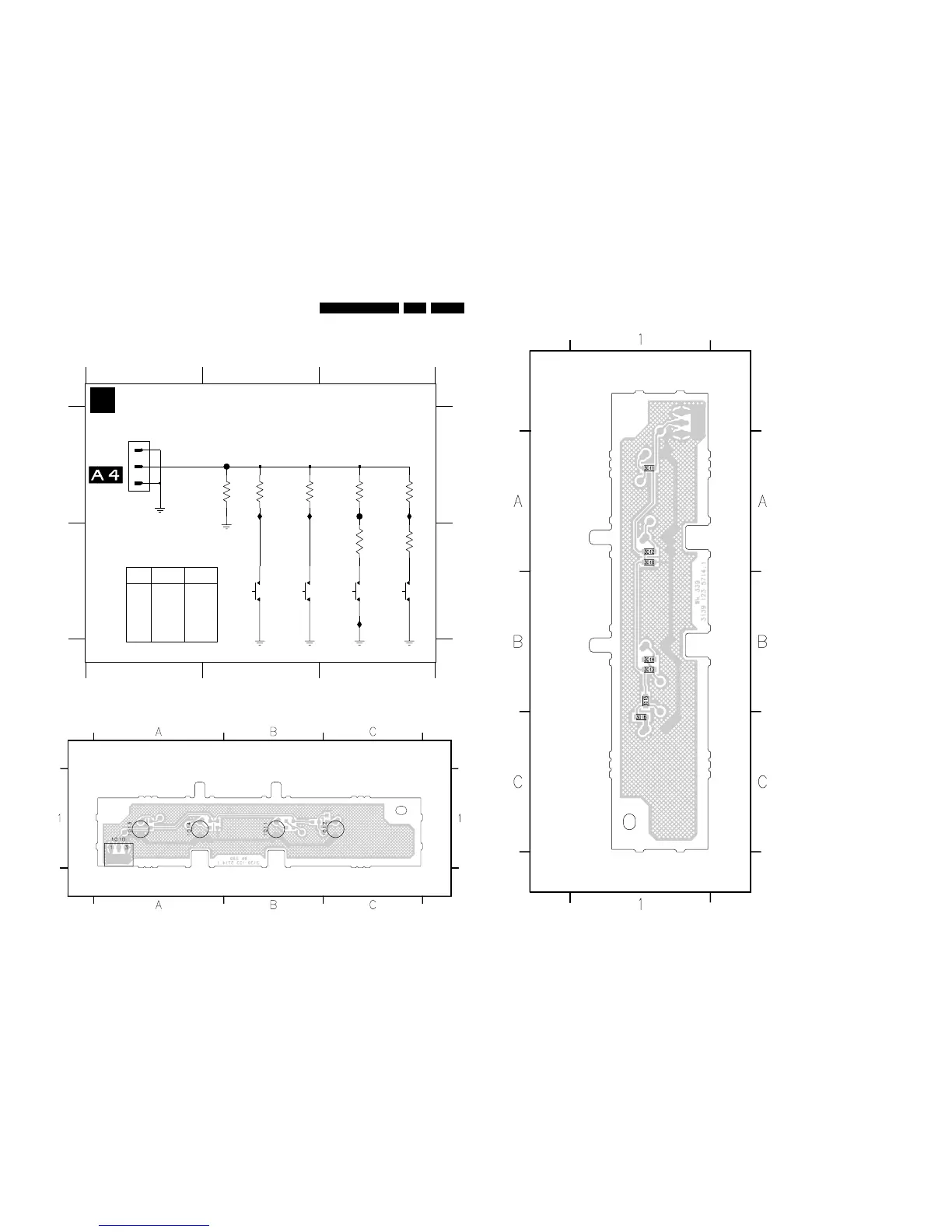
Top Control Panel (PV2)
Layout Top Control Panel (PV2) (Top Side)
3016
3012
3013
3014
3015
volume-
OF
JMP
3011
L03SS
1K8
820R
FROM 1682
ITEM
volume+
JMP
123
123
A
B
A
B
1010 A1
1011 B3
1012 B3
1013 B2
1014 B2
3010 A2
200R
120R
150R
390R
200R
430R
820R
*
TOP CONTROL (PV2)
RES
*
2K2
**
*
3011 A2
3012 A2
3013 A3
3014 B3
3015 A3
3016 B3
F011 A2
F012 A3
I011 A2
I013 A3
I017 B3
I018 A3
*
channel+
channel-
L04
KEY_PROTN
SKQNAB
1013
3016
3014
3010
1010
1
2
3
F011
I017
1012
SKQNAB
1014
SKQNAB
3013
3011
F012
SKQNAB
1011
3012
I018I011
3015
I013
E
E_14480_031.eps
190204
3139 123 5714.1
E_14480_032.eps
190204
3139 123 5714.1
1010 A1
1011 B1
1012 C1
1013 A1
1014 A1
Layout Top Control Panel (PV2) (Bottom Side)
E_14480_033.eps
100204
3139 123 5714.1
3010 A1
3011 A1
3012 A1
3013 B1
3014 B1
3015 B1
3016 C1

Table of Contents

Related product manuals