EasyManua.ls Logo

Philips L04E - CRT Panel

Philips L04E
91 pages
Print Icon
To Next Page IconTo Next Page
To Next Page IconTo Next Page
To Previous Page IconTo Previous Page
To Previous Page IconTo Previous Page
Loading...
44L04E AB 7.
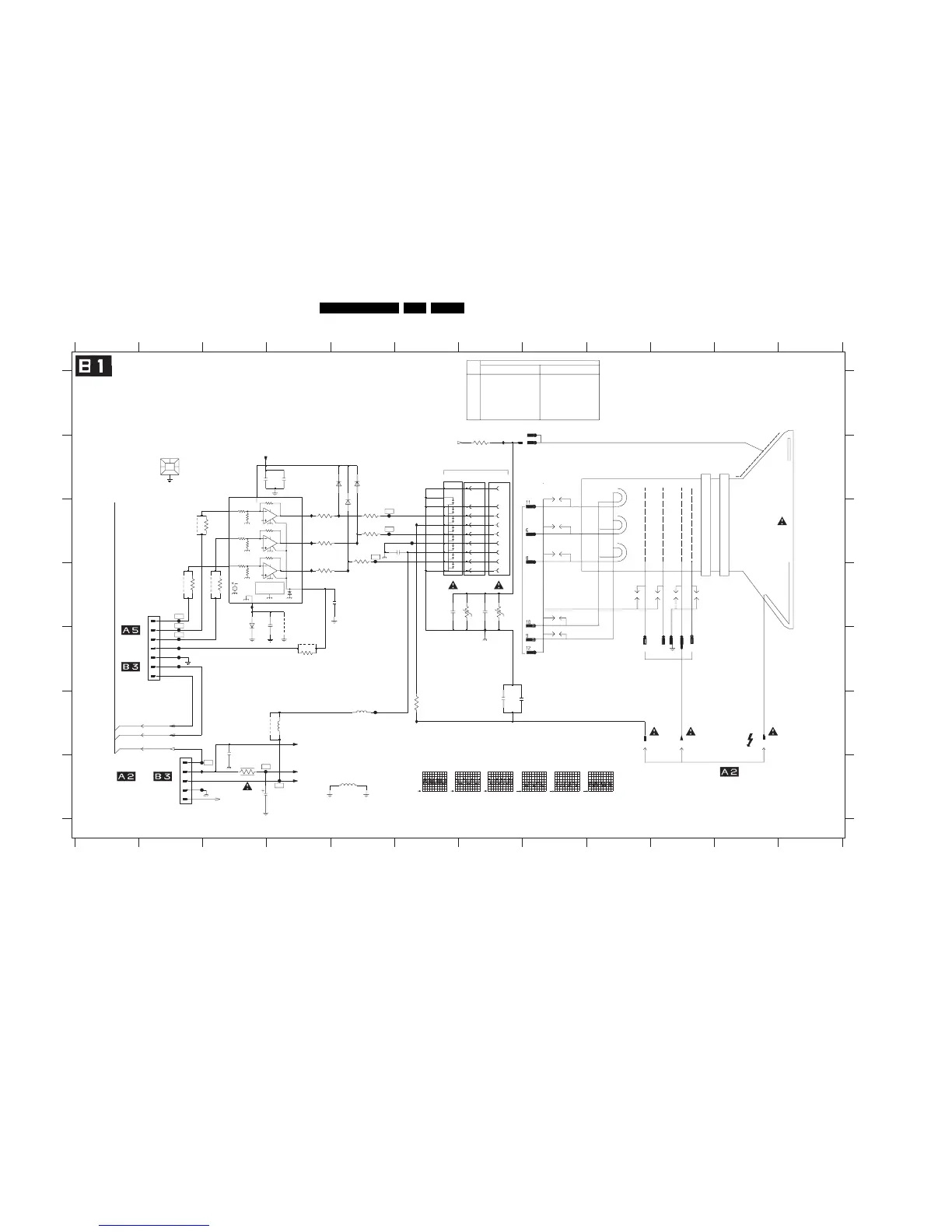
Circuit Diagrams and PWB Layouts
CRT Panel
3139 123 5889.3
E_14970_008.eps
090904
Blue
Green
Red
3k75
188k7
3k77
3k75
188k7
3k77
3k75
188k7
Vref
7V
PROTECTION
THERMAL
BC1
A1
Vref
Vdd
2.5V
3k77
A2
Vref
Vdd
BC2
A3
Vref
Vdd
BC3
OR
From 1431 of
CRT
INTERFACE PANEL
OR
From 1466 of
CRT
INTERFACE PANEL
CRT
5351
4337
1K
LINE + FRAME DEFLECTION
Deflection
R
V
7
10n
B
C
D
E
F
G
0330 B2
1254-A B7
1255 B6
1256-A B7
1331 D2
1332 B8
1351 G2
1352 F9
2330 B3
2331 D6
2332 C6
2333 D5
F353
2336
123456789
VG2
140V
6V
10 11 12
123456789101112
A
B
C
D
E
F
G
A
---
JMP
---
140V
---
---
10n
B2
1n5
CRT PANEL
2334 B4
2335 F3
2336 D4
2351 G4
2352 F7
2353 F7
2354 D7
3328 D2
3329 C3
3330 D3
3331 D4
3332 C5
3333 C4
3334 C5
3335 C4
3336 C5
3329
G
3330
3337
From 1401 of
Connectivities
3337 E4
3351 G3
3354 F6
3356 B7
3357 D7
3358 D7
4328 D2
4329 C2
4330 D3
4336 D4
4337 E4
5330 G5
5351 F4
5352 F5
6331 C5
6332 B5
6333 B5
6338 D3
7330 B3
9351 F4
F331 D2
F332 E2
F333 E2
F334 E2
F335 E2
IND FXD LAL04 A 22U PM10
1
---
---
JMP
140V
F336 E2
F338 C5
F339 C5
F340 C6
F341 C5
F351 G3
F352 G2
F353 G4
F354 G3
F356 F5
I330 C4
I331 C4
I332 D4
I333 C5
I334 C5
I335 D5
I336 C6
I337 D3
I351 G2
I353 F6
I355 E7
I357 B7
V
B
9351 JMP
*
B2
B2
*
*
*
*
ITEM
NOT USED
Line + Frame
3328
4330
RGB+DISPL-24WR.25.28BLD-EU
T0 CRT SOCKET
JMP
RGB+DISPL-29RF-EU &
RGB+DISPL-24WR.28.32WR-EU
WIRE
---
Features &
FROM LOT, MAIN CHASSIS
EHT
*
---
5
From 1204 of
2V5
---
JMP
---
---
---
FOCUS
CRT Sockets
4329
4328
RGB+DISPL-21RF.28WS-EU &
EUROPE
2V5
T0 CRT SOCKET
F331
JMP
1K
JMP
AQUADAG
1K
2V5
I332
9351
F340
I351
F333
G2
7
2332
4330
I355
4329
G2
7
H1
9
I331
7OUT3
6
Vdd
3n3
2353
7330
5BCI
GND
4
1IN1
2IN2
3IN3
9OUT1
8OUT2
GND
12
3331
100R
1331
1
2
3
4
5
6
7
100R
3333
F341
BAV21
6331
2334
3337
H2
10
2331
10n
3357
I335
6
CB
11
1K5
3354
CG
F352
BAV21
6332
100n
2330
F351
G1
5
3358
6338
F334
2335
6
7
8
9
1
1352
1255
10
11
12
4
5
F356
F336
F339
1
2
3
4
5
4336
3336
1351
3334
I334
1256-A
G3
1
1n
2333
100R
3351
I336
F338
I333
F335
10
F354
1332
H2
5352
CB
11
F332
27u
I353
I330
10u
2351
10n
2354
3335
100R
4328
BAV21
3356
10R
5351
6333
I337
H1
9
GND
12
CR
8
G1
5
4337
2352
680p
CG
6
5330
0330
MECHPART
CR
8
3332
G3
1254-A
1
100R3330
100R
3329
3328 100R
GND_CRT
I357
+200VA
+200VA
EHTb
EHTb
SVM
ROT
Filament
BC_INFO
VSVM
+200V
500mV / div DC
20µs / div
500mV / div DC
20µs / div
500mV / div DC
20µs / div
F331 F332 F333
F338 F339 F341
50V / div DC
20us / div
50V / div DC
20us / div
50V / div DC
20us / div

Table of Contents

Related product manuals