EasyManua.ls Logo

Philips L04E - Tuner if

Philips L04E
91 pages
Print Icon
To Next Page IconTo Next Page
To Next Page IconTo Next Page
To Previous Page IconTo Previous Page
To Previous Page IconTo Previous Page
Loading...
30L04E AB 7.
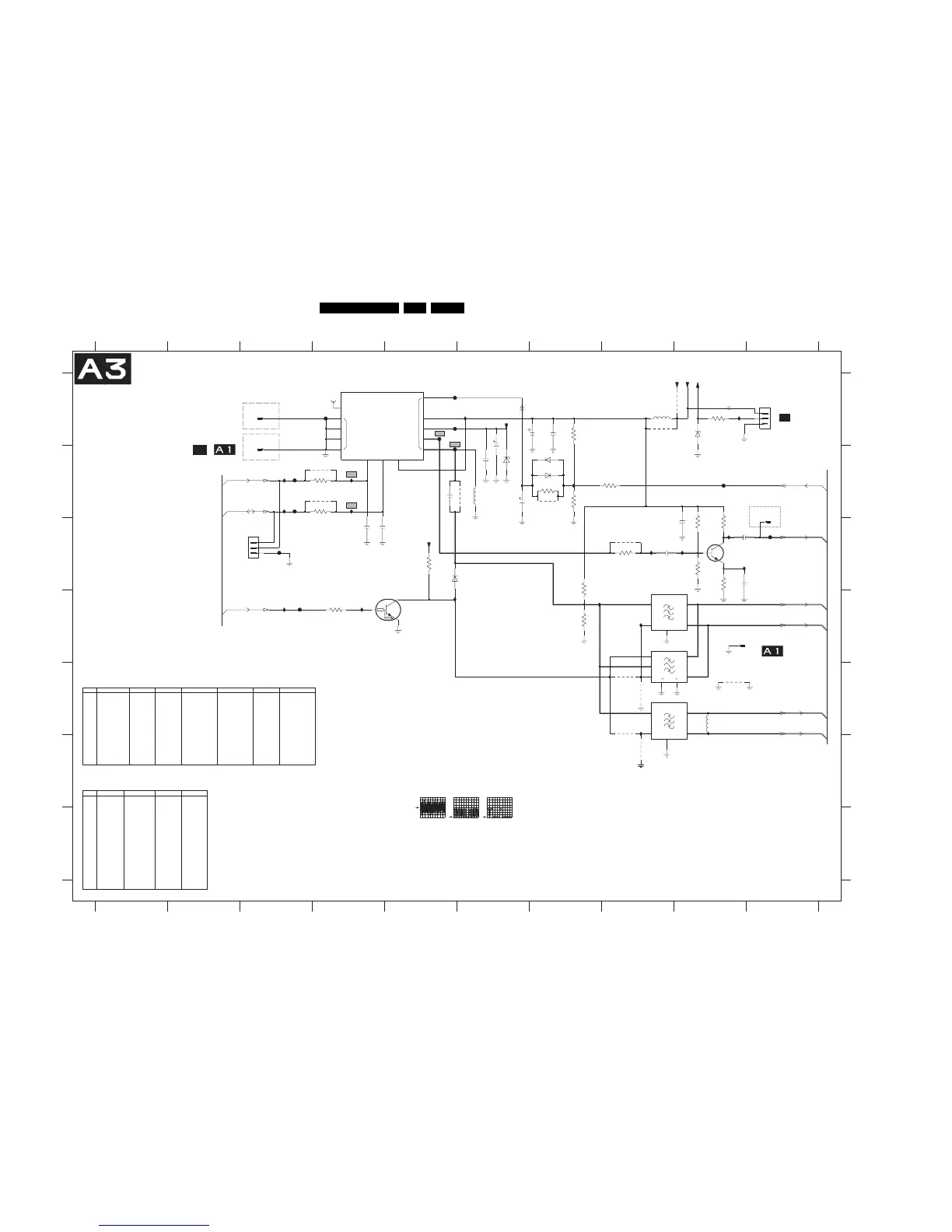
Circuit Diagrams and PWB Layouts
Mono Carrier: Tuner IF
To 1004
IBO-ZAPPER
K5
NC
MT
GND
E
F
G
1000 A4
1001 E8
1002 D8
1003 D8
1004 A10
1005 C3
*
TO 0282
for EMC
A4
RES
A4
12345678910
12
*
345678910
A
B
C
D
E
F
G
A
B
C
D
FOR EMC ONLY
A4
0V3
For Compair only
(For Lightning Protection)
1010 A3
1011 B3
1012 C10
1013 D10
2001 C4
2002 C4
2003 B5
2004 B6
2005 A6
2006 A6
2007 A7
2008 B6
2009 C9
2013 C9
2014 C8
A4
*
*
2016 C9
3000 B4
3001 B4
3002 B7
3003 A7
3004 B7
3005 B8
3006 D4
3007 D7
3008 C7
3009 C5
3010 C8
3014 C9
3016 C9
3018 C9
3019 C9
3020 A9
4.3V
A4
0V
4000 B4
4001 B4
4002 E8
4003 B6
4004 E8
4005 A8
4006 B7
4010 C8
4011 E8
4012 F8
4013 E9
5001 A8
5002 B6
5003 E9
6001 B6
6002 B7
6003 B7
6004 C5
6006 A9
7001 D4
7003 C9
9002 A9
F001 A5
F002 A5
F003 A5
5V
*
*
*
A4
0V
F004 B5
F005 A4
F006 B9
F007 B3
F008 B3
F009 D3
F010 C10
F011 C3
I001 B4
I002 B4
*
1V1
for ATSC
TO 1510 OF
OF
I003 C8
I004 C9
I005 D4
I006 D6
I007 C9
I008 D7
I009 D8
I010 E8
I011 B7
I012 C9
I013 A9
I014 B3
I015 B3
I016 A6
I017 D3
*
*
*
5V
*
4.9V
A4
POWER SUPPLY
TV TUNER
TUNER IF
A4
34V5
I008
FOR ITV ONLY
RES
RES
*
*
RES
RES
RES
4.3V
*
*
*
*
*
*
*
*
2008
*
*
*
*
*
A4
** *
*
F001
I005
3018
4010
1012
IFGND
9002
F007
GND_28
3004
47n
2004
2005
10u 50V
GND_28
I006
3010
2009
F004
100R
3005
I011
I014
F008
4000
I015
I017
2002
F009
4013
10
11
4
SCL
5
SDA
7
+5 ADC
83
AS
12
13
14
15
1
2
6
9
F003
1000
F010
IFGND
1u8
5003
F006
GND_28
7003
2001
I010
3006
2003
2016
3001
4012
3009
6004
I003
2013
3008
2006
470u
GND_28
F002
1003
38
1
IN
2
ING
4
O1
5
O2
10
SWI
1011
I016
2014
2007
100n
F011
I001
5002
4001
3016
1K5
3019
3003
I009
I007
3007
6001
BZX79-C33
4011
6006
BZX79-B8V2
3000
4
5
IFGND
4006
1001
1
2
3
I012
4004
BAS316
6002
4002
7001
PDTC124ET
1013
220R
3020
1004
1
2
3
4
5
4005
3
1002
1
2
3
1005
1
2
I004
5001
F005
3002
I013
6003
I002
1010
IFGND
GND_28
3014
4003
+5VS+5V
RF_AGC
VT_Supply
SCL
SDA
VIF1
VIF2
SEL_LLP|M
SIF1
SIF2
SSIF
+5V
Vbuffer
E_14480_118.eps
090904
3139 123 5676.1
K5
---
---
100u
---3019
68u
---
---
---
---
3018
---
0U39
68u
---
AP LNANA/LA/AP NTSC
68u
EU Splitter
---
2K2
---
---
---
150K
---
K9362M
K7257M
---
50V 22P
ITEM EU Normal
---
100u
25V 1N
---
25V 1N
10K
---
---
2K2 2K2
AP Splitter
10K
10K
---
---
UV1316E/A I-4
4006
JMP
25V 1N
2K2
K9352M
K6274M
2K2
100K
560R
BAS316
PDTC124ET
1000
0U47
2014
3008
2009
---
M1971M
PDTC124ET PDTC124ET
---
50V 10N
JMP
JMP
330R
---
1SS356 1SS356
---
4003
4004
JMP
4011
---
JMP
JMP
JMP
JMP
JMP
2003
3002
820R
---
---
3006
---
JMP
---
JMP
---
---
---
2008
CH LNA
50V 22P50V 22P
UV1356A/A I G-3TEDE9-703A
68u
---
---
---
50V 22P
---
---
---
---
---
---
---
---
EU FM Radio
---
---
---
---
---
---
---
5002
TEDH9-305A
---
---
50V 10N
---
---
---
EU-QSS
7003
UR1316/A I-3
BFS20
6K8
ITEM NA/LA/AP INT
---
2016
2013
2002
------
3010
0U470U47
UV1356A/A I G-3
50V 10N
0U39 0U47
---
---
0U39
---
---
---
---
---
---
100u
---
4002
K9656M
1003
6002
---
4012
---
---
1001
1002
---
---
---
---
---
---
7001
---
10K---
---
---
3014
6004
---
---
TEDE9-703A
---------
16V 100N
3009
3007
---
1SS356
3016
---
---
---
---
K3953M
---
50V 22P 50V 22P
6K8 6K8
2K2
AP QSS CH QSS
F004 I001 I002
F003 0V (N.A.)
200mV / div AC
10ms / div
1V / div DC
20µs / div
1V / div DC
20µs / div

Table of Contents

Related product manuals