EasyManua.ls Logo

Philips LC4.1E A - Block Diagram Audio & Video

Philips LC4.1E A
64 pages
Print Icon
To Next Page IconTo Next Page
To Next Page IconTo Next Page
To Previous Page IconTo Previous Page
To Previous Page IconTo Previous Page
Loading...
18LC4.1E AB 6.
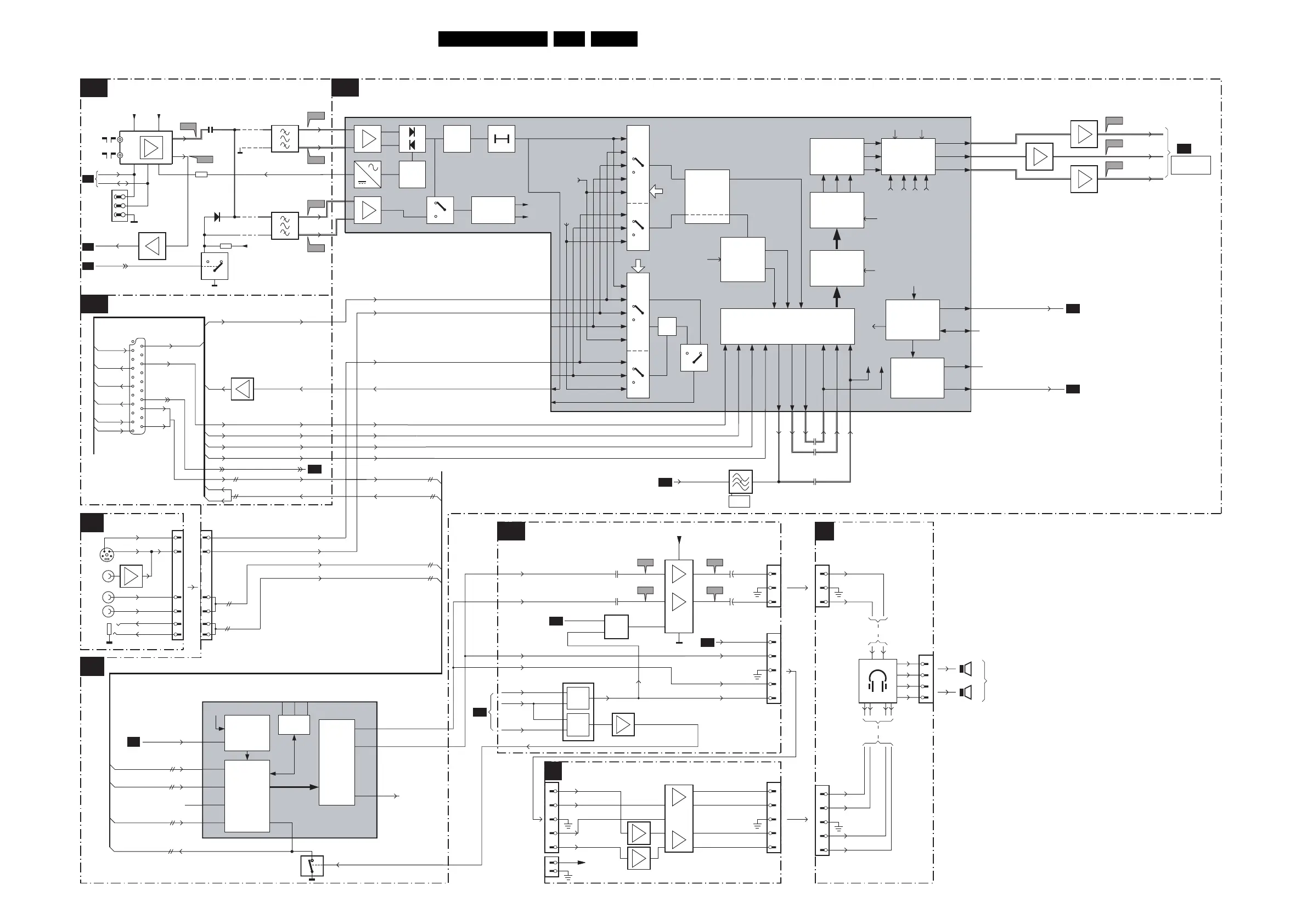
Block Diagrams, Testpoint Overviews, and Waveforms
Block Diagram Audio & Video
1302
+5VSW
6,7
9
4
51
11
A 3
TUNER
+
IF
TV
FM
+VTUN
Sound
Tr ap s
VIF2
VIF1
RF_AGC
SIF1
SIF2
104
105
98
99
100
7011
TDA120001H1
B2
QSS Mixer/
AM Demod.
10
7316
61
62,63
49,50
34,35
56,57
SIDE I/O (AV Part)
D
53,54
AV3_CVBS_Y_IN
AV3_LR_IN
PC_AUDIO_LR
PC_AUDIO_LR
AV3_C_IN
1
2
20
21
SCART 1
R-Out
R-In
L-Out
L-In
B-In
Status
G-In
R-In
FBL-In
TER-Out
CVBS-In
1
1
2
2
5
5
6
6
7
7
9
9
10
10
EF
SC1 _CVBS_RF_OUT
7101
R
L
SC1_R_V_IN
SC1_FBL_IN
SSIF(Tuner FM)
33
SDA
SCL
SEL_IF
SSIF
QSS/FM
AGC
Detect
CVBS1
Input
sw.
INA..D
cvbs/y
c
Output
sw.
CS1A..D
cvbs
+
74
71
70
B1
1328
1330
7
7
8
8
3311
6323
3323
+5VSW
2
3
2
3
7320
4334
2321
4327
4331
4333
Dig. 2H/4H
Combfilter
Y Delay Adj.
PA L /N T S C/
SECAM
Decoder &
Baseband
Delay
Y
int
Chroma
U
int
V
int
RGB/YP
R
P
B
Insert
YUV Interface
51
5013
50 4952 55 54 53
59
2027
2056
2057
58 57
Peaking
SCAVEM
U/V Delay
YUV IN/OUT
Skin Tone
U/V Tint
Saturation
RGB Matrix
Blue & Black
Stretch
Gamma Corr.
YUV
SAT
SCAVEM
on Text
RGB Matrix
Blue & Black
Stretch
Gamma Corr.
G_OSD
R_OSD
B_OSD
Fast Blanking
CON BRI
44
43
42
H/V
Sync Sep
H-OSC
H-Shift
H-Drive
Vertical & East-
West Geometry
H/V
66
62
HOUT
FB/SC
VDRB
VDRA
106
107
YOU T
UOUT
VOUT
VIN
UIN
YIN
R/Pr-3
INSSW3
G/Y3
B/Pb-3
SC1_G_Y_IN
SC1_B_U_IN
EF
7013
EF
7014
EF
7012
RO
GO
BO
R_SDTV
G_SDTV
B_SDTV
A 3
B10
AV3_CVBS_Y_IN
AV3_C_IN
cvbs/y
CVBS/Y-X
C-X
CVBS/Y- X
C-X
AD Conv
Std Stereo
Decoder
Audio Select
ADC/DAC
Audio
Control
Vo l/Treb/
Bass
Features
DACs
I2S Proc
QSS/FM
LR_SC1_AV1_IN
SC1_L
R_RF-O
U
T
AM
L/R_SC1_AV1_IN
SC1_LR_RF_OUT
73
OUT_MUTE
AUDOUTLSR
AUDOUT SR
AUDOUTLSL
70
AV3_LR_IN
60
36,37
SC1_CVBS_RF_OUT
86
AUDOUT SL
AUDOUT SR
AUDOUT SL
AUDOUT SR
AUDOUT SL
B8
B2
B1
B1
B2
B2
HERCULES (AUDIO)
7011 - SOUND
HERCULES (IF+VIDEO)
B4
AUDIO AMPLIFIER (2X2W)
(14, 15, and 17’’)
COMPAIR
1331
1
2
3
REAR IO SCART
F306
F305
F_15310_035.eps
300605
2
5
SVHS
SVHS
AUDIO IN
CVBS
L
2
6
R
7
9
10
4
2
6
7
9
10
4
1108 1010
1
34
B2
B6
B2
B2
7101
D
SIDE AV
(LS CONN. PART)
L
R
Y/CVBS
C
F312
I044
I041
I039
F313
F314
F315
CVBS_SC1_AV1_IN
CVBS_SC1_AV1_IN
SECAM
only
Y_NOTCH
TO
SEE
BLOCKDIAGRAM
SCALER
2
3
1
1701
1706
2
3
1
2736
I710
2737
2718
2712
I711
12,13
8,9
I706
I707
18
17
3
MODE
7712
TDA1517ATW
7709
TDA7297D
7706
74LVCO8AD
15,16
AUD_SUP
MUTE
MUTE
STANDBY
7702
7703
B2
STANDBY
5
4
3
2
4
1
MUTE
MUTE
OUT_MUTE
2
3
1
1110
1704
1107
2
3
1
5
4
3
1
2
12
11
7710
1106
HEADPHONE
&
&
I
AUDIO AMPLIFIER (2x5W) 20 & 23’’
2
3
1
19 L+
L-
R+
R-
14
7
12
13
16
2
5
5
4
1706
2
3
1
5
4
1703
7703-1
7703-2
OR
OR
1105
R
L
4/2W
OR
8/5V
13
SOUND_ENABLE
POWER_DOWN
EXT_MUTE
STANDBY
AUDOUT SL
AUDOUT SR
MUTE
AUD_SUP
FROM 1,2-1200
INVERTER PANEL
H_CS_SDTV
V_SDTV
B8
B8

Related product manuals