EasyManua.ls Logo

Philips LC4.1E A - Side I;O Panel [D]

Philips LC4.1E A
64 pages
Print Icon
To Next Page IconTo Next Page
To Next Page IconTo Next Page
To Previous Page IconTo Previous Page
To Previous Page IconTo Previous Page
Loading...
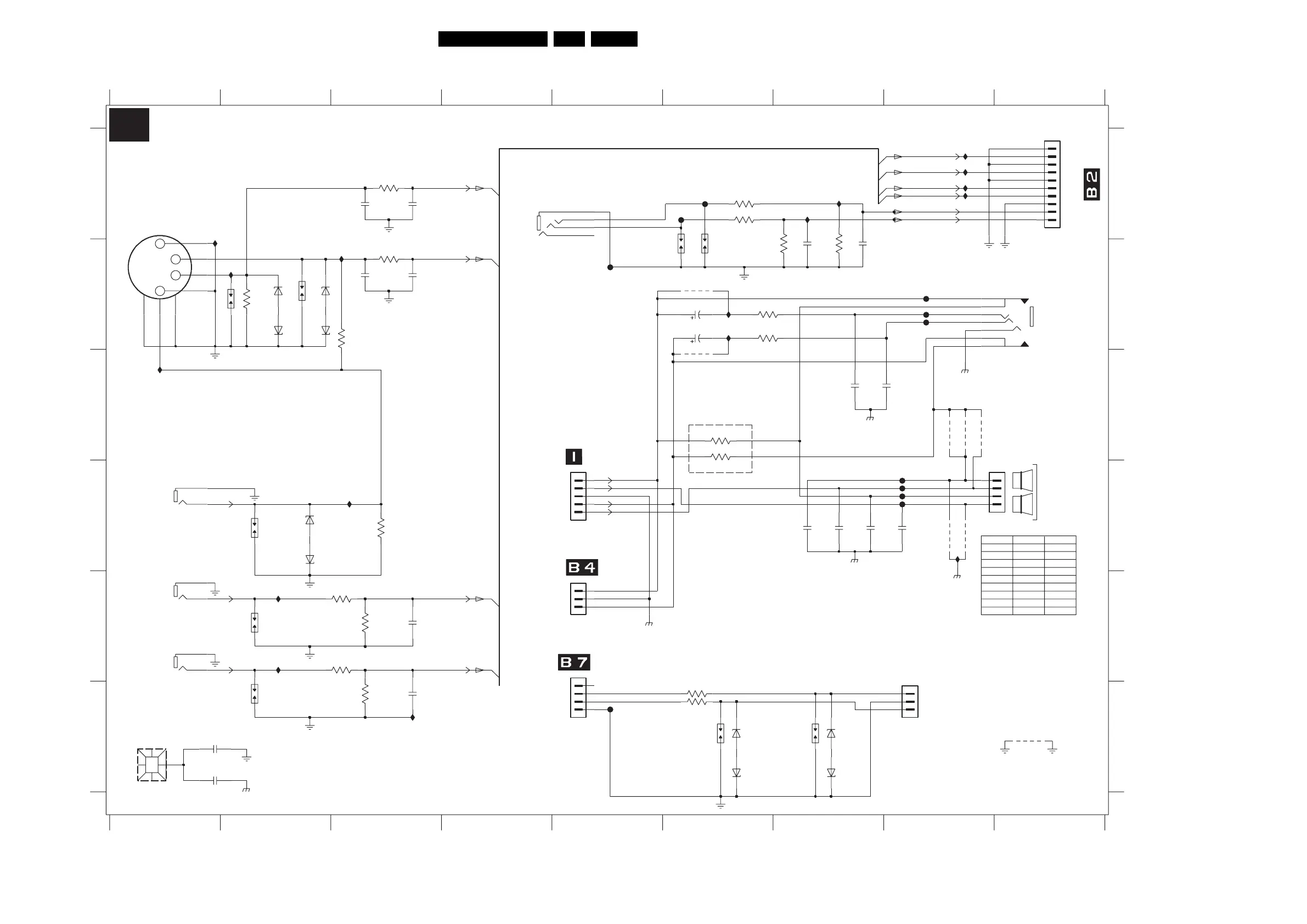
Circuit Diagrams and PWB Layouts
37LC4.1E AB 7.
Side I/O Panel
SIDE I/O
D
3139 123 5831.2
F_15310_017.eps
300605
R
L
CVBS
FROM 1010 OF TSSB
FROM 1704 OF AUD AMP
EMC EMCEMC EMC
R
L
8 OHMS @ 5W
FROM 1401 OF SSB
FOR SERVICE
0R
0R
FOR ITV
FROM 1701 OF SSB
SVHS
EMCEMC
RES
RES
RES
Screw Mounting Hole
RES
RES
RES
RES
RES
*
***
*
*
L+
L-
GND
R+
R-
L
GND
R
+
-
+
-
4 OHMS @ 2W
EMC
EMC
A2
SVHS AUDIO IN
HEADPHONE
A2
A2
A2
A2
A2
A2
UART
*
(2 X 5W)
(2 X 2W)
EMC
EMC
EMC
A2
123456789
123456789
A
B
C
D
E
F
A
B
C
D
E
F
1101 A1
1102-1 D1
1102-2 E1
1102-3 E1
1104 A5
1105 C9
1106 B9
1107 D5
1108 A9
1110 E5
1111 E5
1112 F8
1199 F1
2101 B3
2102 A3
2103 E3
2104 F3
2105 A7
2106 A7
2107 D7
2108 D7
2109 D8
2110 D8
2111 B6
2112 B6
2113 C7
2114 C8
2115 A3
2116 B3
2119 F1
2120 F1
3101 B3
3103 A3
3104 B2
3105 B3
3106 D3
3107 E3
3108 E3
3109 E3
3110 F3
3111 A6
3112 A6
3113 A7
3114 A7
3115 B7
3116 B7
3121 C6
3122 C6
3123 F6
3124 F6
4102 D8
4103 D8
4104 B6
4105 C6
4106 C8
4107 C8
4108 C8
4109 F9
6101 D2
6102 D2
6103 B2
6104 B2
6105 B2
6106 B2
6109 F6
6110 F6
6111 F7
6112 F7
F101 A6
F102 A6
F105 F5
F106 B8
F107 B8
F108 B8
F109 B5
F110 D8
F111 D8
F112 D8
F113 D8
I101 A7
I102 A7
I103 C1
I104 B2
I106 B3
I107 B2
I108 D3
I110 E2
I111 E2
I112 A8
I113 A8
I114 A8
I115 A8
I116 F3
I117 B6
I118 B6
I716 D8
S101 F6
S102 F7
S103 E2
S104 F2
S105 B6
S106 B6
S107 B2
S108 B2
S109 D2
I716
6104
1K03111
6
G_AUD_IN
1101
1
2
3
4
7
5
G_AUD_IN
G_AUD_OUT
470p
2120
G_AUD_IN
G_VID
G_AUD_IN
G_AUD_IN
4109
G_VID
G_AUD_IN
G_AUD_IN
G_VID
G_VID
G_VID
G_VID
2119
470p
G_UART
G_AUD_OUT
G_AUD_OUT
4108
4107
4104
4106
4105
1199
TYPE
3124 100R
3123 100R
2115
47p
47p
2116
2113
470p 470p
2114
6112
BZX384-C4V7
BZX384-C4V7
6111
BZX384-C4V7
6110
6109
BZX384-C4V7
S108
6106
6105
6103
6102
4103
4102
S102
S101
3122
3121
I117
I118
I116
I114
I115
I113
I111
I112
I108
I110
I106
I104
I107
3
I103
1112
1
2
1111
1
2
3
4
F113
F112
G_AUD_OUT
2108
1n0 1n0
2110
2111
220u10V
10V 220u
2112
1110
1
2
3
1
2
3
4
5
1105
6
7
1
2
3
4
F109
1106
F107
F108
F106
F110
G_AUD_OUT
G_AUD_OUT
F111
1n0
2107 2109
1n0
3116120R
120R 3115
2
3
4
1
F102
1104
F101
F105
I102
I101
S105
S106
470p
2105
47K
3113
2106
470p
3114
47K
1K03112
1
2
3
4
5
7
8
9
1107
1108
1
10
2
3
4
5
6
RED
1102-3 5
6
G_AUD_IN
WHITE
1102-2 3
4
1102-1 1
2
YELLOW
2104
G_VID
3110
47K 470p
1K0
3109
S104
2103
470p47K
3108
1K0
3107
47p
S103
2102
47p
2101
3101
10R
10R
3103
75R
3104
S107
S109
6101
75R
3106
3105
75R
JTAG_SDA_UART_TX
JTAG_SCL_UART_RX
AV3_C_IN
AV3_CVBS_Y_IN
AV3_R_IN
AV3_L_IN
PC_AUDIO_R
AV3_CVBS_Y_IN
AV3_C_IN
AV3_L_IN
AV3_R_IN
PC_AUDIO_L
2 x 2W 2 x 5W
4102
4103
4104
4106
4107
4105
4108
*
Y
Y
Y
Y
Y
Y
Y
N
N
N
N
N
N
N
2107
2110
Y
Y
N
N

Related product manuals