EasyManua.ls Logo

Philips LC4.1E A - SSB: Supply

Philips LC4.1E A
64 pages
Print Icon
To Next Page IconTo Next Page
To Next Page IconTo Next Page
To Previous Page IconTo Previous Page
To Previous Page IconTo Previous Page
Loading...
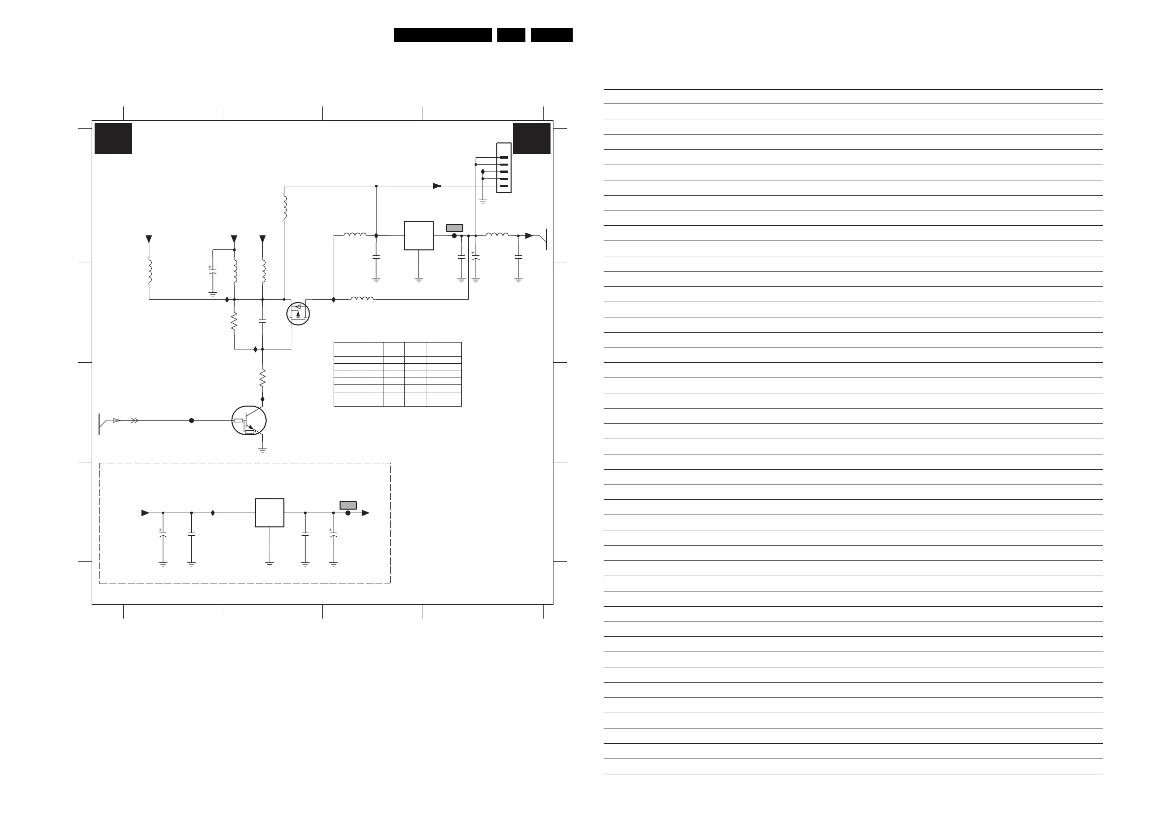
Circuit Diagrams and PWB Layouts
33LC4.1E AB 7.
SSB: Supply
COM
OUTIN
COM
OUTIN
SUPPLY
RES
SS = 4V9
3V2
(0V)
RES
SUPPLY FOR SCALER
B7
B7
*
*
*
*
11V914V4
14V4
14V4
1V3
0V
RES
*
*
RES
3V3
1V8
123 4
123 4
A
B
C
D
A
B
C
D
1951 A4
2959 A3
2960 A4
2961 B2
2962 A4
2963 A4
2994 D1
2995 D1
2996 D2
2997 D3
2998 B1
3955 B2
3958 C2
5955 B2
5956 B2
5957 B3
5958 A2
5959 A3
5960 B1
5961 A4
7952 C2
7953 A3
7954 B3
7955 D2
F951 A4
F952 C1
F954 D3
I951 A3
I952 B3
I953 B2
I954 B2
I955 C2
I956 D1
I957 A4
I957
22n
2963
5961
100n
2962
6.3V1m0
2998
5958
I956
2
3
4
5
67
PAN_VCC_IN
1951
1
I955
I953
I954
I952
F954
I951
F952
+1V8
F951
2994
47u 6.3V
2995
100n
2997
47u 6.3V100n
2996
5960
32
+3V3STBY
+5VSW
LD1086D2T18
7955
1
10K
3955
10n
2961
PAN_VCC
2960
16V
7953
L4940D2T12
2
13
47u
2959
100n
5959
5957
5955
3958
1K0
+12VSW
5956
+3V3STBY
7952
3
1
2
PDTC114ET
SI2301DS-T1
7954
PANEL_PWR_CTL
B9 B9
3139 123 6019.1
F_15310_015.eps
240605
1951
2959
5957
5959
7953
--
*
15" S1 17" S1
20" S1 23" QDI_TN
Y
5958 Y
Y
--
--
5956 Y
--
Y
Y
--
--
Y
Y
Y
--
--
Y
Y
YY
-- --
--
--
--
--
--
Personal Notes:
E_06532_012.eps
131004

Related product manuals