EasyManua.ls Logo

Promotech LIZARD - 5.15. Magnet guide arms

Promotech LIZARD
40 pages
Print Icon
To Next Page IconTo Next Page
To Next Page IconTo Next Page
To Previous Page IconTo Previous Page
To Previous Page IconTo Previous Page
Loading...
LIZARD
This document is protected by copyrights.
Copying, using, or distributing without permission of PROMOTECH is prohibited.
29
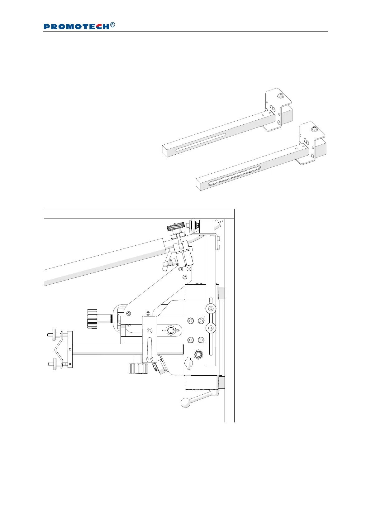
5.15. Magnet guide arms
Allow guiding the carriage on ceilings. Install the guide arms after unscrewing the
standard guide arms using the 4 mm hex wrench.
Part number (2 units):
PRW-0476-52-00-00-1