EasyManua.ls Logo

Raypak 5350 - 230 V Triphasés Numériques, Modèles 5350, 6350, 8350

Raypak 5350
60 pages
Print Icon
To Next Page IconTo Next Page
To Next Page IconTo Next Page
To Previous Page IconTo Previous Page
To Previous Page IconTo Previous Page
Loading...
22
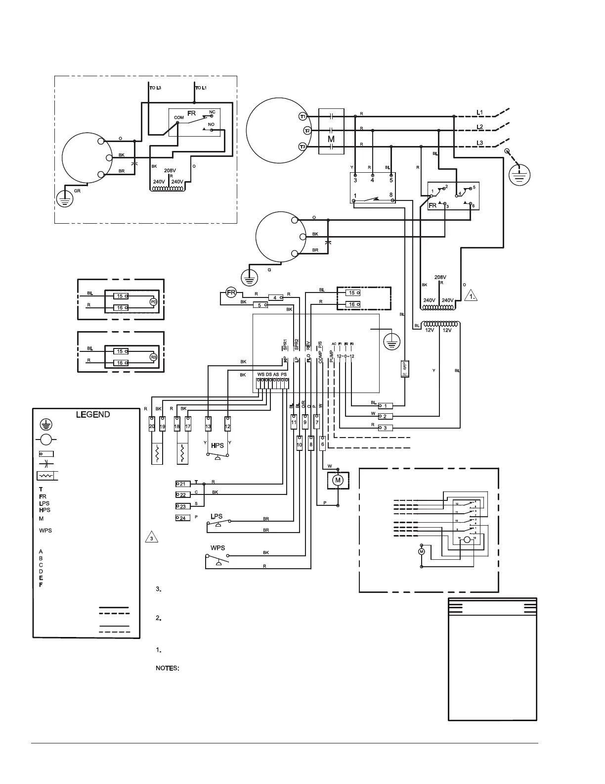
LÉGENDE
GY - GRIS
BK - NOIR
BR - BRUN
G - VERT
O - ORANGE
R - ROUGE
V - VIOLET
W - BLANC
Y - JAUNE
P - ROSE
PR - VIOLET
MALT
ALIMENTATION
CHAUFFAGE
EAU
COMPRESSEUR
DÉGIVRAGE
PRESSOSTAT
AMBRE
VERT
ROUGE
AMBRE
ROUGE
ROUGE
DEL
DÉTAILS CÂBLAGE
TENSION ALIM.
ALIMENTATION ÉLECTRIQUE
CÂBLÉ USINE
CÂBLÉ USINE
OPTION USINE
À PIED-D’OEUVRE
BARETTE DE CONNEXION
CONDENSATEUR
TEMP.
THERMOSTAT
RELAIS DE VENTILATEUR
CAPTEUR BASSE PRESSION
CAPTEUR HAUTE PRESSION
CONTACTEUR DU
COMPRESSEUR
DÉTECTEUR DE PRESSION
D’EAU
RELAIS [CONTACTEUR,
VENTILATEUR et DÉGIVRAGE]
MOTEUR
VENTILATEUR
RELAIS SPST
DÉGIVRAGE
CHAUFF./DÉGIV.
XFO
FUSIBLE
RACCORDS DE
THERMOSTATS EXTERNES
DÉTAIL B
DÉTAIL B
MOTEUR
VENTILATEUR
RACCORDEMENTS À
POMPES RAYPAK − VOIR LE
MANUEL DE LA POMPE
DÉTAIL C
DÉTAIL C
À ASSERVI #1
À ASSERVI #2
À ASSERVI #3
À ASSERVI #4
DÉTAILS RELAIS PRINCIPAL
DÉTAIL B
COMPRESSEUR
CONTRÔLEUR
TRIPHASÉ
RELAIS DPST
CONDUCTEURS EN CUIVRE SEULEMENT
75°C; 600 V
COUPLE DE SERRAGE: 40 PO-LB
ALIMENTATION
208/230V-1 PHASE 60 HZ
RACCORDER AUX BORNES T et C DES
APPAREILS ASSERVIS //this is a line cut//RÉGLER
TEMPÉRATURE DE LA PISCINE À OFF ET CELLE
DU SPA À 104°C.
POUR THERMOSTAT À 2 FILS: UTILISER BORNES 21 ET 22 POUR LE
RACCORDEMENT DE THERMOSTATS MUNIS DE LEURS PROPRES CAPTEURS
DE TEMPÉRATURE.
RÉGLER TEMPÉRATURE DE LA PISCINE À OFF ET CELLE DU SPA À 104°F.
1. XFO CÂBLÉ POUR 240 V (FILS NOIR ET ORANGE); UTILISER FILS NOIR ET
ROUGE POUR 208 V.
RÉSISTANCE DES CAPTEURS:
75°F: 10,5 kΩ
77°F: 10 kΩ
84°F 8,50 kΩ
208V/230V triphasés numériques, modèles 5350, 6350, 8350

Table of Contents

Related product manuals