EasyManua.ls Logo

Riello PRESS 2G - Electrical Connection; PRESS GW Electrical Equipment Factory-Set (Single-Phase Model)

Riello PRESS 2G
48 pages
Print Icon
To Next Page IconTo Next Page
To Next Page IconTo Next Page
To Previous Page IconTo Previous Page
To Previous Page IconTo Previous Page
Loading...
20140894
26
GB
Electrical system
6.2 Electrical connection
6.2.1 PRESS GW electrical equipment factory-set (single-phase model)
(as set up by the manufacturer)
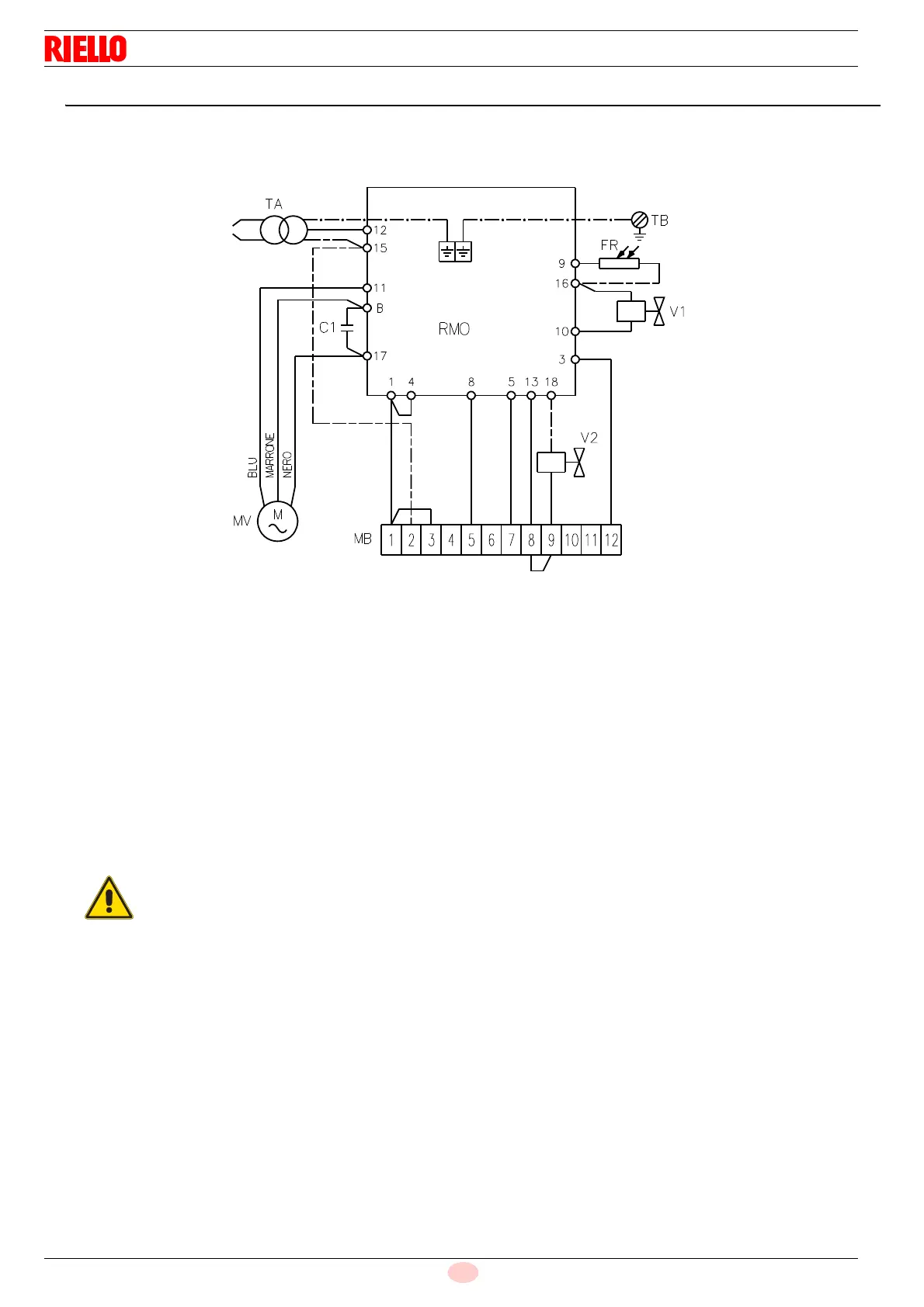
Key (Fig. 25)
C - Capacitor
CMV- Motor contact-maker
RMO- Control box
FR- Sensor flame
MB- Burner terminal strip
MV- Fan motor
RT- Thermal cutout
TA- Ignition transformer
TB- Burner ground (earth) connection
V1- 1st stage solenoid valve
V2- 2nd stage solenoid valve
These models leave the factory preset for 200V power supply.
WARNING
Electrical wiring must be made in accordance with
the regulations currently in force in the country of
destination and by qualified personnel.
Riello S.p.A. declines all liability for modifications
or connections other than those shown on these
diagrams.

Table of Contents

Related product manuals